Bezugsfrei ab 01.11.2025!
Mitten in einem hochwertig gestalteten Neubauensemble präsentiert sich das Stadthaus als modernes, familienfreundliches Zuhause mit stilvoller Ausstattung und großzügigem Raumangebot.
Auf mehreren Ebenen bietet das Haus eine durchdachte Aufteilung mit offenem Wohn-Essbereich, großen Fensterflächen und Zugang zur sonnigen Terrasse – perfekt für entspannte Stunden im Freien. Außerdem verfügt das Haus über eine private Dachterrasse, die einen herrlichen Rückzugsort über den Dächern der Umgebung schafft.
Der Innenausbau überzeugt mit Echtholzparkett in den Wohnräumen, Fußbodenheizung in allen Etagen sowie einem hochwertig ausgestatteten Badezimmer mit bodentiefer Dusche und Handtuchheizkörper. Ein dezentrales Lüftungssystem mit Wärmerückgewinnung und dreifach verglaste Fenster mit elektrischen Rollläden sorgen für zeitgemäßen Wohnkomfort und Energieeffizienz.
Besonders hervorzuheben sind die zwei eigenen Tiefgaragenstellplätze, die über einen privaten Zugang direkt ins Haus führen – eine seltene und äußerst komfortable Lösung für den Alltag.
Abgerundet wird das Angebot durch einen Kellerraum, Waschmaschinenanschluss sowie viel Stauraum auf jeder Ebene.
Das Stadthaus vereint gehobene Wohnqualität, moderne Technik und urbanes Lebensgefühl – ideal für Familien, Paare oder anspruchsvolle Selbstnutzer, die das Besondere suchen.
REIHENECKHAUS | NEUBAU | FAMILIENFREUNDLICH
81249 München
Die vollständige Adresse der Immobilie erhalten Sie vom Anbieter.
Auf Karte anzeigen
Die vollständige Adresse der Immobilie erhalten Sie vom Anbieter.
Finanzierungszertifikat
In nur zwei Minuten zu Ihrem persönlichen Finanzierungszertifkat.
Infos
| Haustyp | Reiheneckhaus |
|---|---|
| Wohnfläche ca. | 141 m2 |
| Nutzfläche | 216 m2 |
| Grundstücksfläche | 165 m2 |
| Zimmer | 5 |
Kosten
| Kaufpreis |
1.349.000 € |
|---|---|
| Preis für Garage/Stellplatz | 70.000 € |
| Provision |
3,57% des Kaufpreises inkl. MwSt. Der Käufer verpflichtet sich, mit dem notariellen Kaufvertragsabschluss die Vermittlungsprovision an die KWAG Immobilien GmbH zu bezahlen. |
Finanzierungsrechner:
Kaufpreis:
600.000 €
Eigenkapital:
600.000 €
Monatliche Rate
0 €
Effektiver Jahreszins
0 %
Sollzinsbindung
10 Jahre
Bausubstanz & Energieausweis
| Baujahr | 2023 |
|---|---|
| Qualität der Austattung | Luxus |
| Heizungsart | Fußbodenheizung |
| Wesentliche Energieträger | Nahwärme |
| Energieausweis | liegt vor |
| Energieausweistyp | Bedarfsausweis |
| Energieverbrauchskennwert | 73,3 kWh/(m²*a) |
| Energieeffizienzklasse | B |
73,3
kWh/(m²*a)
Energieeffizienzklasse B
- A+
- A
- B
- C
- D
- E
- F
- G
- H
- 0
- 25
- 50
- 75
- 100
- 125
- 150
- 175
- 200
- 225
- >250
Beschreibung des Objekts
Ausstattung
- Echtholz-Parkettboden
- Großzügiger Privatgarten
- Fußbodenheizung in allen Räumen
- 3-Fach Isolierverglasung
- Hochwertige Einbauküche inkl. Elektrogroßgeräten
- Terrasse und Garten mit Süd-Ausrichtung
- Dachterrasse ebenfalls mit Süd-Ausrichtung
- Separates-WC im EG
- Duschbad im 1. und 2. OG
- Highspeed-Internetanschluss (Glasfaser)
- Waschmaschinenanschluss im Hauswirtschaftsraum im UG
- Privater Tiefgaragenzugang
Lage
Der Leinweberweg befindet sich in ruhiger und familienfreundlicher Wohnlage im westlich gelegenen Münchner Stadtteil Lochhausen. Die Umgebung ist geprägt von gepflegter Einfamilien- und Reihenhausbebauung, viel Grün und einer angenehm entspannten Atmosphäre – ideal für alle, die stadtnah, aber ruhig wohnen möchten.
Dank der Nähe zur S-Bahn-Station Lochhausen (S3, fußläufig erreichbar) ist eine direkte Anbindung an die Münchner Innenstadt gegeben – der Marienplatz ist in ca. 20 Minuten erreichbar. Auch mit dem Auto ist man über die A99 oder die B2 schnell im Münchner Umland oder in der City.
In unmittelbarer Umgebung finden sich alle Einrichtungen des täglichen Bedarfs: Supermärkte, Apotheken, Bäckereien, Kindergärten sowie Schulen befinden sich ebenso wie Grünflächen und Spielplätze in bequemer Reichweite. Besonders hervorzuheben ist die Nähe zum Aubinger Lohe, einem beliebten Naherholungsgebiet mit ausgedehnten Spazier- und Radwegen sowie Waldflächen.
Lochhausen vereint damit naturnahes Wohnen mit städtischer Anbindung – eine Lage, die sowohl bei Familien, als auch bei Paaren oder Kapitalanlegern sehr gefragt ist.
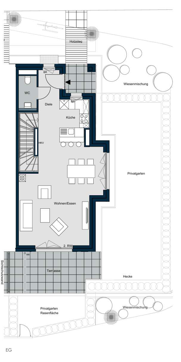
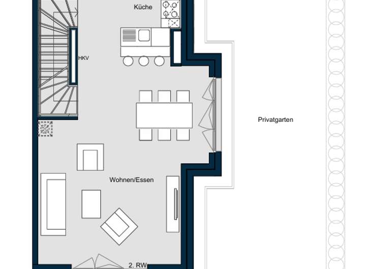
Grundriss
Grundriss EG 22027
>
>
Grundriss 1OG 22028
>
>
Grundriss 2OG 22029
>
>
Grundriss UG 22030
>
>
Adresse
81249 München
Interessante Orte
Preis- und Lageinformationen
Preistrend für Bestandsimmobilien in Langwied