Zum Verkauf steht ein großzügiges Mehrfamilienhaus aus dem Jahr 1972, das sich auf einem ca. 980 m² großen Grundstück in ruhiger und familienfreundlicher Wohnlage befindet. Mit einer Gesamtwohnfläche von ca. 332 m², verteilt auf 12 Zimmer - darunter neun Schlafzimmer und drei Badezimmer - bietet diese Immobilie reichlich Platz für unterschiedliche Wohnkonzepte. Ob als Zuhause für eine große Familie, als Mehrgenerationenhaus oder zur Teilvermietung - hier eröffnen sich vielfältige Nutzungsmöglichkeiten.
Die durchdachte Raumaufteilung ist auf eine hohe Flexibilität ausgelegt. Zwei Balkone laden zum Verweilen im Freien ein, während der weitläufige, gepflegte Garten mit üppigem Grün beste Voraussetzungen für Kinder, Gartenfreunde oder entspannte Stunden an der frischen Luft schafft. Die liebevoll angelegte Außenanlage unterstreicht den wohnlichen Charakter des Hauses und bietet zahlreiche Gestaltungsmöglichkeiten.
In den vergangenen Jahren wurden umfangreiche Modernisierungen durchgeführt, die das Haus auf einen zeitgemäßen Standard bringen. Die Heizungsanlage wurde 2007 erneuert und sorgt mit einer zentralen Ölheizung für effiziente und gleichmäßige Wärme in allen Bereichen. Im Jahr 2008 erfolgte der Austausch sämtlicher Fenster, was sowohl die Energieeffizienz erhöht als auch Heizkosten nachhaltig senkt. Die Fassade erhielt 2016 einen frischen Anstrich und verleiht dem Objekt einen gepflegten Eindruck. Die neue Hauseingangstür aus dem Jahr 2021 verbindet ansprechendes Design mit moderner Sicherheitstechnik. Die Ausstattung der unteren beiden Wohnungen ist gehoben, die Dachgeschosswohnung präsentiert sich in einem soliden und gepflegten Zustand.
Die Lage des Hauses überzeugt durch eine gute Infrastruktur und eine familienfreundliche Umgebung. Einkaufsmöglichkeiten, Schulen, Kindergärten und öffentliche Verkehrsmittel sind bequem erreichbar, was den Alltag spürbar erleichtert. Die ruhige Nachbarschaft sowie das grüne Umfeld schaffen eine besonders attraktive Wohnatmosphäre für Familien und alle, die stadtnah, aber dennoch ruhig wohnen möchten.
Insgesamt bietet dieses Mehrfamilienhaus ein hohes Potenzial - sei es für Eigennutzer mit großem Platzbedarf oder Kapitalanleger, die eine attraktive Immobilie mit solider Bausubstanz in einer gefragten Lage suchen. Überzeugen Sie sich selbst bei einer Besichtigung von der Großzügigkeit, den vielfältigen Möglichkeiten und dem gepflegten Zustand dieses Hauses. Für weitere Informationen oder zur Vereinbarung eines Besichtigungstermins stehen wir Ihnen jederzeit gerne zur Verfügung.
Dreifamilienhaus mit Gartenparadies – perfekt für Familien, Generationenwohnen oder Kapitalanleger
96191 Viereth-Trunstadt
Die vollständige Adresse der Immobilie erhalten Sie vom Anbieter.
Auf Karte anzeigen
Die vollständige Adresse der Immobilie erhalten Sie vom Anbieter.
Finanzierungszertifikat
In nur zwei Minuten zu Ihrem persönlichen Finanzierungszertifkat.
Infos
| Haustyp | Mehrfamilienhaus |
|---|---|
| Etagenzahl | 4 |
| Wohnfläche ca. | 332 m2 |
| Grundstücksfläche | 980 m2 |
| Zimmer | 12 |
| Schlafzimmer | 9 |
| Badezimmer | 3 |
| Garage/Stellplatz | Außenstellplatz |
| Anzahl Garage/Stellplatz | 2 |
Kosten
| Kaufpreis |
640.000 € |
|---|---|
| Provision |
Käuferprovision beträgt 3,57 % (inkl. MwSt.) des beurkundeten Kaufpreises |
Finanzierungsrechner:
Kaufpreis:
600.000 €
Eigenkapital:
600.000 €
Monatliche Rate
0 €
Effektiver Jahreszins
0 %
Sollzinsbindung
10 Jahre
Bausubstanz & Energieausweis
| Baujahr | 1972 |
|---|---|
| Letzte Sanierung | 2021 |
| Qualität der Austattung | Normal |
| Heizungsart | Öl-Heizung |
| Wesentliche Energieträger | Öl |
| Energieausweis | liegt vor |
| Energieausweistyp | Bedarfsausweis |
| Energieverbrauchskennwert | 281,6 kWh/(m²*a) |
| Energieeffizienzklasse | H |
281,6
kWh/(m²*a)
Energieeffizienzklasse H
- A+
- A
- B
- C
- D
- E
- F
- G
- H
- 0
- 25
- 50
- 75
- 100
- 125
- 150
- 175
- 200
- 225
- >250
Beschreibung des Objekts
Ausstattung
- 3 Wohneinheiten
- großzügiger Gemeinschaftsgarten
- 2 Balkone
- 2 Garagen
- 2 Stellplätze
Lage
Das angebotene Mehrfamilienhaus befindet sich im Ortsteil Trunstadt, einem charmanten und naturnahen Teil der Gemeinde Viereth-Trunstadt im oberfränkischen Landkreis Bamberg. Die idyllische Lage am Main, eingebettet in sanfte Hügel und weitläufige Wälder, macht Trunstadt zu einem attraktiven Wohnort für Naturliebhaber, Ruhesuchende und Familien.
Trotz der ruhigen, ländlichen Umgebung ist die Anbindung an das regionale und überregionale Verkehrsnetz hervorragend. Die Autobahn A70 ist in wenigen Minuten erreichbar und ermöglicht schnelle Verbindungen nach Bamberg (ca. 15 km), Schweinfurt sowie in Richtung Würzburg und Bayreuth. Auch die Bundesstraßen B26 und B22 sind gut erreichbar und ergänzen die verkehrstechnische Infrastruktur optimal.
Der öffentliche Nahverkehr ist durch regelmäßige Busverbindungen sichergestellt, die eine bequeme Anbindung an die umliegenden Gemeinden und die Stadt Bamberg gewährleisten. Bamberg bietet durch seine historische Altstadt, einem vielfältigen Kulturangebot und einer umfassenden Versorgung sämtliche städtische Annehmlichkeiten.
In der Gemeinde selbst finden sich zahlreiche Einrichtungen des täglichen Bedarfs, darunter eine Grundschule, eine Kindertagesstätte, Spielplätze sowie diverse Geschäfte, Handwerksbetriebe und Dienstleister. Ein aktives Vereinsleben und regelmäßige Veranstaltungen wie das beliebte Mainfest sorgen zusätzlich für eine hohe Lebensqualität und ein starkes Gemeinschaftsgefühl.
Insgesamt bietet die Lage eine harmonische Kombination aus Natur, Infrastruktur und guter Erreichbarkeit - ideal für alle, die naturnah wohnen möchten, ohne auf Komfort und eine gute Anbindung verzichten zu wollen.
Sonstige Angaben
GELDWÄSCHE: Als Immobilienmaklerunternehmen ist die von Poll Immobilien GmbH nach § 2 Abs. 1 Nr. 14 und § 11 Abs. 1, 2 Geldwäschegesetz (GwG) dazu verpflichtet, bei der Begründung einer Geschäftsbeziehung die Identität des Vertragspartners festzustellen und zu überprüfen, bzw. sobald ein ernsthaftes Interesse an der Durchführung des Immobilienkaufvertrages besteht. Hierzu ist es erforderlich, dass wir nach § 11 Abs. 4 GwG die relevanten Daten Ihres Personalausweises festhalten (wenn Sie als natürliche Person handeln) – beispielsweise mittels einer Kopie. Bei einer juristischen Person benötigen wir eine Kopie des Handelsregisterauszugs, aus welchem der wirtschaftlich Berechtigte hervorgeht. Das Geldwäschegesetz sieht vor, dass der Makler die Kopien bzw. Unterlagen fünf Jahre aufbewahren muss. Als unser Vertragspartner haben Sie auch eine Mitwirkungspflicht nach § 11 Abs. 6 GwG.
HAFTUNG: Wir weisen darauf hin, dass die von uns weitergegebenen Objektinformationen, Unterlagen, Pläne etc. vom Verkäufer bzw. Vermieter stammen. Eine Haftung für die Richtigkeit oder Vollständigkeit der Angaben übernehmen wir daher nicht. Es obliegt daher unseren Kunden, die darin enthaltenen Objektinformationen und Angaben auf ihre Richtigkeit hin zu überprüfen. Alle Immobilienangebote sind freibleibend und vorbehaltlich Irrtümer, Zwischenverkauf- und Vermietung oder sonstiger Zwischenverwertung.
UNSER SERVICE FÜR SIE ALS EIGENTÜMER:
Planen Sie den Verkauf oder die Vermietung Ihrer Immobilie, so ist es für Sie wichtig, deren Marktwert zu kennen. Lassen Sie kostenfrei und unverbindlich den aktuellen Wert Ihrer Immobilie professionell durch einen unserer Immobilienspezialisten einschätzen. Unser bundesweites und internationales Netzwerk ermöglicht es uns, Verkäufer bzw. Vermieter und Interessenten bestmöglich zusammenzuführen.
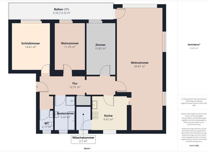
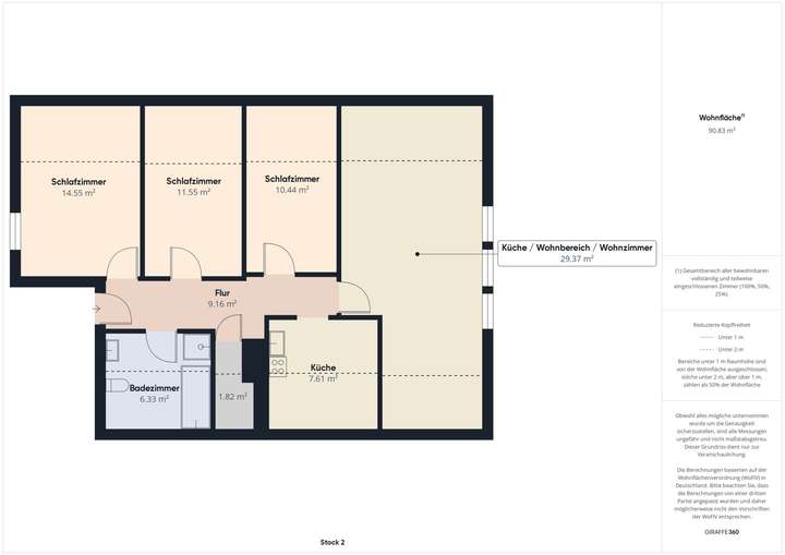
Grundriss
Grundriss EG
>
>
Grundriss OG
>
>
Grundriss DG
>
>
Adresse
96191 Viereth-Trunstadt
Interessante Orte
Preis- und Lageinformationen
Preistrend für Bestandsimmobilien in Viereth-Trunstadt