NEUWERTG - VARIABEL NUTZBAR - LÄNDLICH ATTRAKTIV
Wir sind im Rahmen eines Eklusivauftrages in die Lage versetzt worden, diese Liegenschaft zu vermarkten.
Das aufstehende Gebäude wurde etwa im Jahre 1995 in massiver Bauweise errichtet. Das ca. 900 qm große Grundstück ist straßenabgewandt orientiert und hat eine westliche Ausrichtung zur Sonne. Die Gartensituation ist von äußerst privatem Charakter und nahezu uneinsehbar.
Das Wohnhaus umfasst zwei ins sich abgeschlossene Wohnungen. Die 3-Zimmer-Wohnung im Erdgeschoss verfügt über eine Wohnfläche von rd. 83 qm.
Der Zuschnitt der Wohnung ist durchaus attraktiv mit gut proportionierten Raumgrößen. Eine überdachte Terrasse mit Holzbelag gehört zur Ausstattung. Die Wohnung ist überwiegend mit Laminat ausgelegt.
Die Wohnung im Dachgeschoss umfasst eine Wohnfläche von rd. 74 qm und hat ebenfalls 3 Zimmer sowie einen Balkon zur Südseite.
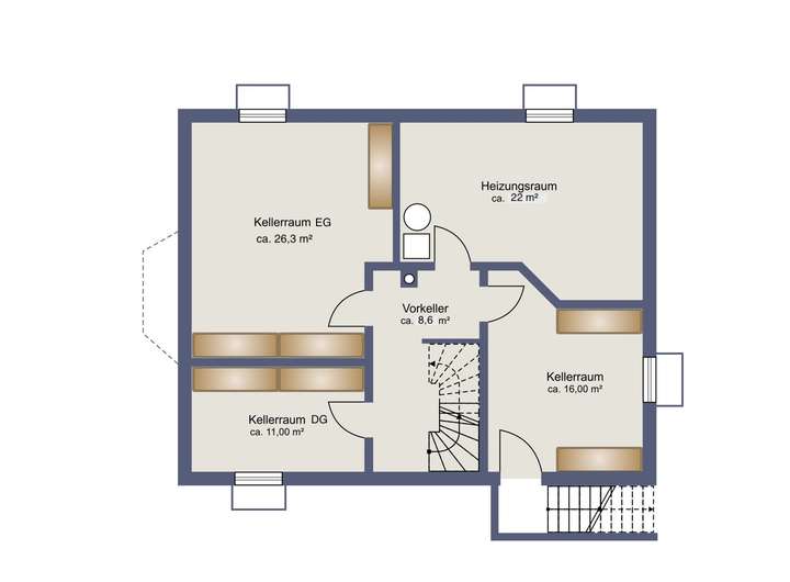
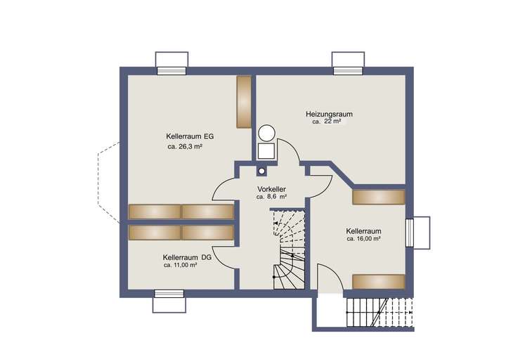
Das Gebäude ist unterkellert.
OTT.-QUELKHORN // Neuwertiges Wohnhaus mit 2 WE u. großem Grund in gefragter ländlicher Umgebung
28870 Ottersberg
Die vollständige Adresse der Immobilie erhalten Sie vom Anbieter.
Auf Karte anzeigen
Die vollständige Adresse der Immobilie erhalten Sie vom Anbieter.
Finanzierungszertifikat
In nur zwei Minuten zu Ihrem persönlichen Finanzierungszertifkat.
Infos
| Haustyp | Mehrfamilienhaus |
|---|---|
| Etagenzahl | 2 |
| Wohnfläche ca. | 157 m2 |
| Nutzfläche | 84 m2 |
| Grundstücksfläche | 867 m2 |
| Bezugsfrei ab | Absprache |
| Zimmer | 6 |
| Schlafzimmer | 4 |
| Badezimmer | 2 |
Kosten
| Kaufpreis |
480.000 € |
|---|---|
| Provision |
3,57 % inkl. 19% Mehrwertsteuer |
Finanzierungsrechner:
Kaufpreis:
600.000 €
Eigenkapital:
600.000 €
Monatliche Rate
0 €
Effektiver Jahreszins
0 %
Sollzinsbindung
10 Jahre
Bausubstanz & Energieausweis
| Baujahr | 1995 |
|---|---|
| Objektzustand | Gepflegt |
| Qualität der Austattung | Normal |
| Heizungsart | Etagenheizung |
| Wesentliche Energieträger | Gas |
| Energieausweis | liegt vor |
| Energieausweistyp | Bedarfsausweis |
| Energieverbrauchskennwert | 150,5 kWh/(m²*a) |
| Energieeffizienzklasse | D |
150,5
kWh/(m²*a)
Energieeffizienzklasse D
- A+
- A
- B
- C
- D
- E
- F
- G
- H
- 0
- 25
- 50
- 75
- 100
- 125
- 150
- 175
- 200
- 225
- >250
Beschreibung des Objekts
Ausstattung
Wir heben in unserem Expose nur einige Besonderheiten stichwortartig hervor:
-zweischaliger Wandaufbau mit Kerndämmung
-Isofenster
-attraktive und zeitgemäße Grundsrissstruktur
-überwiegend Laminatböden
Alle Ausstattungsdetails können Sie unserem ausführlichen Expose entnehmen.
Fordern Sie dieses am besten gleich an!
Lage
Der Flecken Ottersberg ist mit über 13 000 Einwohnerinnen und Einwohnern und 9911 ha flächenmäßig eine der größten Gemeinden im Landkreis Verden (ehemals Regierungsbezirk Lüneburg).
Als Einheitsgemeinde 1972 durch die Verwaltungs- und Gebietsreform gegründet, besteht sie aus den Ortschaften Flecken Ottersberg und Flecken Fischerhude sowie Otterstedt, Posthausen und Narthauen
Das Gemeindegebiet umfaßt neben weiten Geestrücken das von zahlreichen Wasserarmen durchzogene Niederungsgebiet der Wümme und das südlich gelegene, zum größten Teil abgetorfte Moorgebiet der jetzigen Ortschaft Posthausen.
Mit den vielfältigen Möglichkeiten zur Naherholung insbesondere durch ein weitläufiges Angebot an Wander- und Radwanderwegen und durch die hervorragende Anbindung an das überregionale Verkehrsnetz mit den Autobahnanschlussstellen an der A 1 sowie mit dem an der Eisenbahnlinie Bremen-Hamburg gelegenen Bahnhof Ottersberg, ist der Flecken Ottersberg ein attraktiver Wohnort an der Randlage Bremens.
Sonstige Angaben
Die Wohnung im Erdgeschoss wird gem. vertraglicher Vereinbarung ZUM 01/2026 nutzerfrei und stünde damit einem Selbstnutzer sofort zur Verfügung. Das bestehende Mietverhältnis der Wohnung im Dachgeschoss ist momentan ungekündigt. Die mtl. Nettomiete beträgt EUR 535,00 zzgl. umlagerfähiger Betriebskosten.
Jede Wohnung verfügt über eine eigene Gas-Heizungsanlage inkl. WW-Speicher (Bj. 2003).
Gegebenenfalls kann ein unmittelbar danebenliegendes Baugrundstück (ca. 900 qm) mit erworben werden. Preis auf Anfrage.
Ein aktueller Energieausweis ist beauftragt und in Arbeit. Dieser sollte zeitnah vorliegen. Die hier veröffentlichten Angaben sind Schätzdaten aufgrund der Gebäudebauweise. Diese können zum finalen Ergebnis des E-Ausweises variieren.
Die Käufercourtage beträgt 3,57% inkl. 19% Mehrwertsteuer. Wir haben einen provisionspflichtigen Maklervertrag in gleicher Höhe mit dem Verkäufer abgeschlossen.
GELDWÄSCHE: Als Maklerunternehmen ist die BONUM Immobilien GmbH nach § 2 Abs. 1 Nr. 14 und § 11 Abs. 1, 2 Geldwäschegesetz (GwG) dazu verpflichtet, bei der Begründung einer Geschäftsbeziehung die Identität des Vertragspartners festzustellen und zu überprüfen, bzw. sobald ein ernsthaftes Interesse an der Durchführung des Immobilienkaufvertrages besteht. Hierzu ist es erforderlich, dass wir nach § 11 Abs. 4 GwG die relevanten Daten Ihres Personalausweises festhalten (wenn Sie als natürliche Person handeln) – beispielsweise mittels einer Kopie. Bei einer juristischen Person benötigen wir eine Kopie des Handelsregisterauszugs, aus welchem der wirtschaftlich Berechtigte hervorgeht. Das GwG sieht vor, dass der Makler die Kopien bzw. Unterlagen fünf Jahre lang archivieren müs
Grundriss
Grundriss EG
>
>
Grundriss DG
>
>
Grundriss KG
>
>
Adresse
28870 Ottersberg
Interessante Orte
Preis- und Lageinformationen
Preistrend für Bestandsimmobilien in Ottersberg