Sie suchen ein modernes, energieeffizientes Zuhause in ruhiger Lage – mit guter Anbindung an Stadt und Meer? Dann ist dieser im Jahr 2023 errichtete Winkelbungalow in Proseken genau das Richtige für Sie!
Das stilvolle Einfamilienhaus in Massivbauweise vereint zeitgemäßen Wohnkomfort mit attraktiver Architektur und bietet sowohl Eigennutzern als auch Kapitalanlegern eine zukunftssichere Investition.
Das Haus im Überblick:
Schon von außen überzeugt der Bungalow mit seiner eleganten weißen Putzfassade, dem Krüppelwalmdach und gepflasterten Zuwegung. Zwei moderne Solarkollektoren auf dem Dach sorgen für umweltfreundliche Warmwasseraufbereitung und entlasten die Energiekosten. Die Gas-Zentralheizung in Kombination mit einer komplett verlegten Fußbodenheizung bietet behagliche Wärme in allen Räumen – perfekt abgestimmt auf den hochwertigen Bodenbelag aus Vinyl und Fliesen.
Durchdachte Raumaufteilung auf einer Ebene:
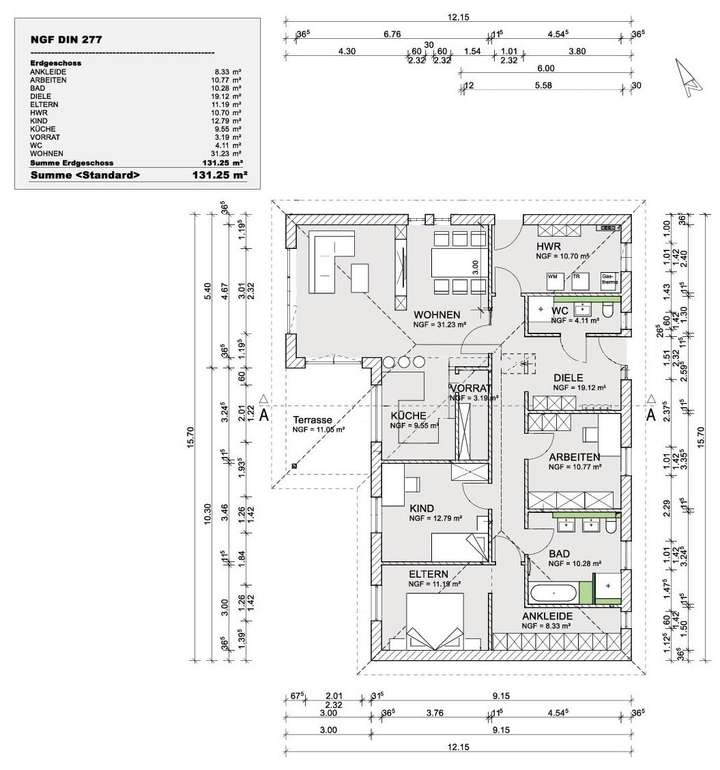
Die Wohnfläche verteilt sich auf vier gut geschnittene Zimmer:
Eine helle Diele heißt Sie und Ihre Gäste willkommen
Das großzügige Wohnzimmer punktet mit bodentiefen Fenstern und direktem Zugang zur überdachten Terrasse – ideal für entspannte Stunden im Freien.
Die offene Küche mit moderner Einbauküche und praktischem Vorratsraum bietet Platz zum Kochen und Genießen
Drei weitere Räume – als Schlafzimmer mit Ankleideraum , Kinder- oder Arbeitszimmer nutzbar – lassen sich flexibel gestalten.
Das stilvolle Vollbad verfügt über Dusche, Wanne und Fenster; ein zusätzliches Gäste-WC mit Dusche bietet weiteren Komfort.
Ein Hauswirtschaftsraum mit Waschmaschinenanschluss und direktem Ausgang zum PKW-Stellplatz rundet das Angebot ab.
Der Dachboden bietet zusätzlichen Stauraum. Hochwertige Kunststoff-Isolierfenster mit 3-fach-Verglasung sorgen für hervorragenden Schallschutz und Energieeffizienz.
Außenbereich mit Gestaltungsspielraum:
Die gepflasterte Einfahrt und Zuwegung sind bereits fertiggestellt. Der Gartenbereich wartet noch auf die kreative Hand des neuen Eigentümers – ob naturnah, mediterran oder modern: Hier verwirklichen Sie Ihre individuellen Vorstellungen vom Traumgarten.
Aktuell vermietet – sichere Einnahmen:
Das Objekt ist derzeit vermietet und erwirtschaftet eine Jahresnettomiete von 13.800,00 €.
Einziehen, gestalten, wohlfühlen – oder langfristig vermieten.
Winkelbungalow mit Solartechniik - Ruhige Lage nahe Wismar und Ostsee
23968 Gägelow
Die vollständige Adresse der Immobilie erhalten Sie vom Anbieter.
Auf Karte anzeigen
Die vollständige Adresse der Immobilie erhalten Sie vom Anbieter.
Finanzierungszertifikat
In nur zwei Minuten zu Ihrem persönlichen Finanzierungszertifkat.
Infos
| Haustyp | Bungalow |
|---|---|
| Wohnfläche ca. | 132 m2 |
| Grundstücksfläche | 650 m2 |
| Zimmer | 4 |
Kosten
| Kaufpreis |
427.000 € |
|---|---|
| Provision |
3,57 % inkl. ges. MwSt. Unser Immobilienbüro hat einen provisionspflichtigen Maklervertrag mit dem Verkäufer in gleicher Höhe abgeschlossen. |
Finanzierungsrechner:
Kaufpreis:
600.000 €
Eigenkapital:
600.000 €
Monatliche Rate
0 €
Effektiver Jahreszins
0 %
Sollzinsbindung
10 Jahre
Bausubstanz & Energieausweis
| Baujahr | 2023 |
|---|---|
| Bauphase | Haus fertig gestellt |
| Objektzustand | Neuwertig |
| Heizungsart | Zentralheizung |
| Wesentliche Energieträger | Gas |
| Energieausweis | liegt vor |
| Energieausweistyp | Bedarfsausweis |
| Energieverbrauchskennwert | 66,4 kWh/(m²*a) |
| Energieeffizienzklasse | B |
66,4
kWh/(m²*a)
Energieeffizienzklasse B
- A+
- A
- B
- C
- D
- E
- F
- G
- H
- 0
- 25
- 50
- 75
- 100
- 125
- 150
- 175
- 200
- 225
- >250
Beschreibung des Objekts
Ausstattung
- großzügiges Wohnzimmer mit bodentiefen Fenstern
- offene Küche mit moderner Einbauküche und Vorratsraum
- Vollbad ist mit Dusche und Fenster
- Gäste-WC mit Dusche und Fenster
- Hauswirtschaftsraum mit Waschmaschinenanschluss sowie Hausanschlüsse
Lage
Lage – ländlich ruhig und dennoch stadtnah:
Proseken ist ein Ortsteil der Gemeinde Gägelow und liegt direkt an der südwestlichen Grenze der Hansestadt Wismar. Die Ostsee erreichen Sie in wenigen Minuten, ebenso Einkaufsmöglichkeiten, Freizeitangebote und ärztliche Versorgung. In Proseken selbst finden Sie eine gute Infrastruktur mit Kirche, Schule, Kita, Sporthalle, Sportplatz, Feuerwehr und Gastronomie – alles, was das tägliche Leben angenehm macht.
Sonstige Angaben
Wir weisen darauf hin, dass unsere Angebotsangaben auf uns erteilter Informationen basieren und deshalb für deren Richtigkeit und Vollständigkeit keine Haftung übernommen wird. Unsere Angaben sind freibleibend und unverbindlich. Irrtum und Zwischenverkauf bleibt ausdrücklich vorbehalten.
Grundriss
Grundriss
>
>
Adresse
23968 Gägelow
Interessante Orte
Preis- und Lageinformationen
Preistrend für Bestandsimmobilien in Gägelow