Das Einfamilienhaus wurde im Stil neuer klassischer Tradition mit exklusivem Wohnambiente erstellt: Eine durchdachte helle Raumaufteilung mit imposant hohen Decken (2,95 m Raumhöhe im Erdgeschoss und Souterrain, im Obergeschoss im offenen Giebel 3,20 m hoher Luftraum) in Kombination mit hochwertiger Ausstattung wie Fußbodenheizung, Klimaanlage im OG, Eichenparkett und großformatigen Feinstein-Fliesen.
In der Außensprache hat die Villa ein stilvolles Fassadenkonzept anthrazit/weiß. Das klassische Erscheinungsbild mit dem straßenseitigen Giebel und Putzfaschen um Fenster und Türen beeindruckt durch zeitlose Eleganz.
Das Raumangebot erstreckt sich über 170 Quadratmeter.
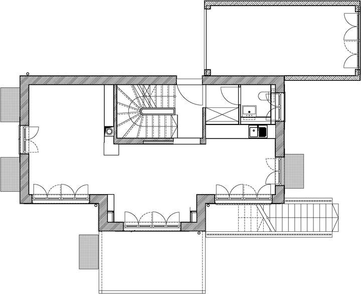
Erdgeschoss: Ansprechendes Entree mit beeindruckender Holztreppe in geschwungener Form, separater Garderobe und Gäste-WC. Betritt man dann den offenen Wohn- und Kochbereich, so ist durch die großen, bodentiefen Schreinerholzfenster (Sonderhöhe von 2,50 m), die an vier Stellen als Terrassentüren zu öffnen sind, der Bezug nach draußen sofort gegeben. Das Wohnzimmer ist mit einem Designer-Kamin ausgestattet.
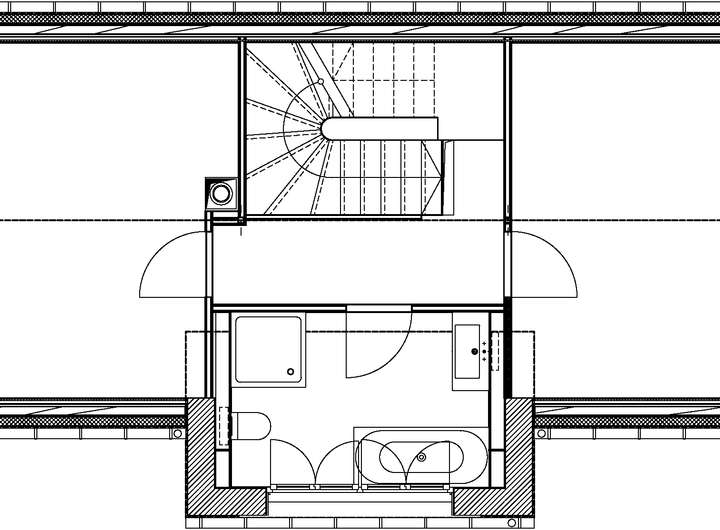
Das Obergeschoss verfügt über zwei gleich große Zimmer mit bodentiefen Fenstern und französischen Balkonen davor und ist durch die zahlreichen Dachflächenfenster absolut lichtdurchflutet. Das mittig angeordnete Badezimmer (Doppel-Waschtisch, bodengleiche Rainshowerdusche mit Duschtrennwand in rahmenlosen Einscheibensicherheitsglas und Wanne) hat eine Lichtkuppel.
Auf der Westseite des Hauses befindet sich ein Tiefhof, der über eine Außentreppe das Untergeschoss mit einem zweiten Haustüreingang erschließt. Das Untergeschoss mit drei Zimmern bietet durch das komplett ausgebaute Bad Möglichkeiten zur freien Gestaltung und verschiedene Nutzungen, z.B. auch als Büro oder Einliegerwohnung.
Das freistehende Haus ist im Jahr 2023 in massiver Ziegelbauweise errichtet worden und hat eine Gebäudelänge von 11,14 m und ist damit länger als die Nachbarbebauung.
MODERN CLASSIC – Exklusives Einfamilienhaus in Bestlage Villenkolonie Gräfelfing
Reginpertstraße 2a,
82166 Gräfelfing
Auf Karte anzeigen
Finanzierungszertifikat
In nur zwei Minuten zu Ihrem persönlichen Finanzierungszertifkat.
Infos
| Haustyp | Einfamilienhaus |
|---|---|
| Wohnfläche ca. | 170 m2 |
| Nutzfläche | 205 m2 |
| Grundstücksfläche | 360 m2 |
| Zimmer | 6 |
Kosten
| Kaufpreis |
2.980.000 € |
|---|---|
| Provision | Nein |
Finanzierungsrechner:
Kaufpreis:
600.000 €
Eigenkapital:
600.000 €
Monatliche Rate
0 €
Effektiver Jahreszins
0 %
Sollzinsbindung
10 Jahre
Bausubstanz & Energieausweis
| Baujahr | 2023 |
|---|---|
| Objektzustand | Neuwertig |
| Qualität der Austattung | Luxus |
| Energieausweis | liegt zur Besichtigung vor |
Beschreibung des Objekts
Ausstattung
Konventionelle, hochwertige Ziegel-Massivbauweise mit integrierter Wärmedämmung
Zimmermannsdach mit klassischen Biberschwanz-Dachziegeln
Velux Dachflächenfenster mit Außenrollos
Elektrische Metallraffstore
Landhausdielenparkett in Eiche im gesamten Haus, weiße Sockelleisten
Schreinergefertigte glatte Innentüren in Sonderhöhe, stumpf einschlagend in weiss mit Edelstahl-Beschlägen
Schreinergefertigte Holzfenster mit Dreifachverglasung und Sicherheitsbeschlägen
Elektrische Aluminium-Rollläden in schwarzgrau, einzeln steuerbar und zusätzlicher Zentralsteuerung (Fa. Roma)
Schreinergefertigte Kassetten-Haustüren (Hauseingang EG und Hauseingang Aussentreppe UG), Beschläge von Bisschop in Messing poliert verchromt
Geschwungene klassische Schreinertreppe mit Holzwangentreppen in Faltwerkoptik
Ganzglasgeländer im OG
Fußbodenheizung mit Einzelraumsteuerung in allen Geschossen (EG/OG/UG)
73 Deckeneinbau-Downlights (flächenbündige LED-Spots) in allen Stockwerken als Grundbeleuchtung (dimmbar)
Raumhohe hochwertige Schreinereinbauküche mit Natursteinplatte und Premiumeinbaugeräten (Bosch und Liebherr) + (Möglichkeit einer Kücheninsel)
Moderne Bäder mit exklusiven Sanitärgegenständen
Großformatige Feinsteinfliesen: Boden- und Wandfliesen in den Bädern (bis zu 1,20 m x 1,20 m)
Bodengleich geflieste Rainshowerdusche mit Duschrinne und Glasabtrennung in Bad OG und Bad UG
Klimaanlage im Dachgeschoss: beide Räume im Obergeschoss mit Deckenkühlgeräten zur Raumkühlung
Einbau eines Kaminzuges mit Designer-Kamin und Holzlege im Wohnzimmer (Fa. Bentlage, Starnberg)
Elektro-Bodentank im Wohn- und Essbereich
Stimmungsvolle Garten- und Außenbeleuchtung
Manufakturgefertigte Fassadenlampen (Fa. Winhart, München)
Elegante sandfarbene Feinsteinzeugplatten in Natursteinoptik (Terrasse, Gartenweg, Aussentreppe) (Fa. Die Fliese, Ismaning)
Video-Türsprechanlage mit integrierter Briefkastenanlage
Lage
Sehr ruhige Toplage im gefragtesten Viertel von Gräfelfing westlich der Bahn und in einer reinen Anliegerstr. (Reginpertstr.) und nicht an den Durchfahrtsstraßen in diesem Bereich (wie Ruffiniallee, Irminfriedstraße oder Maria-Eich-Straße). S-Bahn Nähe und 5 Minuten Fussweg zur Bahnhofstrasse.
Edle Wohngegend mit altem Villenbestand (Gräfelfinger Villenkolonie).
Sonstige Angaben
Die Villa verfügt über eine eigene mit Basalt-Kleinsteinen gepflasterte private Vorfahrt, die in eine großzügige Einzelgarage führt. Die Vorfahrt kann mit einer Länge von ca. 11 Metern auch als zusätzliche Parkmöglichkeit genutzt werden und ist zur Straße durch ein elektrisches Tor abgegrenzt.
Sehr geräumige Einzelgarage mit grossem Fenster und dunkelgrauem Fliesenboden mit Starkstromanschluss (Vorbereitung)
Garage: Elektrisch bedienbares Sektionaltor aus Holz (Fa. RUKU)
Elektrisches Einfahrtstor (Fa. RUKU)
Überdachter und geschützter Eingangsbereich
Exklusiver architektonischer Entwurf als Garantie für unverwechselbare Alleinstellung
(renommierter Architekt Michael Biedermannn, München)
Das Grundstück (360m²) bietet absolut ruhige Privatsphäre in grüner Umgebung, wobei das Zentrum der Gemeinde Gräfelfing nur wenige Minuten zu Fuß entfernt liegt
Modernste energetisch-nachhaltige Technik: Brennstoffzelle Viessmann Vitovalor PT2
Kalkschutzanlage für gesundes und reines Wasser (Entkalkungsanlage Grünbeck)
Aufwendig gefertigte Geländer und Zaunanlage
Eibenhecke
Das Haus ist mängelfrei und sofort beziehbar.
DIESE IMMOBILIE WIRD PROVISIONSFREI DIREKT VOM EIGENTÜMER VERKAUFT!
BESICHTIGUNGEN SIND JEDERZEIT NACH TELEFONISCHER ABSPRACHE UNTER 015174221586 MÖGLICH.
BITTE KEINE MAKLERANFRAGEN!
Grundriss
Grundriss EG
>
>
Grundriss OG
>
>
Grundriss UG
>
PDF
Download
>
PDF Download
PDF Download
PDF Download
PDF Download
Adresse
Reginpertstraße 2a, 82166 Gräfelfing
Interessante Orte
Preis- und Lageinformationen
Preistrend für Bestandsimmobilien in Gräfelfing