Dieses Split-Level-Architektenhaus in Altwarmbüchen ist kein gewöhnliches Zuhause – es ist ein Lebensgefühl. Auf 235 m² Wohnfläche und einem Grundstück von 570 m² wurde 2020 nahezu jeder Bereich mit viel Liebe zum Detail kernsaniert und auf den neuesten Stand gebracht. Das Ergebnis ist ein perfekter Mix aus Design, Komfort und smarter Technik – ideal für Familien, die mehr erwarten. Schon beim Betreten spürt man die besondere Atmosphäre. Edles Bio-Eichenparkett in den Wohnräumen, großformatige Fliesen in Bädern, Küche und Fluren sowie hochwertiger Kalkputz an allen Wänden schaffen ein gesundes und stilvolles Wohnklima. Die offene Häcker-Küche ist das Herzstück des Hauses: weiße Glasfronten mit mattschwarzen Griffen, eine Arbeitsplatte aus Dekton, Miele-Einbaugeräte, ein Bora-Kochfeld mit Außenabzug und das praktische Quooker-System machen sie zum Treffpunkt für gemeinsames Kochen und gesellige Familienabende. Auch technisch ist das Haus auf höchstem Niveau. Das intelligente Smart-Home-System von Homematic und Homematic IP steuert Beleuchtung und Rollläden bequem und effizient. Neue Fenster und Türen mit Dreifachverglasung, elektrische Rollläden, eine Haustüre mit Fingerabdrucksystem und Videoklingel sowie maßgefertigte Tischlerarbeiten wie die Treppe aus Eiche und Glas oder individuell gefertigte Fensterbänke setzen zusätzliche Akzente. Die Fußbodenheizung unter allen gefliesten Flächen sorgt für wohlige Wärme, während der optimierte Grundriss mit zusammengelegten Räumen im Obergeschoss und offenen Wohnbereichen im Erdgeschoss für noch mehr Raumgefühl und Familienfreundlichkeit sorgt. Neben Komfort bietet dieses Haus auch echte Wellness-Highlights. Im Keller befindet sich ein renoviertes Schwimmbad, das sich mit wenig Aufwand wieder in Betrieb nehmen lässt, und eine Sauna mit neuem Saunaofen lädt zu entspannten Stunden ein. Die Photovoltaikanlage mit 15 kWp und 10 kW Speicher macht das Haus besonders energieeffizient, und die Wallbox für E-Autos bringt die Zukunft direkt in die eigene Einfahrt. Neue Vinylböden im Keller sowie die 2024 durchgeführte Dämmung der Dachschrägen auf der Westseite runden das Gesamtpaket ab. Die Lage ist wie gemacht für Familien: In einer ruhigen Sackgasse gelegen, können Kinder unbeschwert draußen spielen. Gleichzeitig sind Schulen, Kitas, Einkaufsmöglichkeiten und die Straßenbahn in wenigen Minuten zu Fuß erreichbar. Auch Fitnessstudios, Restaurants und Parks befinden sich direkt in der Nähe – perfekt für ein urbanes, entspanntes Familienleben. Dieses Haus bietet wirklich alles: Platz für eine große Familie, hochwertige Ausstattung, modernste Technik, Wellness-Features und eine Lage, die urbanes Leben und Ruhe perfekt miteinander verbindet.
Architektenhaus mit WOW-Effekt: Platz, Stil und smarte Features für die ganze Familie!
30916 Isernhagen
Die vollständige Adresse der Immobilie erhalten Sie vom Anbieter.
Auf Karte anzeigen
Die vollständige Adresse der Immobilie erhalten Sie vom Anbieter.

Finanzierungszertifikat
In nur zwei Minuten zu Ihrem persönlichen Finanzierungszertifkat.
Infos
Haustyp | Einfamilienhaus |
---|---|
Etagenzahl | 2 |
Wohnfläche ca. | 235 m2 |
Nutzfläche | 150 m2 |
Grundstücksfläche | 570 m2 |
Bezugsfrei ab | nach Vereinbarung |
Zimmer | 6 |
Schlafzimmer | 5 |
Badezimmer | 4 |
Garage/Stellplatz | Garage |
Anzahl Garage/Stellplatz | 2 |
Kosten
Kaufpreis |
860.000 € |
---|---|
Provision |
2,975 % inkl. 19% MwSt |
Finanzierungsrechner:
Kaufpreis:
600.000 €
Eigenkapital:
600.000 €
Monatliche Rate
0 €
Effektiver Jahreszins
0 %
Sollzinsbindung
10 Jahre
Bausubstanz & Energieausweis
Baujahr | 1975 |
---|---|
Letzte Sanierung | 2024 |
Objektzustand | Saniert |
Qualität der Austattung | Gehoben |
Heizungsart | Gas-Heizung |
Wesentliche Energieträger | Gas |
Energieausweis | liegt vor |
Energieausweistyp | Bedarfsausweis |
Energieverbrauchskennwert | 162,0 kWh/(m²*a) |
Energieeffizienzklasse | F |
162,0
kWh/(m²*a)
Energieeffizienzklasse F
- A+
- A
- B
- C
- D
- E
- F
- G
- H
- 0
- 25
- 50
- 75
- 100
- 125
- 150
- 175
- 200
- 225
- >250
Beschreibung des Objekts
Ausstattung
2020 – 2024: Kernsanierung und hochwertige Erneuerungen: • Elektrik: Komplette Erneuerung der gesamten Elektroinstallation inklusive LAN- und SAT-Verkabelung • Smart Home: Installation eines modernen Smart-Home-Systems (Homematic und Homematic IP) • Beide Badezimmer im Obergeschoss vollständig neu • Umbau des Gäste-WCs im Erdgeschoss zu einem Gästebad mit Dusche • Wohnräume mit hochwertigem Bio-Eichenparkett • Bäder, Küche und Flure mit großformatigen Fliesen • Alle Wände mit neuem Kalkputz • Alle Zimmertüren erneuert • Neue Haustür mit Fingerabdrucksystem und Videoklingel • Alle Fenster und Türelemente neu (3-fach verglast) • Alle Rollläden in Wohnräumen, Esszimmer und Küche elektrisch, steuerbar über Smart Home • Fensterbänke individuell vom Tischler gefertigt • Obergeschoss: Zusammenlegung von 3 kleinen Zimmern zu 2 größeren • Erdgeschoss: Entfernung der Wand zwischen Küche und Esszimmer für ein offenes Wohnkonzept • Treppenanlage: Neuaufbau mit Holzstufen aus Eiche und Glas-Setzstufen, individuell vom Tischler gefertigt • Neue Heizkörper • Fußbodenheizung über Rücklauf unter allen gefliesten Flächen • Neue offene Häcker-Küche mit weißen Glasfronten und mattschwarzen Griffen • Arbeitsplatte aus Dekton (matt schwarz) • Miele Einbaugeräte, Quooker-System, Bora-Kochfeld mit Außenabzug • Schwimmbad: Renovierung mit neuer Pumpe, Lüftung, Beleuchtung und Wandgestaltung • Sauna: Einbau eines neuen Saunaofens • Einbauschränke: Maßgefertigter Einbauschrank im Flur (Erdgeschoss) • Photovoltaik: Senec-Anlage mit 15 kWp und 10 kW Speicher • E-Mobilität: Installation einer Wallbox für Elektroautos • Keller: Neue Vinyl-Bodenbeläge • Dämmung der Dachschrägen auf der Westseite zur weiteren Verbesserung der Energieeffizienz
Lage
Altwarmbüchen, ein begehrter Ortsteil von Isernhagen direkt am nordöstlichen Stadtrand von Hannover, vereint die Ruhe einer familienfreundlichen Wohnlage mit der Nähe zur Großstadt. Die hervorragende Infrastruktur, vielfältige Freizeitangebote und eine ausgezeichnete Verkehrsanbindung machen den Standort besonders attraktiv. Einkaufsmöglichkeiten, Restaurants, Ärzte und Apotheken sind schnell erreichbar und bieten eine komfortable Nahversorgung. Familien profitieren von einem breiten Bildungsangebot mit Kindergärten, Grund- und weiterführenden Schulen direkt vor Ort. Für Naturliebhaber bietet der nahegelegene Altwarmbüchener See ein beliebtes Naherholungsgebiet mit Bade- und Wassersportmöglichkeiten. Auch weitläufige Grünflächen und Radwege prägen die Umgebung und sorgen für eine hohe Lebensqualität. Die Verkehrsanbindung ist hervorragend: Mit der Stadtbahnlinie 3 erreichen Sie die Innenstadt Hannovers in kurzer Zeit. Über die nahegelegene A2 und A7 sind auch überregionale Ziele schnell erreichbar. Altwarmbüchen ist damit die perfekte Kombination aus urbaner Nähe, ruhigem Wohnen und hoher Lebensqualität – ein idealer Ort für Familien und alle, die ein harmonisches Umfeld schätzen.
Sonstige Angaben
• Energieausweis und alle weiteren relevanten Unterlagen liegen zur Besichtigung vor Damit wir Ihre Anfrage zügig bearbeiten können, bitten wir Sie, uns Ihre vollständigen Kontaktdaten zu übermitteln. Bitte haben Sie Verständnis, dass unvollständige Anfragen leider nicht berücksichtigt werden können. Wir freuen uns darauf, Ihnen das Objekt persönlich vorstellen zu dürfen! Alle Angaben beruhen auf Informationen Dritter, die wir nach Möglichkeit sorgfältig geprüft haben. Eine Gewähr für die Richtigkeit und Vollständigkeit kann jedoch nicht übernommen werden. Irrtümer und Zwischenverkauf bzw. -vermietung bleiben vorbehalten.
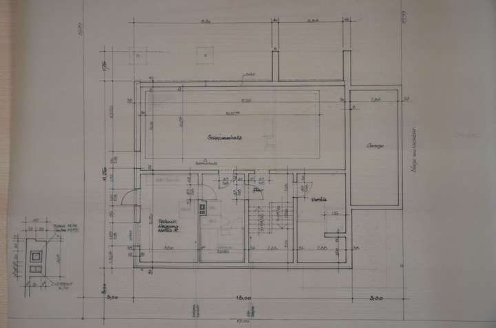
Grundriss
Grundriss Keller.jpg
>

Grundriss EG.jpg
>

Grundriss OG.jpg
>

Adresse
30916 Isernhagen
Interessante Orte
Preis- und Lageinformationen
Preistrend für Bestandsimmobilien in Isernhagen