Willkommen in diesem ca. 1936 erbauten und charmanten Zweifamilienhaus. Das Haus bietet eine großzügige Wohnfläche von 191 m² und befindet sich in der Bernsteinstadt Ribnitz-Damgarten, die durch ihre lebendige Gemeinschaft und die idyllische Umgebung besticht. Das Besondere an diesem Objekt ist die Nutzung als intensives betreutes Wohnen, in dem insgesamt bis zu 7 Mietparteien in einer harmonischen und teilweise langjährigen Wohngemeinschaft leben. Hier entsteht ein lebendiges Miteinander, das sowohl Gemeinschaftssinn als auch Privatsphäre ermöglicht.
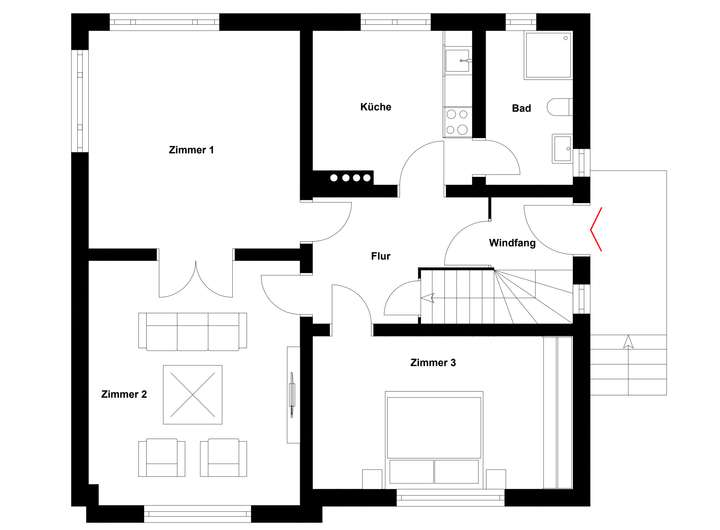
Die Immobilie verfügt über gut aufgeteilte Wohnräume auf 3 Etagen. Im Erdgeschoss befinden sich eine voll ausgestattete Gemeinschaftsküche mit Zugang zum Tageslicht-Duschbad mit Walk-In Dusche sowie 3 vermietete Zimmer. Eine weitere Gemeinschaftsküche sowie ein weiteres Tageslicht-Duschbad mit Walk-In Dusche und 2 vermietet Räume beherbergt das Erste Obergeschoss. Auf dieser Ebene lädt gleichwohl ein Gemeinschaftsraum mit Esstisch, TV und Couch zum gemeinsamen Beisammensein ein. Das 2. Obergeschoss verfügt über ein Gäste-WC mit Tageslicht und wird ebenfalls von 2 Mietparteien bewohnt. Der teilunterkellerte Bereich des Hauses dient als Waschküche. Die zentrale Lage in Ribnitz-Damgarten bietet eine hervorragende Infrastruktur mit Einkaufsmöglichkeiten, Schulen und öffentlichen Verkehrsmitteln in unmittelbarer Nähe.
Ab 2012 wurde die Immobilie umfassend saniert. Zu den Sanierungen zählen unter anderem die Dacheindeckung samt Dämmung, die Elektrik und das Abwasser im gesamten Haus, die Bäder, 2 Flügeltüren, teilweise die Fußböden sowie die Gastherme im Jahr 2023.
Diese Immobilie ist ideal für Kapitalanleger mit sozialem Aspekt und all diejenigen, die sich eine Immobilie an diesem Standort sichern möchten.
Attraktives Zweifamilienhaus mit sozialem Gemeinschaftscharakter als Kapitalanlage
18311 Ribnitz-Damgarten
Die vollständige Adresse der Immobilie erhalten Sie vom Anbieter.
Auf Karte anzeigen
Die vollständige Adresse der Immobilie erhalten Sie vom Anbieter.
Finanzierungszertifikat
In nur zwei Minuten zu Ihrem persönlichen Finanzierungszertifkat.
Infos
| Haustyp | Einfamilienhaus |
|---|---|
| Wohnfläche ca. | 191 m2 |
| Grundstücksfläche | 452 m2 |
| Zimmer | 9 |
| Badezimmer | 3 |
Kosten
| Kaufpreis |
380.000 € |
|---|---|
| Provision |
3.57 % inkl. gesetzl. MwSt. |
Finanzierungsrechner:
Kaufpreis:
600.000 €
Eigenkapital:
600.000 €
Monatliche Rate
0 €
Effektiver Jahreszins
0 %
Sollzinsbindung
10 Jahre
Bausubstanz & Energieausweis
| Baujahr | 1936 |
|---|---|
| Letzte Sanierung | 2014 |
| Wesentliche Energieträger | Gas |
| Energieausweis | liegt vor |
| Energieausweistyp | Bedarfsausweis |
| Energieverbrauchskennwert | 292,3 kWh/(m²*a) |
| Energieeffizienzklasse | H |
292,3
kWh/(m²*a)
Energieeffizienzklasse H
- A+
- A
- B
- C
- D
- E
- F
- G
- H
- 0
- 25
- 50
- 75
- 100
- 125
- 150
- 175
- 200
- 225
- >250
Beschreibung des Objekts
Ausstattung
Einbauküche
Teilunterkellert
Lage
Die Bernsteinstadt Ribnitz-Damgarten wurde 1233 erstmals urkundlich erwähnt und liegt mit seinen etwa 16.300 Einwohnern am Südufer des Saaler Boddens, zwischen Rostock und Stralsund. Der staatlich anerkannte Erholungsort ist das Tor zur Halbinsel Fischland-Darß-Zingst und verbindet seit 1950, durch den Zusammenschluss der mecklenburgischen Stadt Ribnitz und dem vorpommeranischen Damgarten, Mecklenburg und Vorpommern zu einem Bundesland. Heute verbindet eine Brücke die beiden Stadtteile, welche damals von der Recknitz abgegrenzt waren. Die Recknitz-Brücke ziert heute auf der einen Seite der pommersche Greif und auf der anderen der mecklenburgische Ochsenkopf. Ribnitz kommt aus dem slawischen Namen Rybanis, was soviel wie Fischort bedeutet. Lassen Sie sich von dem historischen Stadtkern mit der St. Marien Kirche auf dem Marktplatz, dem Sankt Klaren Kloster mit dem integrierten deutsche Bernsteinmuseum und dem Stadtpark, mit dem Namen "Klosterwiesen", verzaubern oder atmen Sie an dem Stadthafen tief durch. In den Sommermonaten laden zahlreiche Stadtfeste, wie zum Bespiel das Bernsteinfest und Hafenfest, zum Verweilen ein. Den ca. 8 km entfernten Strand von Neuhaus erreicht man bequem in ca. 30 Minuten mit dem Fahrrad entlang am Saaler Bodden, vorbei an satten Wiesen und Schilfflächen und durch einen kleinen Mischwald. Weitere Entfernungen: Rostock-Innenstadt/ Ribnitz-Damgarten über die B105 in ca. 30 Minuten, Stralsund-Innenstadt/ Ribnitz-Damgarten über die B105 in ca.50 Minuten, Hamburg-Alster/ Ribnitz-Damgarten über die A1/ A20 in ca. 2 Stunden 10 Minuten, Berlin-Kurfürstendamm/ Ribnitz-Damgarten über die A24/ A19 in ca. 2 Stunden 35 Minuten.
Sonstige Angaben
Der Makler-Vertrag mit uns kommt durch die Bestätigung der Inanspruchnahme unserer Maklertätigkeit in Textform zustande, wie z.B. insbesondere die Unterschrift des Maklervertrages und des Objektnachweises. Die Höhe der Courtage richtet sich nach den gesetzlichen Regelungen zur Teilung der Maklercourtage. Hiernach beträgt die Courtage regelmäßig für beide Parteien (Eigentümer und Käufer) 3,57 % auf den Kaufpreis einschließlich gesetzlicher Mehrwertsteuer und ist bei notariellem Vertragsabschluss verdient und fällig. Die V8 Immobilien GmbH erhält einen unmittelbaren Zahlungsanspruch gegenüber dem Käufer (Vertrag zugunsten Dritter, § 328 BGB). Grunderwerbssteuer, Notar- und Gerichtskosten trägt der Käufer.
Grundriss
Kellergeschoss
>
>
Erdgeschoss
>
>
Obergeschoss
>
>
Dachgeschoss
>
>
Adresse
18311 Ribnitz-Damgarten
Interessante Orte
Preis- und Lageinformationen
Preistrend für Bestandsimmobilien in Ribnitz-Damgarten