Vielseitiges Wohnen mit Potenzial – Doppelhaushälfte in Seefeld
In ruhiger Lage von Seefeld erwartet Sie diese großzügige Doppelhaushälfte mit durchdachtem Raumangebot und zahlreichen Nutzungsmöglichkeiten. Auf insgesamt ca. 7 Zimmer verteilt sich ein flexibler Grundriss, der sowohl für Familien, Mehrgenerationenwohnen als auch für Kapitalanleger oder Selbstnutzer mit Vermietungsoptionen ideal geeignet ist.
Ein besonderes Highlight ist das separate Treppenhaus, das eine klare Trennung in bis zu drei eigenständige Wohneinheiten ermöglicht. Ob als Mehrgenerationenlösung, Kombination aus Wohnen und Arbeiten oder Teilvermietung – hier sind Ihren Ideen keine Grenzen gesetzt.
Die Immobilie besticht durch einen liebevoll angelegten, kleinen Garten, der zum Entspannen einlädt und Platz für Freizeit und Familie bietet. Für behagliche Stunden sorgt ein gemütlicher Kachelofen im Wohnbereich – ideal für kalte Wintertage.
Ein vorhandener Anbau eröffnet zusätzliche Möglichkeiten, z. B. als Homeoffice, Atelier oder Gästezimmer. Die Photovoltaikanlage auf dem Dach liefert nachhaltige Energie und reduziert langfristig die Nebenkosten – ein echter Pluspunkt in der heutigen Zeit.
Auch die Fenster wurden bereits erneuert. Ansonsten bietet das Haus viele Möglichkeiten sich in der Gestaltung zu verwirklichen.
Zahlreiche Stellplätze sowie eine Garage bieten ausreichend Platz für Ihre Fahrzeuge und zusätzlichen Stauraum.
Dieses Haus vereint Wohnkomfort, Flexibilität und Zukunftspotenzial in einer der attraktivsten Lagen des Fünfseenlands. Überzeugen Sie sich selbst von dieser seltenen Gelegenheit!
Doppelhaushälfte für Mehrgenerationen mit Potential!
82229 Seefeld
Die vollständige Adresse der Immobilie erhalten Sie vom Anbieter.
Auf Karte anzeigen
Die vollständige Adresse der Immobilie erhalten Sie vom Anbieter.
Finanzierungszertifikat
In nur zwei Minuten zu Ihrem persönlichen Finanzierungszertifkat.
Infos
| Haustyp | Doppelhaushaelfte |
|---|---|
| Etagenzahl | 3 |
| Wohnfläche ca. | 181 m2 |
| Nutzfläche | 63 m2 |
| Grundstücksfläche | 428 m2 |
| Bezugsfrei ab | sofort |
| Zimmer | 7 |
| Schlafzimmer | 5 |
| Badezimmer | 3 |
| Garage/Stellplatz | Garage |
| Anzahl Garage/Stellplatz | 1 |
Kosten
| Kaufpreis |
850.000 € |
|---|---|
| Provision |
3,57 |
Finanzierungsrechner:
Kaufpreis:
600.000 €
Eigenkapital:
600.000 €
Monatliche Rate
0 €
Effektiver Jahreszins
0 %
Sollzinsbindung
10 Jahre
Bausubstanz & Energieausweis
| Baujahr | 1972 |
|---|---|
| Objektzustand | Renovierungsbedürftig |
| Heizungsart | Öl-Heizung |
| Wesentliche Energieträger | Öl |
| Energieausweis | liegt vor |
| Energieausweistyp | Verbrauchsausweis |
| Energieverbrauchskennwert | 92,3 kWh/(m²*a) |
| Energieeffizienzklasse | C |
92,3
kWh/(m²*a)
Energieeffizienzklasse C
- A+
- A
- B
- C
- D
- E
- F
- G
- H
- 0
- 25
- 50
- 75
- 100
- 125
- 150
- 175
- 200
- 225
- >250
Beschreibung des Objekts
Ausstattung
- Photovoltaikanlage
- Anbau
- Garten
- 3 Bäder
- Kamin
- Garage
- separates Treppenhaus
Lage
Attraktive Lage in Seefeld – Wohnen im begehrten Fünfseenland
Diese charmante Doppelhaushälfte befindet sich in ruhiger und familienfreundlicher Lage in Seefeld und bietet die perfekte Kombination aus naturnahem Wohnen und idealer Anbindung. Das Haus liegt in einer verkehrsberuhigten Seitenstraße mit angenehmer Nachbarschaft, eingebettet in eine grüne, gewachsene Wohngegend.
Seefeld im oberbayerischen Landkreis Starnberg gehört zu den gefragtesten Wohnlagen im Münchner Umland. Nur wenige Minuten entfernt befindet sich der Pilsensee – ein idyllischer Badesee mit hervorragender Wasserqualität, der im Sommer zum Schwimmen, Bootfahren und Entspannen einlädt. Auch der Ammersee und der Wörthsee sind schnell erreichbar.
Die Umgebung bietet zahlreiche Freizeit- und Sportmöglichkeiten – von Rad- und Wanderwegen bis hin zu Golfplätzen und Segelclubs. Familien profitieren von einem breiten Bildungsangebot mit Kindergärten, Grund- und weiterführenden Schulen in der Nähe.
Die S-Bahn-Station Seefeld-Hechendorf bringt Sie in ca. 35 Minuten bequem ins Zentrum von München. Mit dem Auto sind es etwa 30 Minuten bis in die Landeshauptstadt, die Autobahnanbindung ist hervorragend.
Grundriss
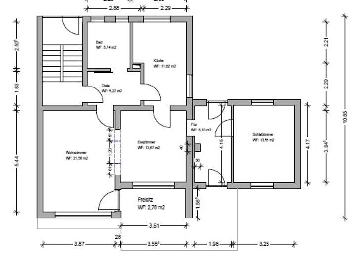
Grundriss Erdgeschoss
>
>
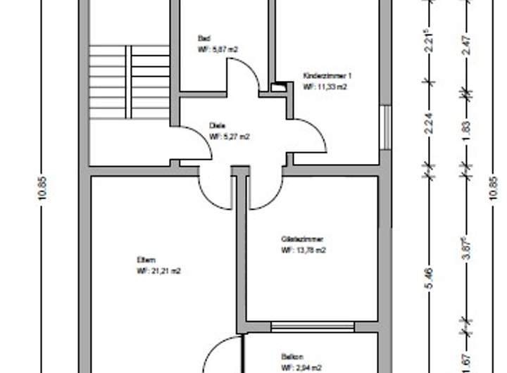
Grundriss Obergeschoss
>
>
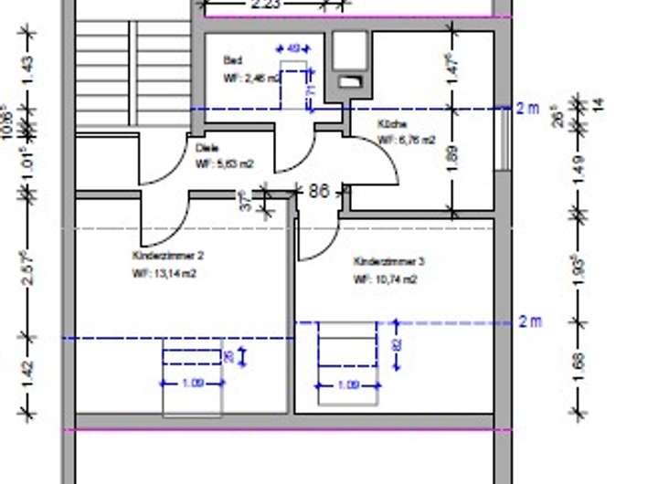
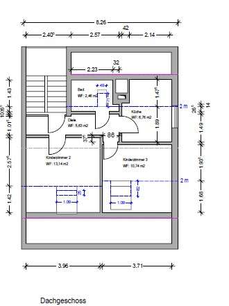
Grundriss Dachgeschoss
>
>
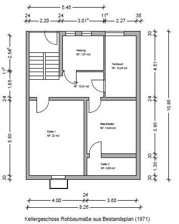
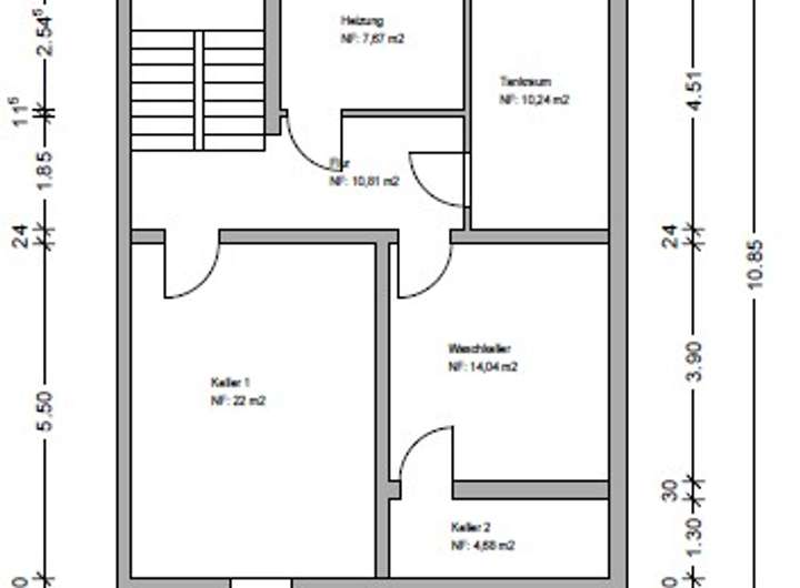
Grundriss Keller
>
>
Adresse
82229 Seefeld
Interessante Orte
Preis- und Lageinformationen
Preistrend für Bestandsimmobilien in Seefeld