Dieses wunderschöne Fachwerkhaus wurde als Zweifamilienhaus gebaut und bietet Ihnen auf einer Grundstücksfläche von 1935 m² pure Wohnqualität. Mit insgesamt 348 m² Wohnfläche verteilt auf 9,5 Zimmer und über zwei Etagen hinweg, bietet diese Immobilie ausreichend Platz für die ganze Familie. Dieses Traumhaus bietet Ihnen nicht nur ein stilvolles Ambiente, sondern auch modernen Komfort und hochwertige Ausstattung. Eines der Highlights dieser Immobilie ist die separate 2 Zi. Anliegerwohnung mit ca. 65 m², die sich perfekt für Gäste, als Home Office oder auch zur Vermietung eignet. Die Wohnung ist komplett autark und hat ihre eigene Heizung sowie auch Zähler, welche die Abrechnung erleichtern. Neben dem stilvollen Fachwerk punktet dieses Haus mit einer modernen Fußbodenheizung, die für wohlige Wärme in allen Räumen sorgt. Der Eingangsbereich des Haupthauses überzeugt mit ihrem offenen Design und einem prachtvollen Kronleuchter. Im Erdgeschoss finden Sie die hochwertige und offene Küche mit angrenzenden Essbereich, eine Bibliothek und das knapp 50 m² große Wohnzimmer mit herrlichem Kamin. Außerdem ist ein Gäste-WC vom Flur aus erreichbar. Die ehemalige Garage, welche hochwertig zu einem separaten Büro oder auch Gäste-Zimmer umgebaut wurde, erwartet Sie ebenfalls im Erdgeschoss. Im Obergeschoss finden Sie vier Schlafzimmer sowie zwei Vollbäder. Eines der Bäder befindet sich aktuell im Rohbau und kann nach Ihren eigenen Wünschen ausgebaut werden. Das Dachgeschoss kann ebenfalls ausgebaut werden und hat eine reine Fläche von knapp 30 m². Der Keller wurde 2025 frisch saniert und auch Ausbesserungs- und Malerarbeiten an der Fassade wurden durchgeführt, so dass Sie sich hier um nichts mehr kümmern müssen. Der Keller wurde aufwendig und hochwertig saniert und sog. "Weiße Wanne" verbaut. Sie schützt den Keller vor Grundwasser, Sickerwasser und aufsteigender Feuchtigkeit und ist wesentlich langlebiger und kostenintensiver in der Erstellung als handelsübliche Keller. Das Haus verfügt zudem über einen Carport mit Doppelstellplatz. Die ruhige Lage innerhalb einer Sackgasse sorgt für eine entspannte Atmosphäre und lädt zum Verweilen ein.
Traum in der Wedemark: Wunderschönes Fachwerkhaus auf idyllischem Grundstück
30900 Wedemark
Die vollständige Adresse der Immobilie erhalten Sie vom Anbieter.
Auf Karte anzeigen
Die vollständige Adresse der Immobilie erhalten Sie vom Anbieter.

Finanzierungszertifikat
In nur zwei Minuten zu Ihrem persönlichen Finanzierungszertifkat.
Infos
Haustyp | Einfamilienhaus |
---|---|
Etagenzahl | 2 |
Wohnfläche ca. | 348 m2 |
Grundstücksfläche | 1.935 m2 |
Zimmer | 9,5 |
Garage/Stellplatz | Carport |
Anzahl Garage/Stellplatz | 2 |
Kosten
Kaufpreis |
1.250.000 € |
---|---|
Provision |
7.14 % inkl. MwSt. Bei Abschluss eines notariellen Kaufvertrages ist eine Käuferprovision vom Käufer in Höhe von 7.14 % inkl. MwSt. aus dem Kaufpreis fällig. |
Finanzierungsrechner:
Kaufpreis:
600.000 €
Eigenkapital:
600.000 €
Monatliche Rate
0 €
Effektiver Jahreszins
0 %
Sollzinsbindung
10 Jahre
Bausubstanz & Energieausweis
Baujahr | 1982 |
---|---|
Letzte Sanierung | 2025 |
Objektzustand | Gepflegt |
Qualität der Austattung | Gehoben |
Heizungsart | Gas-Heizung |
Wesentliche Energieträger | Gas |
Energieausweis | liegt vor |
Energieausweistyp | Verbrauchsausweis |
Energieverbrauchskennwert | 100,0 kWh/(m²*a) |
Energieeffizienzklasse | C |
100,0
kWh/(m²*a)
Energieeffizienzklasse C
- A+
- A
- B
- C
- D
- E
- F
- G
- H
- 0
- 25
- 50
- 75
- 100
- 125
- 150
- 175
- 200
- 225
- >250
Beschreibung des Objekts
Ausstattung
-9,5 Zimmer -Fußbodenheizung -348 m² Wohnfläche -separate Anliegerwohnung -Carport mit Doppelstellplatz -sanierter Keller aus 2025 (weiße Wanne)
Lage
Das charmante Fachwerkhaus befindet sich im idyllischen Ortsteil Wietze der Gemeinde Bissendorf, in einer Sackgasse – einer ruhigen und familienfreundlichen Anliegerstraße mit gehobenem Wohnumfeld. Die Nachbarschaft ist geprägt von großzügigen Einfamilienhäusern und gepflegten Gärten – ein idealer Rückzugsort für Familien, die Wert auf Privatsphäre, Natur und stilvolles Wohnen legen. Die grüne Umgebung lädt zu Spaziergängen, Fahrradtouren und entspannten Nachmittagen im eigenen Garten ein. Gleichzeitig ist die Anbindung an die Infrastruktur hervorragend: Schulen, Kindergärten und Einkaufsmöglichkeiten befinden sich in kurzer Entfernung. Die nahegelegene Autobahn A7 sowie die schnelle Erreichbarkeit von Hannover machen den Standort auch für Pendler attraktiv. Ein Wohnort für Menschen mit Anspruch – ruhig, naturnah und dennoch bestens angebunden.
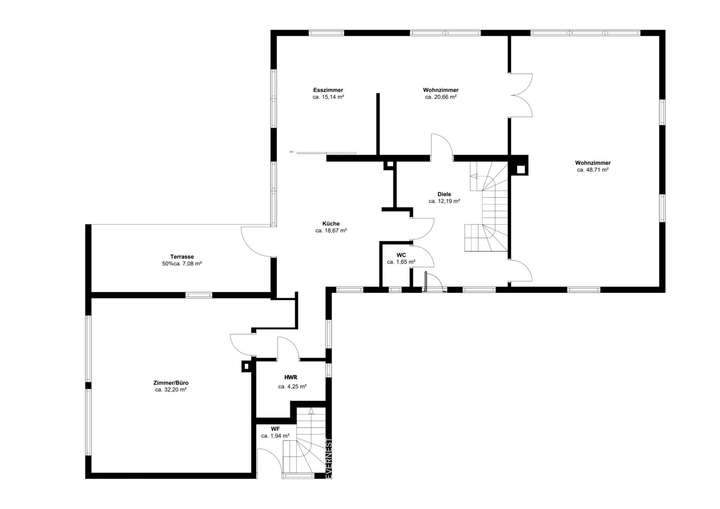
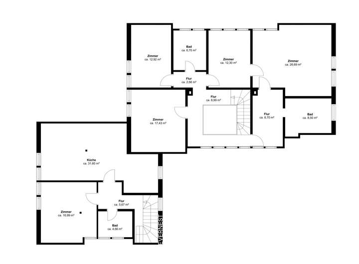
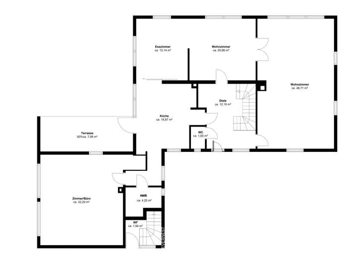
Grundriss
Erdgeschoss
>

1.Obergeschoss
>

Dachgeschoss
>

Kellergeschoss
>

Adresse
30900 Wedemark
Interessante Orte
Preis- und Lageinformationen
Preistrend für Bestandsimmobilien in Wedemark