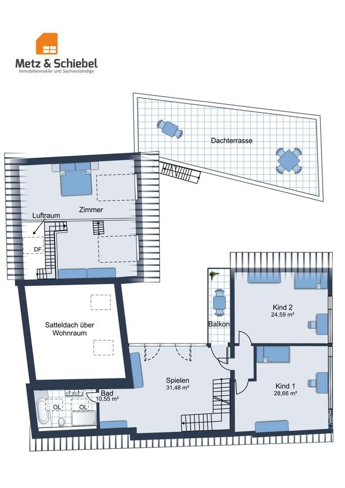
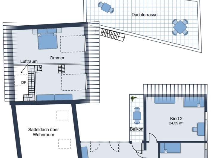
Mitten in Hofheim-Wallau treffen sich auf einem Grundstück zwei Wohnwelten: Moderne Lifestyle-Immobilie in Symbiose mit geschmackvollem Landhausstil! Mit Hingabe und Liebe zum Detail wurde die ehemalige Hofreite vom Eigentümer durch Ausbau und Zusammenlegung mehrerer vorhandener Häuser, in einen modernen, geschmackvollen Wohntraum auf über 270 m² umgewandelt. Im Zentrum des Hauses befindet sich eine offene, moderne Wohn-Ess-Küche mit Blick durch die Vollverglasung auf die Terrasse. Um den Sommer ins Haus zu holen, lässt sich die gesamte Fensterfront öffnen, inspiriert von südlichen Bauweisen. Der rechte "Flügel" des Hauses wird aktuell von den Kindern genutzt. Im 1. OG findet sich das Spielzimmer; von hier erreicht man das exklusive Tageslichtbad mit Wanne & Dusche, einen Balkon und die zwei etwa 25 m² großen Kinderzimmer ab. Im linken "Flügel" neben der Küche befindet sich das Gäste-WC und ein Gästezimmer. Von der Küche gelangt man in den "alten" Baubestand, der ein landhaustypisches, charmantes Wohnzimmer mit Kamin und freigelegten Holzbalken beherbergt. Im hinteren Bereich aktuell ein Fitnessraum mit angrenzendem Luxus-Duschbad. Eine moderne Treppe führt in den "Elternbereich" mit 2 geschossiger Galerie. Im Innenhof befindet sich eine große Werkstatt von ca. 40 m²,ein Traum für Handwerker jeglicher Gewerke. Die darüberliegende, riesige Sonnenterrasse garantiert genussvolle Tage und Abende! Ein weiteres Highlight: Die Doppelgarage für 2 Pkw's mit direktem Hauszugang und die Möglichkeit, weitere 2 Pkw`s (aktuell) oder mehr zu parken. Die Außenbereiche bieten eine erholsame Freiraum-Nutzung, ohne aufwendige Gartenpflege. Auf Wunsch kann der Innenhof sowie die Dachterrasse der Werkstatt begrünt oder bepflanzt werden. Fazit: Diese einzigartige Immobilie spricht Menschen an, die Privatsphäre und Sicherheit schätzen, Wert auf Qualität und Individualität legen und z. B. generationsübergreifend getrennt und dennoch gemeinschaftlich zusammen leben möchten
Wallau: Eigene "Wohninsel" mit viel Privatsphäre! Hofhaus 270 m², nutzbar auch für 2 Generationen.
65719 Hofheim am Taunus
Die vollständige Adresse der Immobilie erhalten Sie vom Anbieter.
Auf Karte anzeigen
Die vollständige Adresse der Immobilie erhalten Sie vom Anbieter.

Finanzierungszertifikat
In nur zwei Minuten zu Ihrem persönlichen Finanzierungszertifkat.
Infos
Haustyp | Einfamilienhaus |
---|---|
Wohnfläche ca. | 272 m2 |
Nutzfläche | 84,34 m2 |
Grundstücksfläche | 373 m2 |
Bezugsfrei ab | nach Absprache |
Zimmer | 7 |
Schlafzimmer | 4 |
Badezimmer | 2 |
Garage/Stellplatz | Garage |
Anzahl Garage/Stellplatz | 2 |
Kosten
Kaufpreis |
797.500 € |
---|---|
Provision |
3,57% des Kaufpreises inkl. MwSt. |
Finanzierungsrechner:
Kaufpreis:
600.000 €
Eigenkapital:
600.000 €
Monatliche Rate
0 €
Effektiver Jahreszins
0 %
Sollzinsbindung
10 Jahre
Bausubstanz & Energieausweis
Baujahr | 2015 |
---|---|
Objektzustand | Modernisiert |
Heizungsart | Zentralheizung |
Wesentliche Energieträger | Gas |
Energieausweis | liegt vor |
Energieausweistyp | Bedarfsausweis |
Energieverbrauchskennwert | 111,3 kWh/(m²*a) |
Energieeffizienzklasse | D |
111,3
kWh/(m²*a)
Energieeffizienzklasse D
- A+
- A
- B
- C
- D
- E
- F
- G
- H
- 0
- 25
- 50
- 75
- 100
- 125
- 150
- 175
- 200
- 225
- >250
Beschreibung des Objekts
Ausstattung
- Offener Küchen-Essbereich mit Blick auf die Terrasse - Hochwertig Einbauküche - Komplett zu öffnende Glasfront zur Terrasse - 2 Top-moderne, große Bäder - Gäste-WC - barrierefreies Gäste-Zimmer - 2 Kinderzimmer mit jeweils ca. 25m² - Spielzimmer/Medienzimmer - Schall gedämmtes Musikzimmer - Fitnessraum - Freigelegte Deckenbalken in Wohn- & Schlafzimmer - Garage für 2 Autos mit direktem Zugang zum Wohnraum - Zusätzlich Platz für 2 Autos im Innenhof - Elektrisches Garagentor - Klimaanlage - Fußbodenheizung - Video-Sprechanlage - Eingelassene Deckenspots - Anbau mit großer Werkstatt - Über 40m² Dachterrasse auf dem Anbau - Speicherraum unter der Elternschlafetage - Heizungsraum mit Platz für Waschmaschine & Trockner
Lage
Hofheim-Wallau ist ein charmanter Stadtteil im Main-Taunus-Kreis, der sich durch eine attraktive Lage und eine hohe Lebensqualität auszeichnet. Die Umgebung bietet eine gelungene Mischung aus ländlichem Flair und urbanen Annehmlichkeiten. Die Anbindung an die Verkehrsinfrastruktur ist hervorragend, mit schnellen Verbindungen nach Frankfurt am Main und Wiesbaden, sowohl über die Autobahn als auch mit öffentlichen Verkehrsmitteln. Dies macht Wallau besonders interessant für Pendler. Die Nachbarschaft ist geprägt von einer ruhigen, familiären Atmosphäre. In der Umgebung finden sich zahlreiche Freizeitmöglichkeiten, darunter Parks, Sporteinrichtungen und Wanderwege, die zur Erholung einladen. Die lokale Infrastruktur ist gut ausgebaut, mit Einkaufsmöglichkeiten, Schulen und Kindergärten in unmittelbarer Nähe. Die Kombination aus Natur, guter Erreichbarkeit und einem breiten Angebot an Dienstleistungen macht Hofheim-Wallau zu einem attraktiven Standort für Immobilienkäufer.
Sonstige Angaben
Bitte kontrollieren Sie nach Versand Ihrer Kontaktanfrage auch Ihren Spamordner! Wir als „Die Immobilienprofis“ kümmern uns seit über 25 Jahren um den reibungslosen Verkauf von Immobilien und bieten Ihnen dabei umfangreiche Serviceleistungen an. Sollten auch Sie sich mit dem Gedanken tragen, Ihre Immobilie zu verkaufen, erstellen wir gerne eine kostenfreie und unverbindliche Marktwertermittlung für Ihre Immobilie. Vereinbaren Sie jederzeit einen Beratungstermin, wir freuen uns darauf, Sie und Ihre Immobilie kennen zu lernen.
Grundriss
Grundriss EG
>

Grundriss OG
>

Adresse
65719 Hofheim am Taunus
Interessante Orte
Preis- und Lageinformationen
Preistrend für Bestandsimmobilien in Hofheim am Taunus