HINWEIS:
Bitte beachten Sie, dass nur schriftliche Anfragen mit vollständigen Kontaktdaten bearbeitet und Besichtigungstermine nach chronologischer Reihenfolge vergeben werden.
Wir bitten um Verständnis dafür, dass es Rückmeldungen aufgrund der Vielzahl von Anfragen nur gibt, wenn freie Besichtigungstermine zu vergeben sind. Telefonische Anfragen können nicht bearbeitet werden.
____________________________________
Dieses gepflegte Einfamilienhaus in ruhiger Wohnlage von Edewecht-Jeddeloh I bietet mit einer Wohnfläche von ca. 110,82 m² und zusätzlicher Nutzfläche ein komfortables Zuhause für die ganze Familie.
Das Erdgeschoss umfasst einen großzügigen Wohn- und Essbereich mit direktem Zugang zur Küche, ein Schlafzimmer, ein modernes Bad sowie praktische Nebenräume wie Hauswirtschaftsraum, Heizungsraum und Diele.
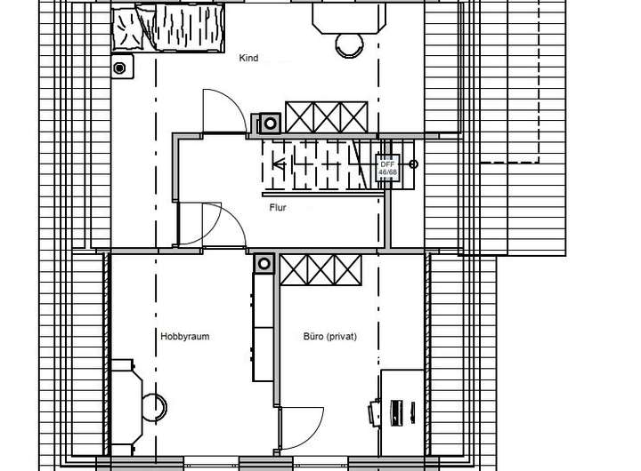
Im Dachgeschoss stehen ein Kinderzimmer sowie ein weiteres Schlafzimmer mit Ankleide und ein Flur zur Verfügung – ideal für Familie, Homeoffice und Freizeitgestaltung. Die Raumaufteilung ist durchdacht und bietet vielfältige Nutzungsmöglichkeiten.
Zum Haus gehören zudem eine Garage, ein Carport und ein Geräteschuppen, die ausreichend Platz für Fahrzeuge, Fahrräder und Gartengeräte bieten. Der Kellerbereich verfügt über einen kleinen Abstellraum.
Das Grundstück überzeugt mit einem pflegeleichten Außenbereich und bietet Raum für individuelle Gartengestaltung. Dank der ruhigen Lage in einer gewachsenen Wohnsiedlung genießen Sie hier Privatsphäre und zugleich eine gute Anbindung an Einkaufsmöglichkeiten, Schulen und öffentliche Verkehrsmittel.
Ob als Familienheim oder als Kombination aus Wohnen und Arbeiten – diese Immobilie vereint Funktionalität, Komfort und eine attraktive Lage in idealer Weise.
WICHTIGER HINWEIS:
Der angegebene Betrag für die Nebenkostenvorauszahlung versteht sich zzgl. Kosten für den Strom- und Gasverbrauch.
6622 - Ihr neues Zuhause: Gemütlichkeit trifft Natur - Einfamilienhaus in ruhiger Lage von Jeddeloh
Sandberg 15a,
26188 Edewecht
Auf Karte anzeigen
Infos
| Haustyp | Einfamilienhaus |
|---|---|
| Wohnfläche ca. | 110 m2 |
| Nutzfläche | 62,33 m2 |
| Grundstücksfläche | 1.241 m2 |
| Bezugsfrei ab | 01.02.2026 |
| Zimmer | 4,5 |
| Schlafzimmer | 3 |
| Badezimmer | 1 |
| Haustiere | Nach Vereinbarung |
| Garage/Stellplatz | Carport |
| Anzahl Garage/Stellplatz | 2 |
Kosten
| Kaltmiete |
1.200 € |
|---|---|
| Nebenkosten | + 200 € |
| Heizkosten | keine Angabe |
| Gesamtmiete | 1.400 € (zzgl. Heizkosten) |
| Miete für Garage/Stellplatz | 0 € |
| Kaution o. Genossenschaftsanteile | 2.400,00 € |
Weiter mieten oder doch kaufen?
Wer in Miete wohnt, überweist dem Vermieter im Laufe der Jahre hohe Summen, die sich
auch in die eigenen vier Wände investieren lassen könnten.
Bausubstanz & Energieausweis
| Baujahr | 1960 |
|---|---|
| Objektzustand | Gepflegt |
| Qualität der Austattung | Normal |
| Heizungsart | Gas-Heizung |
| Wesentliche Energieträger | Gas |
| Energieausweis | liegt vor |
| Energieausweistyp | Bedarfsausweis |
| Energieverbrauchskennwert | 332,0 kWh/(m²*a) |
| Energieeffizienzklasse | H |
332,0
kWh/(m²*a)
Energieeffizienzklasse H
- A+
- A
- B
- C
- D
- E
- F
- G
- H
- 0
- 25
- 50
- 75
- 100
- 125
- 150
- 175
- 200
- 225
- >250
Beschreibung des Objekts
Ausstattung
Ausstattungsmerkmale dieses Wohnhauses sind u.a.:
- Großzügiger Wohn- und Essbereich mit viel Tageslicht
- Separate Küche mit direktem Zugang zum Essbereich
- Modern gefliestes Tageslichtbad
- Kunststofffenster mit Isolierverglasung
- Fußböden: Holzdielen und Fliesen
- Keller, Garage, Carport und Geräteschuppen
- Großes, eingewachsenes Grundstück mit altem Baumbestand und Obstbäumen
- Ruhige Lage in gewachsener Wohnsiedlung
- Gute Anbindung an Einkaufsmöglichkeiten, Schulen und öffentliche Verkehrsmittel
- etc.
Eine detaillierte Beschreibung würde den Rahmen sprengen, daher empfehlen wir Ihnen eine Besichtigung, sodass Sie sich selbst ein Bild von der attraktiven Immobilie machen können.
Lage
Das angebotene Wohnhaus befindet sich in der Ortschaft Jeddeloh I, einem Ortsteil der stark aufstrebenden Gemeinde Edewecht, im Landkreis Ammerland (Niedersachsen) gelegen.
Die Gemeinde Edewecht verfügt derzeit über mehr als 23.500 Einwohner.
Alle einschlägigen Einkaufsmöglichkeiten, Ärzte, Apotheken, Banken, Haupt- und Realschule, Freizeit- und Naherholungseinrichtungen, Freibad, Hallenbad usw. sind im etwa 3 km entfernten Nachbarort Edewecht gut erreichbar. Edewecht bietet ebenso ein breites Angebot an verschiedenen Restaurants und Bistros. Auch eine Bushaltestelle der Buslinien, die beispielsweise den Ort Friedrichsfehn, die Universitätsstadt Oldenburg oder den sehr beliebten Kur- und Ferienort Bad Zwischenahn ansteuern, sind in unmittelbarer Nähe vorhanden
Auch die Kleinen werden in Jeddeloh hervorragend betreut, da die Grundschule direkt im Ort vorhanden ist.
Das Freizeitangebot ist beispielsweise durch das Hallen- und Freizeitbad, die Tennisanlage, Sport- und Reitvereine, Kinderspieleparadies, den nahe gelegenen Wildenloh oder das in kürze erreichbare Bad Zwischenahner Meer sehr vielfältig. Bekannt für sein hervorragendes Rad- und Wandernetz lädt das Ammerland außerdem zu Fahrradtouren und ausgiebigen Spaziergängen ein.
In etwa 15 Kilometern Entfernung liegt die Universitätsstadt Oldenburg mit seinen etwa 176.000 Einwohnern. Auch hier wird Ihnen ein vielfältiges Angebot an Freizeit und Kultur geboten, beispielsweise mit dem Staatstheater oder dem OLantis Badeland im Marschwegviertel.
Der nächste Bahnhof befindet sich in Bad Zwischenahn.
Sonstige Angaben
Sonstiges
Wichtige Hinweise:
Alle Angaben zum Objekt beruhen auf den Angaben des Eigentümers. Für die Vollständigkeit und Richtigkeit dieser Daten übernehmen wir daher grundsätzlich keine Gewähr. Irrtümer sowie Zwischenvermietung bleiben vorbehalten.
Wir bitten um Verständnis dafür, dass wir Informationen zu unseren Objekten nur erteilen, wenn Sie bei ihren Anfragen ihre vollständige Postanschrift, E-Mail und Telefonnummer angeben.
Es ist möglich, dass Sie dieses Objekt auch von anderen Maklern aus der Immobilienbörse Weser-Ems angeboten bekommen. In dem Fall wenden Sie sich an den Makler Ihres Vertrauens.
Grundriss
Grundriss OG.jpg
>
>
Grundriss EG.jpg
>
>
Adresse
Sandberg 15a, 26188 Edewecht
Interessante Orte
Preis- und Lageinformationen
Preistrend für Bestandsimmobilien in Edewecht