Auf einem großzügigen Grundstück mit 2.591 m² in zentraler Wohnlage von Rövershagen liegt eine rechtskräftige Baugenehmigung für die Errichtung von drei modernen Mehrfamilienhäusern mit insgesamt 12 Wohneinheiten sowie 12 Carportstellplätzen (+2 Besucherstellplätzen) vor.
Das geplante Bauvorhaben umfasst ca. 1.369 m² Bruttogrundfläche (BGF) bzw. 980,88 m² Nutz- und Wohnfläche (NRF). Pro Baukörper sind zwei Vollgeschosse mit je zwei Wohneinheiten vorgesehen – eine ideale Grundlage für flexible Grundrissgestaltungen und wirtschaftliche Bauausführung.
Geplant sind 3-Zimmerwohnungen mit offener Wohnküche sowie Balkon oder Terrasse, die den Ansprüchen zeitgemäßen Wohnens gerecht werden und sich gleichermaßen für Mieter, Eigennutzer wie für Kapitalanleger eignen.
Projekt-Highlights:
- 12 Wohneinheiten, barrierefrei erschlossen über Aufzug und Rampen
- Balkon oder Terrasse je Einheit für eine hohe Wohnqualität
- 12 Carports, ergänzt um praktische Abstellräume für die Nutzer
- Begrünte Carportdächer und großzügige Außenflächen mit hoher Aufenthaltsqualität
- Moderne Architektur mit Fokus auf Energieeffizienz und zeitgemäßes Wohnen
- Genehmigte Wohnfläche: ca. 981 m²
- Grundrisse frei gestaltbar, innerhalb der genehmigten Kubatur
- Bau sofort realisierbar – rechtskräftige Baugenehmigung liegt vor
- Grundstück geräumt, wird frei von baulichen Anlagen übergeben
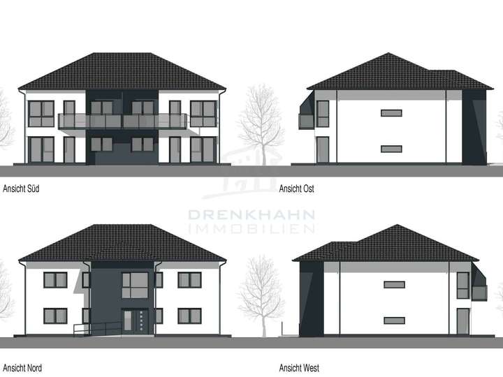
- Kubatur wie auf den nachfolgenden Beispielansichten
- Bauträgerfrei - gern können wir Kooperationspartner empfehlen
Der Erwerb erfolgt ausschließlich im Rahmen eines Asset-Deals. Aufgrund der genehmigten Planung kann der Käufer unmittelbar mit der Bauausführung beginnen. Damit eignet sich dieses Projekt ideal für Bauträger, die auf renditestarke Wohnbauentwicklungen in begehrten Lagen der Region setzen.
Es besteht auch die Möglichkeit, lediglich eines oder zwei der drei bereits real geteilten Grundstücksteile zu erwerben.
Gerne stehen wir für Rückfragen oder eine persönliche Projektbesprechung zur Verfügung.
Baugrundstück mit Baugenehmigung für eine Wohnanlage mit 3 MFH (teilbar) in Rövershagen bei Rostock
18182 Rövershagen
Die vollständige Adresse der Immobilie erhalten Sie vom Anbieter.
Auf Karte anzeigen
Die vollständige Adresse der Immobilie erhalten Sie vom Anbieter.
Finanzierungszertifikat
In nur zwei Minuten zu Ihrem persönlichen Finanzierungszertifkat.
Infos
| Vermarktungsart | Kaufen |
|---|---|
| Grundstücksfläche | 2.591 m2 |
| Erschließung | Erschlossen |
| Empfohlene Nutzung | Mehrfamilienhaus |
| Grundflächenzahl (GRZ) | 0.56 |
| Bebaubar nach | wie Nachbarbebauung |
Kosten
| Miete pro Jahr |
749.000 € |
|---|---|
| Provision |
3,57 % inkl. 19% gesetzl. MwSt. vom Kaufpreis Der Makler-Vertrag mit unserem Unternehmen entsteht durch schriftliche Vereinbarung oder durch die Inanspruchnahme unserer Maklertätigkeit. Die Vertragsbasis bildet das Objekt-Exposé. Die Käuferprovision ist bei notariellem Vertragsabschluss verdient und fällig. Die Drenkhahn Immobilien GmbH erhält einen unmittelbaren Zahlungsanspruch gegenüber dem Käufer. Grunderwerbsteuer, Notar- und Gerichtskosten trägt der Käufer. |
Finanzierungsrechner:
Kaufpreis:
600.000 €
Eigenkapital:
600.000 €
Monatliche Rate
0 €
Effektiver Jahreszins
0 %
Sollzinsbindung
10 Jahre
Beschreibung des Objekts
Lage
Die Gemeinde Rövershagen liegt im Landkreis Rostock, rund 15 Kilometer östlich der Hansestadt Rostock. Die Innenstadt ist in ca. 15 Autominuten erreichbar, die Ostseeküste in nur etwa 8 Minuten – eine ideale Kombination aus Nähe zur Stadt und naturnahem Wohnen.
Rövershagen befindet sich am Südrand der Rostocker Heide, einem der größten zusammenhängenden Küstenwälder Deutschlands. Diese Lage bietet nicht nur einen hohen Erholungswert, sondern auch ein attraktives Wohnumfeld mit unmittelbarem Zugang zur Natur.
Die Gemeinde ist hervorragend an den öffentlichen Nahverkehr angebunden. Neben mehreren Buslinien bietet der Bahnhof Rövershagen direkten Anschluss an die Bahnlinien RB12 und RE9. Zusätzlich wurde ein neuer Haltepunkt direkt am Karls Erlebnis-Dorf eröffnet – ein Pluspunkt sowohl für Einheimische als auch für Besucher. Eine geplante Ortsumgehung zwischen Mönchhagen und Rövershagen soll künftig den Durchgangsverkehr entlasten und die Wohnqualität weiter steigern.
In Rövershagen finden Familien eine ausgezeichnete schulische Infrastruktur:
Die Grundschule „De Likedeeler“ liegt zentral im Ort.
Die Europaschule Rövershagen, eine kooperative Gesamtschule mit Regionalschul- und Gymnasialzweig, bietet ein modernes Bildungsangebot mit internationaler Ausrichtung.
Ergänzt wird das Angebot durch eine Kindertagesstätte mit Krippe, Kindergarten und Hort.
Die Nahversorgung ist umfassend und deckt alle alltäglichen Bedürfnisse ab:
Zwei Supermärkte, Bäckereien, Café, Apotheke, Ärzte, Physiotherapie, Friseure
Postannahmestelle, Sparkassen-Zweigstelle, Bibliothek, Bauhof, Tierarzt
Einrichtungen für Senioren, betreutes Wohnen, Feuerwehr, Kirche mit Friedhof und Feierhalle
Rövershagen bietet ein vielfältiges Freizeit- und Kulturangebot:
Karls Erlebnis-Dorf als überregionales Ausflugsziel
Zahlreiche Sport- und Erholungsmöglichkeiten in und um die Rostocker Heide
Rövershagen ist umgeben von den Nachbargemeinden Rostock, Gelbensande, Blankenhagen, Poppendorf, Bentwisch und Mönchhagen – ein gewachsenes Netzwerk aus Infrastruktur, Natur und Wohnqualität.
Sonstige Angaben
Hinweise: Sollten Sie keine E-Mail von uns sichtbar erhalten, bitten wir Sie, im Spam- bzw. Junk-Mail Ordner Ihres E-Mail-Anbieters nachzusehen!
DSGVO:
Wir verweisen hiermit auf die Speicherung Ihrer Daten, sobald Sie uns eine Kontakt-Anfrage senden. Die Gegebenheiten des Datenschutzes können Sie unter folgendem Link nachlesen.
https://www.drenkhahn-immobilien.de/datenschutz/
Wir bitten um Verständnis, dass wir nur vollständige, schriftliche Anfragen (E-Mail, Fax, Brief) mit Namen, Anschrift und Telefonnummer beantworten können. Gerne stehen wir Ihnen auch zu einer persönlichen Beratung zur Verfügung.
Alle Angaben sind ohne Gewähr und beruhen ausschließlich auf Informationen des Auftraggebers bzw. Eigentümers. Wir übernehmen keine Gewähr für deren Vollständigkeit, Richtigkeit und Aktualität. Insbesondere wurde die Baugenehmigung nicht eingesehen und eine Kontrolle zur Angabe der Wohnfläche hat nicht stattgefunden. Zahlenangaben sind, auch wenn nicht ausdrücklich vermerkt, als Circa- Angaben zu verstehen.
Wenn Sie sich für den Kauf einer Immobilie interessieren, sind wir als Immobilienmakler gesetzlich verpflichtet, Ihre Identität festzustellen – so schreibt es das Geldwäschegesetz (GWG) vor. Das bedeutet: Bei Kaufabsicht benötigen wir eine Kopie Ihres Personalausweises. Wenn Sie für eine Firma handeln, brauchen wir zusätzlich einen Handelsregisterauszug, aus dem der wirtschaftlich Berechtigte hervorgeht. Diese Unterlagen müssen wir sicher aufbewahren – und zwar für fünf Jahre. Vielen Dank für Ihr Verständnis!
Grundriss
Hausansichten
>
>
Schnitte
>
>
Grundriss Erdgeschoss
>
>
Grundriss Obergeschoss
>
>