***ANLAGESTRATEGIE MIT WEITBLICK***
Zum Verkauf steht ein attraktives Wohnensemble in bevorzugter Hanglage, bestehend aus einem gepflegten Dreifamilienhaus und einem im Jahr 2006 angebauten Einfamilienhaus.
Alles in einem Grundbuch.
Diese Kombination eignet sich hervorragend für Mehrgenerationenwohnen, Eigennutzung mit zusätzlicher Mieteinnahme oder als reines Anlageobjekt.
Die Übergänge zwischen Einfamilienhaus und Mehrfamilienhaus sind fließend, alle Wohneinheiten sind eigenständig konzipiert und verfügen über einen separaten Eingang.
Dieses Immobilienensemble besticht durch seine solide Bausubstanz, die großzügigen Grundrisse sowie die ruhige und zugleich zentrale Lage in Weil im Schönbuch.
Sichern Sie sich und Ihrer Familie bereits jetzt die Zukunft ab.
DREIFAMILIENHAUS - Wohnfläche 256 m²:
- Baujahr 1953
- solide Massivbauweise
- 3 abgeschlossene Wohneinheiten
- 5 1/2-Zimmer-Wohnung und 2x 2,5-Zimmer-Wohnung
- Balkone, Terrassen mit traumhaften Fernsichten
EINFAMILIENHAUS - Wohnfläche 172 m²:
- Baujahr 2006
- eigenständiger Eingang
- ideal für Eigennutzung, Büro oder Vermietung
- helle und großzügige Räume
- große Garten- und Dachterrassen
- traumhafte Fernsicht ins Schaichtal
Weil im Schönbuch ist eine charmante Gemeinde am Rande des Schönbuchs im Landkreis Böblingen und besteht aus drei Ortsteilen, Breitenstein, Neuweiler und Weil im Schönbuch. Umgeben von Wäldern, Wander- und Radwegen genießen Sie hier Ruhe und Erholung.
HERVORRAGENDE INFRASTRUKTUR:
- Beste Verkehranbindungen zu den Autobahnen A 8 und A 81
- die Schönbuchbahn verkehrt im 15 Minuten-Takt zu den S-Bahnen nach Stuttgart
- Anschluss an den VVS Stuttgart mit Bus- und S-Bahn-Verbindungen nach Böblingen, Tübingen und Stuttgart
- Einkaufsmöglichkeiten, Ärzte, Kindergärten und Schule sind fußläufig erreichbar
GRUNDSTÜCKSGRÖßE: 3.167 m² (davon privates Wiesengrundstück 2.200 m²)
EINFAMILIENHAUS
***IHR TRAUM VOM PERFEKTEN EIGENHEIM***
Auf 3 Etagen entfalten sich großzügige Wohnmöglichkeiten, die viel Platz für Ihre individuellen Wünsche lassen.
Das Herzstück des Hauses ist der beeindruckende, große Wohn-/Essbereich mit ca. 48 m², dessen über Eck verlaufender Erker dem Raum eine besondere architektonische Raffinesse verleiht.
Von hier aus eröffnet sich Ihnen ein traumhafter Blick über die sanften Hügel der Umgebung weit über die Täler des Schönbuchs hinaus.
Das nach Südwesten ausgerichtete Gartengrundstück gefällt auf Anhieb, Hecken und Bäume lockern die Strukturen im Garten auf und sorgen für Natürlichkeit.
Lauschig - der herrliche Gartengrillplatz lädt zu gemütlichen Grillabenden mit der Familie und Gästen ein.
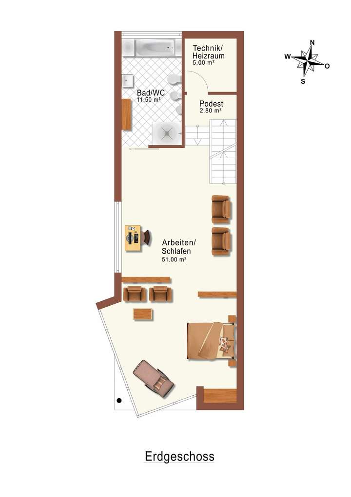
EINTEILUNG:
Erdgeschoss
Technik: 5,00 m²
Bad: 11,50 m²
Podest: 2,80 m²
Arbeiten: 51,00 m²
Wohnfläche: ca. 70,30 m²
Obergeschoss
WC: 2,20 m²
Windfang: 5,50 m²
Küche: 11,50 m²
Essen/Wohnen: 48,40 m²
Abstellraum: 9,90 m²
Wohnfläche: ca. 77,50 m²
Dachgeschoss
Dachraum/Hobby: 14,80 m²
Wohnfläche: ca. 162,60 m²
./. 3 % Putz: - 4,88 m²
Wohnfläche: ca. 157,72 m²
+ Dachterrasse Nord Neu (11/2): 5,50 m²
+ Dachterrasse Süd Neu (18/2): 9,00 m²
Dachterrassenflächen: ca. 14,50 m²
Gesamtwohnfläche: ca. 172,22 m²
Nutzfläche: ca. 37,40 m²
Baujahr: 2006
Freiwerden: Das vom Eigentümer bewohnte Einfamilienhaus ist kurzfristig beziehbar.
***WOHNEN & INVESTIEREN AM NATURPARK SCHÖNBUCH-3-FAMILIENHAUS MIT ANBAU 1-FAMILIENHAUS***
71093 Weil im Schönbuch
Die vollständige Adresse der Immobilie erhalten Sie vom Anbieter.
Auf Karte anzeigen
Die vollständige Adresse der Immobilie erhalten Sie vom Anbieter.
Finanzierungszertifikat
In nur zwei Minuten zu Ihrem persönlichen Finanzierungszertifkat.
Infos
| Haustyp | Mehrfamilienhaus |
|---|---|
| Etagenzahl | 4 |
| Wohnfläche ca. | 428 m2 |
| Nutzfläche | 252,8 m2 |
| Grundstücksfläche | 3.167 m2 |
| Zimmer | 13 |
| Garage/Stellplatz | Garage |
| Anzahl Garage/Stellplatz | 5 |
Kosten
| Kaufpreis |
1.550.000 € |
|---|---|
| Provision |
4,76 % Die Käuferprovision beträgt 4,76 % aus dem Kaufpreis inklusive der gesetzlichen Mehrwertsteuer. Wir haben mit dem Verkäufer ebenso einen provisionspflichtigen Maklervertrag abgeschlossen. |
Finanzierungsrechner:
Kaufpreis:
600.000 €
Eigenkapital:
600.000 €
Monatliche Rate
0 €
Effektiver Jahreszins
0 %
Sollzinsbindung
10 Jahre
Bausubstanz & Energieausweis
| Baujahr | 2006 |
|---|---|
| Letzte Sanierung | 2006 |
| Objektzustand | Gepflegt |
| Qualität der Austattung | Gehoben |
| Heizungsart | Wärmepumpe |
| Wesentliche Energieträger | Strom |
| Energieausweis | liegt vor |
| Energieausweistyp | Bedarfsausweis |
| Energieverbrauchskennwert | 30,0 kWh/(m²*a) |
| Energieeffizienzklasse | A |
30,0
kWh/(m²*a)
Energieeffizienzklasse A
- A+
- A
- B
- C
- D
- E
- F
- G
- H
- 0
- 25
- 50
- 75
- 100
- 125
- 150
- 175
- 200
- 225
- >250
Beschreibung des Objekts
Ausstattung
DREIFAMILIENHAUS
***EINE INVESTITION DER BESONDEREN ART***
Eine echte Gelegenheit für Kapitalanleger und Eigennutzer ist dieses attraktive Mehrfamilienhaus in Verbindung mit dem 2006 angebauten Einfamilienhaus.
Auf 2 Vollgeschossen plus Dachgeschoss bietet dieses Haus 3 Wohneinheiten mit insgesamt 256 m² Wohnfläche, eine 5 ½-Zimmerwohnung im Obergeschoss, eine 2,5-Zimmerwohnung im Erdgeschoss und eine 2,5-Zimmerwohnung im Dachgeschoss.
Die 5 ½-Zimmerwohnung im Obergeschoss ist vermietet, die beiden 2,5-Zimmer-Wohnungen sind frei und können sofort bezogen werden.
Das gesamte Anwesen befindet sich in einem guten und gepflegten Unterhaltungszustand.
EINTEILUNG:
Untergeschoss:
Diverse Neben- und Abstellräume, Wasch- und Trockenraum, Tankraum, Heizraum, 3 Kellerräume, Flur.
Nutzfläche ca. 215,40 m²
Erdgeschoss:
2,5-Zimmer-Wohnung mit Balkon, Küche, Bad/WC, Flur, Abstellraum.
Wohnfläche ca. 73,75 m²
Obergeschoss:
5 1/2- Zimmer-Wohnung mit Dachbalkon, Küche, Bad, WC, Flur, Abstellraum.
Wohnfläche ca. 127,54 m²
Dachgeschoss:
2,5-Zimmer-Wohnung, Küche, Bad/ WC, Flur, Abstellraum, Dachterrasse.
Wohnfläche ca. 54,85 m²
Gesamtwohnfläche: ca. 256,14 m²
Nutzfläche: ca. 215,40 m²
Baujahr: 1953
AUSSTATTUNG
Das Einfamilienhaus befindet sich in einem neuwertigen Unterhaltungszustand, mit überdurchschnittlich hochwertigen Ausstattungsdetails und wertvollen Elementen.
Die Beheizung erfolgt über ein umweltfreundliches, umweltschonendes Energiesystem.
Durch einen effizienten Mix aus Geothermie und Photovoltaik in Verbindung mit einer Wärmepumpe wurde 2023 klimaneutrales Heizen realisiert.
Energiebedarfskennwert: B 30,03 kWh/(m²*a), A.
Saubere und energiesparende Fußbodenheizung.
Ganz in weiß gehaltene Hausfrauen-Traumküche - eine Küche, die so bezaubernd ist, dass selbst Männer das Kochen anfangen.
Das Bad - ein Klassiker des guten Geschmacks in Weiß, edel in der Kombination mit Wannenbad und Duschkabine, WC, Bidet und Pissoir.
Raumhohe Fensterelemente mit großen Schiebetür-Elementen.
Unbegrenzte Leistungsfähigkeit durch den Anschluss an das Glasfasernetz.
Das Dreifamilienhaus entspricht einem mittleren bis gehobenen Standard, der bauliche Zustand ist insgesamt sehr gut.
Die Beheizung erfolgt über eine Öl-Zentralheizung (Baujahr 1997), das Warmwasser über eine effiziente und umweltfreundliche Photovoltaik-Anlage mit moderner Speichertechnik (neu 2023).
Energiebedarfskennwert: B 237,71 kWh/(m²*a), G.
Die Fenster (neu 2005) sind isolierverglast und mit Rollläden versehen.
Parkett, Granitfliesen, Einbauküche, große Keller mit Ausbaupotential, Gewölbekeller, Wasch- und Trockenraum, Werkstatt, 2 Garagen und 3 Kfz-Stellplätze.
Lage
Weil im Schönbuch mit seinen drei Ortsteilen Breitenstein, Neuweiler und Weil im Schönbuch liegt idyllisch im Naturpark Schönbuch.
Unser heutiges Angebot befindet sich unmittelbar am landschaftlich reizvollen Schaichtal, einer Lage, die Ruhe, Naturverbundenheit und hohen Wohnwert vereint.
Ein Ort zum Wohlfühlen.
Weil im Schönbuch - eine attraktive Gemeinde im Landkreis Böblingen - liegt malerisch am Nordrand des Naturparks Schönbuch, rund 30 km südwestlich von Stuttgart und 12 km von Böblingen entfernt.
Dank ihrer günstigen Lage zwischen Böblingen, Tübingen und Stuttgart ist die Region mit ihrer gut ausgebauten Infrastruktur und zahlreichen Freizeitmöglichkeiten sowie ihrer familienfreundlichen Atmosphäre ein beliebte Wohnadresse.
Das große Freizeitangebot des Naturparks Schönbuch beginnt an der Haustüre und lädt zum Spaziergang, Laufen oder Radfahren ein.
Das familiäre Hallenbad und die Sporthallen, Sportanlagen, Tennisplätze und Golfplatz runden die Freizeitangebote ab.
Weil im Schönbuch bietet seinen Bürgern eine sehr gute Infrastruktur mit einem guten Angebot für die Nahversorgung.
Modern. Naturnah. Sympathisch.
Schnelle Verkehrsanbindungen zu den Autobahnen A8 und A81. Der Flughafen Stuttgart sowie die Städte Böblingen, Sindelfingen, Tübingen, Stuttgart sind gut erreichbar.
Die Anbindung an den öffentlichen Nahverkehr ist sehr gut - Bus- und S-Bahn-Verbindungen sorgen für eine bequeme Verbindung in Richtung Böblingen, Tübingen sowie in die Landeshauptstadt Stuttgart.
Das öffentliche Verkehrsnetz ist bestens an den VVS Stuttgart angebunden. Die Schönbuchbahn fährt im 15 Minutentakt nach Böblingen zu den S-Bahnen nach Stuttgart.
Auch die Nähe zu wichtigen Verkehrsachsen macht den Standort attraktiv für Pendler.
Grundriss
Grundriss UG-techn. bearbeitet
>
>
Grundriss EG-techn. bearbeitet
>
>
Grundriss OG-techn. bearbeitet
>
>
Grundriss DG-techn. bearbeitet
>
>
Grundriss UG-techn. bearbeitet
>
>
Grundriss EG-techn. bearbeitet
>
>
Grundriss OG-techn. bearbeitet
>
>
Grundriss DG-techn. bearbeitet
>
>
Adresse
71093 Weil im Schönbuch
Interessante Orte
Preis- und Lageinformationen
Preistrend für Bestandsimmobilien in Weil im Schönbuch