Zum Verkauf steht ein außergewöhnliches 3.325 m² großes Baugrundstück in Bergen, das durch seine idyllische und ruhige Lage am Berger Bach sowie eine unverbaubare Aussicht besticht. Trotz der naturnahen Umgebung befindet sich das Grundstück in zentraler, stadtnaher Lage und vereint damit auf einzigartige Weise Ruhe und gute Erreichbarkeit.
Das Grundstück ist voll erschlossen und bietet eine Vielzahl an Bebauungsmöglichkeiten. So kann es mit einem oder zwei Einfamilienhäusern bebaut werden, ebenso ist die Errichtung eines Mehrfamilienhauses denkbar. Auch eine Aufteilung in zwei separate Grundstücke ist möglich und eröffnet zusätzliche Optionen.
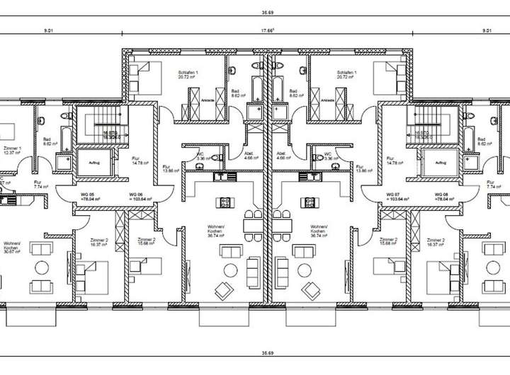
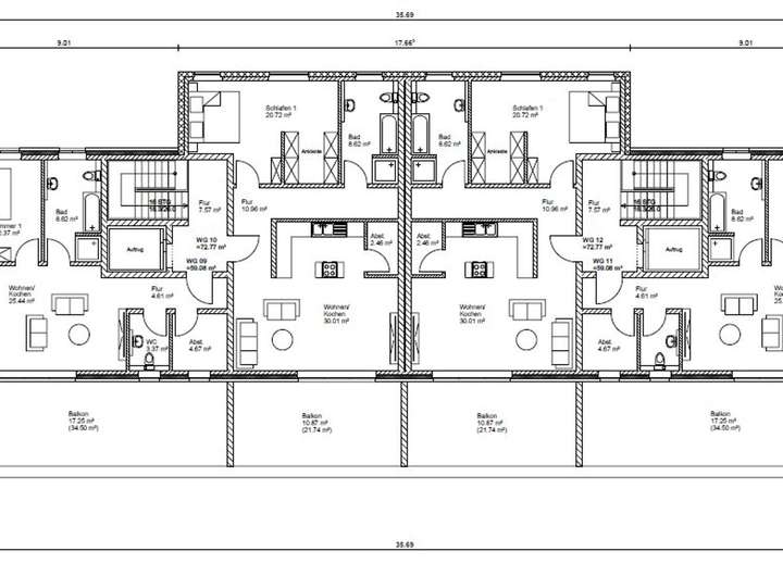
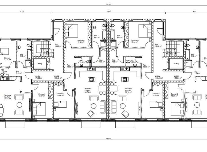
Besonders hervorzuheben ist, dass für dieses Grundstück bereits Ansichten und Grundrisse eines Mehrfamilienhauses mit zwölf Wohneinheiten vorliegen, die von einem Architekten speziell für diese Fläche entworfen wurden. Darüber hinaus wären auch mehr Wohneinheiten und die Realisierung eines größeren Projektes möglich, was dieses Grundstück besonders interessant für Investoren macht.
Attraktiv wird das Projekt zudem durch die aktuellen Fördermöglichkeiten im Rahmen der neuen KfW-Gesetzgebung. Bauherren profitieren hierbei von lukrativen Konditionen wie zinsgünstigen Krediten, Tilgungszuschüssen sowie weiteren Anreizen für energieeffizientes und nachhaltiges Bauen. Diese Förderprogramme erhöhen nicht nur die Rentabilität eines Projekts, sondern unterstützen auch eine zukunftsorientierte und umweltbewusste Bauweise.
Vier bestehende Garagen befinden sich bereits auf dem Grundstück. Zudem besteht in Bergen keine Baumschutzsatzung, was bedeutet, dass große Bäume ersatzlos entfernt werden dürfen.
Damit eröffnet sich hier ein außergewöhnliches Grundstück, das Gestaltungsfreiheit, eine idyllische und ruhige Wohnlage sowie eine zentrale Anbindung miteinander verbindet – eine seltene Gelegenheit für Bauherren, Familien und Investoren.
3.325 m² großes Traumgrundstück in Bergen – Idylle trifft zentrale Lage
Mühlendamm 18,
29303 Bergen
Auf Karte anzeigen
Finanzierungszertifikat
In nur zwei Minuten zu Ihrem persönlichen Finanzierungszertifkat.
Infos
| Vermarktungsart | Kaufen |
|---|---|
| Grundstücksfläche | 3.325 m2 |
| Erschließung | Erschlossen |
| Verfügbar ab | sofort |
Kosten
| Miete pro Jahr |
599.000 € |
|---|---|
| Provision |
3,57 % inkl. MwSt. |
Finanzierungsrechner:
Kaufpreis:
600.000 €
Eigenkapital:
600.000 €
Monatliche Rate
0 €
Effektiver Jahreszins
0 %
Sollzinsbindung
10 Jahre
Beschreibung des Objekts
Lage
Die Stadt Bergen liegt im Landkreis Celle in Niedersachsen und gehört zur Metropolregion Hannover-Braunschweig-Göttingen-Wolfsburg. Sie befindet sich im nördlichen Teil der Lüneburger Heide und besticht durch ihre naturnahe Lage sowie durch eine gute Verkehrsanbindung. Bergen ist eine lebenswerte Kleinstadt mit rund 13.000 Einwohnern und einem hohen Freizeitwert.
Geografisch befindet sich Bergen etwa 20 Kilometer nördlich der Kreisstadt Celle und etwa 60 Kilometer südlich von Hamburg. Hannover ist rund 70 Kilometer entfernt. Durch die direkte Lage an der Bundesstraße B3 ist Bergen gut in das überregionale Straßennetz eingebunden. Die Autobahn A7 (Anschlussstellen Soltau oder Schwarmstedt) ist in etwa 25 bis 30 Autominuten erreichbar. So sind größere Städte wie Hannover, Hamburg oder Bremen schnell zu erreichen, was Bergen auch für Berufspendler interessant macht. Der öffentliche Nahverkehr wird durch verschiedene Buslinien gewährleistet, die eine Anbindung an die umliegenden Städte und Gemeinden sicherstellen.
Die Stadt wird geprägt von einer abwechslungsreichen Landschaft aus Wäldern, Wiesen, Heideflächen und landwirtschaftlich genutzten Gebieten. Der hohe Freizeit- und Erholungswert zeigt sich in den zahlreichen Wander- und Radwegen sowie in der Nähe zu Natur- und Landschaftsschutzgebieten. Kulturell hat Bergen ebenfalls einiges zu bieten: Museen, historische Bauwerke und das rege Vereinsleben prägen das Stadtbild.
Das Stadtgebiet umfasst neben der Kernstadt auch zahlreiche Ortsteile und Ortschaften, darunter Eversen, Sülze, Offen, Hassel und Belsen. In Bergen finden sich sämtliche Einrichtungen des täglichen Bedarfs: Einkaufsmöglichkeiten, Ärzte, Apotheken, Kindergärten und alle Schulformen sind vor Ort vorhanden. Auch Gastronomie und Freizeitangebote sind vielfältig vertreten.
Sonstige Angaben
GELDWÄSCHE:
Als Immobilienmaklerunternehmen ist die Firma "Die Heide Immobilien" nach § 2 Abs. 1 Nr. 14 und § 10 Abs. 3 Geldwäschegesetz (GwG) dazu verpflichtet, beim Eingehen einer Geschäftsbeziehung, die Identität des Vertragspartners festzustellen und zu überprüfen.
Dafür ist es nötig, dass wir nach § 11 GwG die relevanten Daten Ihres Personalausweises z.B. mittels einer Kopie festhalten, wenn Sie als natürliche Person handeln. Bei einer juristischen Person ist eine Kopie des Handelsregisterauszugs, aus welchem der wirtschaftlich Berechtigte hervorgeht, nötig. Das Geldwäschegesetz sieht vor, dass der Makler die Kopien bzw. Unterlagen fünf Jahre aufbewahren muss.
HAFTUNG:
Wir weisen darauf hin, dass sämtliche Daten in dieser Offerte auf Angaben unserer Auftraggeber basieren. Trotz sorgfältiger Prüfung können wir keine Gewähr für die Richtigkeit der Daten übernehmen. Ebenso wird keine Haftung für Vollständigkeit, Richtigkeit und Aktualität des Verkaufsobjektes übernommen. Alle Immobilienangebote sind freibleibend und vorbehaltlich Irrtümer, Zwischenverkauf und Vermietung oder sonstiger Zwischenverwertung.
URHEBERRECHT:
Sämtliche Bilder und grafische Darstellungen sind Eigentum von "Die Heide Immobilien" und dürfen nicht durch Dritte verwendet oder weitergegeben werden.
WEITERE KOSTEN:
Die weiteren Kosten, die im Zusammenhang mit dem Erwerb dieser Immobilien entstehen:
5,0 % Grunderwerbsteuer
1,5 % Notar und Gerichtskosten
3,57 % Maklerprovision