Exklusives Wohnambiente in Meerbusch-Osterath:
Diese 2021 erbaute Architekten-Doppelhaushälfte besticht durch eine klare Linienführung, hochwertige Ausstattung und lichtdurchflutete Räume. Auf einer großzügigen Wohnfläche von 205 m² verschmelzen zeitloses Design und modernster Wohnkomfort zu einem einzigartigen Wohnerlebnis.
Bereits beim Betreten des Hauses empfängt Sie ein gehobenes Ambiente:
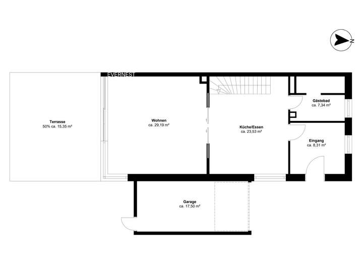
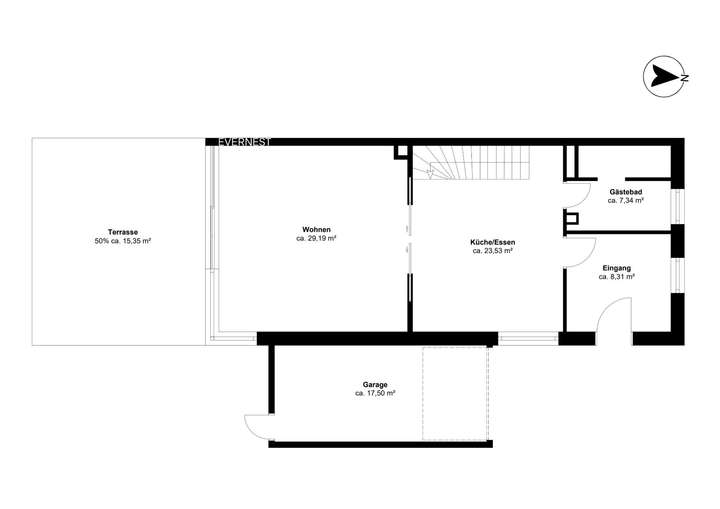
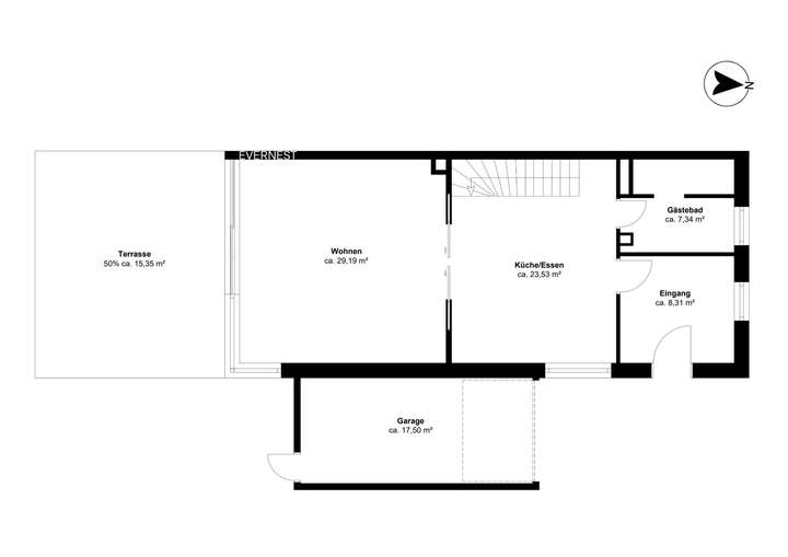
Schon der großzügige Eingangsbereich mit reichlich Platz für eine Garderobe heißt Sie willkommen. Von hier aus gelangen Sie in den offenen, lichtdurchfluteten Wohn- und Essbereich. Anstelle eines Gäste-WCs wurde ein vollwertiges Duschbad mit Tageslicht geschaffen. Auf der gesamten Etage wurden moderne, großformatige (60x60) Fliesen in hellgrauer Optik verlegt. In der Mitte des Raum finden Sie die offene Küche vor, die sich nahtlos in das Raumgefüge einfügt, in Anthrazit-Tönen gehalten und mit Neff-Geräten sowie Grohe-Armaturen versehen ist.
Eine beeindruckende, 6 Meter breite, bodentiefe Fensterfront mit Schiebetür verbindet den Wohnbereich harmonisch mit der Terrasse und dem Südgarten. Hier genießen Sie entspannte Stunden und pure Privatsphäre. Ein direkter Zugang zur Garage ist ebenfalls vorhanden.
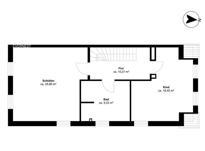
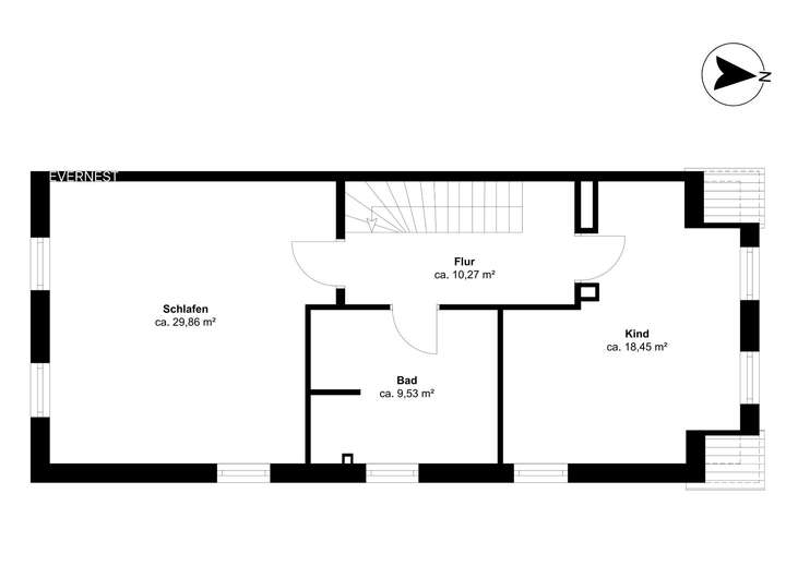
Über eine stilvolle Echtholztreppe gelangen Sie in das Obergeschoss. Hier befinden sich zwei großzügige Schlafzimmer und das zweite, ebenfalls tagesbelichtete Badezimmer. Das große Vollbad besticht durch gehobene Unterputzarbeiten, zwei Waschtische, eine Walk-in-Dusche und eine Badewanne. Der warme, geölte Eichen-Parkettfußboden zieht sich als harmonisches Element durch das ganze Haus, von den Treppen bis zu den Waschtischen im Bad.
Im Dachgeschoss erwartet Sie ein Studio, das sich flexibel als drittes Schlafzimmer, Home-Office oder Hobbyraum eignet.
Im Untergeschoss finden Sie den Technik- und Hausanschlussraum sowie einen Lager-/Kellerraum. Ein weiteres Schlafzimmer, das zur Wohnfläche zählt, schafft zusätzlichen Wohnraum. Dank einer Ausschachtung sorgen zwei großzügige Fenster für ausreichend Tageslicht.
Die gesamte Immobilie ist mit modernster Technik ausgestattet, die Komfort und Sicherheit erhöht. Ein KNX/EIB Bussystem ermöglicht es, alle Funktionen wie Licht, Heizung und Rollläden zentral über Schalter zu steuern und individuell zu programmieren. Eine zusätzliche Steuerung per Smartphone oder Tablet ist ebenfalls möglich. Das System bietet praktische Features wie Anwesenheitssimulation und Alarmfunktionen. Bewegungsmelder und Sensoren für Licht, Temperatur und Luftfeuchtigkeit sind in allen Räumen vorhanden.
Die herausragende Energieeffizienz des Hauses (Klasse A+, 13,31 kWh/m²a) wird durch eine moderne Luft-Wärmepumpe und eine 3-fach Wärmedämmverglasung erreicht. Das Haus ist zukunftsfähig konzipiert: Die Vorbereitungen für Photovoltaik und Solarthermie sind bereits getroffen und ermöglichen eine problemlose Nachrüstung.
Für zusätzlichen Komfort sorgen ein Wäscheabwurf, Netzwerkleitungen in jedem Raum und ein Kaminzug zur Aufstellung eines Kamins oder Ofens. Der Sicherheitsaspekt wurde ebenfalls berücksichtigt: Die Aluminium-Fensteranlagen verfügen über einen erhöhten Einbruchschutz mit Panzersperre, Bügel mit Hochschiebesicherung und abschließbare Griffen.
Das Haus bietet zudem eine Garage mit elektrischem Garagetor und einen zusätzlichen Stellplatz davor.
Dieses Haus ist der perfekte Ort, um anzukommen und sich in einem durchdachten, modernen Ambiente rundum wohlzufühlen.
Ich freue mich auf Ihre Anfrage!
Wohntraum in Meerbusch-Osterath: Design, Technik und Komfort!
40670 Meerbusch
Die vollständige Adresse der Immobilie erhalten Sie vom Anbieter.
Auf Karte anzeigen
Die vollständige Adresse der Immobilie erhalten Sie vom Anbieter.
Finanzierungszertifikat
In nur zwei Minuten zu Ihrem persönlichen Finanzierungszertifkat.
Infos
| Haustyp | Doppelhaushaelfte |
|---|---|
| Etagenzahl | 2 |
| Wohnfläche ca. | 205 m2 |
| Grundstücksfläche | 315 m2 |
| Zimmer | 6 |
| Schlafzimmer | 4 |
| Badezimmer | 2 |
| Garage/Stellplatz | Garage |
| Anzahl Garage/Stellplatz | 2 |
Kosten
| Kaufpreis |
1.150.000 € |
|---|---|
| Provision |
3.57 % inkl. MwSt. Bei Abschluss eines notariellen Kaufvertrages ist eine Käuferprovision vom Käufer in Höhe von 3.57 % inkl. MwSt. aus dem Kaufpreis fällig. |
Finanzierungsrechner:
Kaufpreis:
600.000 €
Eigenkapital:
600.000 €
Monatliche Rate
0 €
Effektiver Jahreszins
0 %
Sollzinsbindung
10 Jahre
Bausubstanz & Energieausweis
| Baujahr | 2021 |
|---|---|
| Objektzustand | Neuwertig |
| Qualität der Austattung | Gehoben |
| Heizungsart | Wärmepumpe |
| Wesentliche Energieträger | Strom |
| Energieausweis | liegt vor |
| Energieausweistyp | Verbrauchsausweis |
| Energieverbrauchskennwert | 13,3 kWh/(m²*a) |
| Energieeffizienzklasse | A+ |
13,3
kWh/(m²*a)
Energieeffizienzklasse A+
- A+
- A
- B
- C
- D
- E
- F
- G
- H
- 0
- 25
- 50
- 75
- 100
- 125
- 150
- 175
- 200
- 225
- >250
Beschreibung des Objekts
Ausstattung
- Doppelhaushälfte, BJ 2021
- 205 m² Wohnfläche, 311 m² Grundstück
- 6 Zimmer, davon 4 Schlafzimmer
Aufteilung:
- EG (Eingangsbereich, Wohn-Essbereich, Duschbadezimmer)
- OG (Zwei Schlafzimmer, Großes Badezimmer mit Badewanne & Dusche)
- Dachstudio
- UG (Schlafzimmer, Lagerraum u. Technikraum)
- Terrasse u. Garten
- Garage u. Außenstellplatz
Highlights:
- Einbauküche (Neff-Geräte u. Grohe-Armaturen)
- Böden (60*60 Fliesen oder geölter Eichenparkett)
- Netzwerkleitungen in jedem Raum
- Wäscheabwurf bis in den Keller
- Kaminzug zur Aufstellung von offenen Kaminen oder Öfen
Bäder:
- Gehobene Unterputzarbeiten
- Grohe Armaturen
- Gefliest
- 2x bodentiefe Duschen, 1 x Eckwanne
Heizung & Energieeffizienz:
- Energieeffizienzklasse A+ (13,31 kWh/m²a)
- Luft-Wärmepumpe (Strom)
- 3-fach Wärmedämmverglasung
- Fußbodenheizung in allen Etagen, pro Raum regulierbar
- Vorbereitung für Photovoltaik o. Solarthermie
Sicherheit:
- Hochwertige Aluminium Fensteranlagen mit erhöhtem Einbruchschutz
- Panzersperre Bügel mit Hochschiebesicherung, Griffe mit Schlüssel
- Alarmierungen u. Anwesenheitssimulation über das KNX-System
KNX/EIB Bussystem:
- Anbieterunabhängig, jederzeit Erweiterbar
- Bewegungsmelder in allen Räumen
- Einstellbare Zeitschaltuhren für Licht, Rollos und Heizung
- Anzeige von Licht, Luftfeuchtigkeit, Temperatur und Anwesenheit in allen Räumen
- KNX Tastsensoren mit Rückmelde-LEDs und Beschriftung für eine komfortable Bedienung.
- Zusätzlich Steuerung von der Heizung, Beleuchtung und Verschattung über PC, Tablet oder Smartphone
Lage
Osterrath ist ein schöner Stadtteil von Meerbusch in einer ruhigen und grünen Umgebung mit einer idealen Anbindung an die umliegenden Städte. Die Infrastruktur in Osterath ist sehr gut ausgebaut. Der gemütliche Stadtkern sowie die Umgebung bieten verschiedene Einkaufsmöglichkeiten, Restaurants, Schulen, Kindergärten, Ärzte und Apotheken. Insgesamt finden Sie eine sehr gute Nahversorgung vor und die allgemeine Lebensqualität in Osterath ist insgesamt hoch.
Die Umgebung besticht durch dessen ruhige Lage und bietet Ihnen dennoch eine perfekte Anbindung an die A57 in Richtung Düsseldorf, Krefeld und Neuss. Die beiden Autobahnen, die A44 und A52, sind ebenfalls unmittelbar zu erreichen und bieten die entsprechenden Anschlüsse zwischen Aachen und Dortmund bzw. Roermond und Essen. Nur wenige Autominuten entfernt liegen die weiteren Ortskerne von Meerbusch wie Strümp, Lank-Latum oder Büderich. Diese sind ebenfalls sehr gut durch den ÖPNV zu erreichen, wobei die nächste Haltestelle nur einen kurzen Fußweg von der Immobilie liegt. Ebenso schnell erreichen Sie die angrenzenden Städte wie zum Beispiel Willich, Kaarst oder Krefeld(Fischeln) und natürlich Düsseldorf.
Einen Anschluss an die U-Bahn erreichen innerhalb weniger Minuten. Die Linien der U70 und U76 bieten einen schnellen und flexiblen Anschluss nach Düsseldorf und Krefeld. Zudem verfügt Osterath noch über einen Bahnhof mit den Linien RE7, RE10 u. RB37, der Ihre Mobilität zwischen Krefeld-(über Neuss-Köln-Solingen-Wuppertal)-Münster bzw. zwischen Kleve (über Weeze) und Düsseldorf abdeckt.
Genießen Sie Ihre Freizeit mit Spielplätzen in der Umgebung sowie den vielfältigen Angeboten des ortsansässigen Sportvereins. Die ländliche Atmosphäre, die ausgezeichnete Anbindung an die Autobahn und die Nähe zu verschiedenen Einkaufsmöglichkeiten und Bildungseinrichtungen machen diese Lage zu einem perfekten Ort für alle, die eine harmonische Verbindung von Ruhe und urbaner Nähe schätzen.
Grundriss
Erdgeschoss
>
>
1.Obergeschoss
>
>
Dachstudio
>
>
Kellergeschoss
>
>
Adresse
40670 Meerbusch
Interessante Orte
Preis- und Lageinformationen
Preistrend für Bestandsimmobilien in Meerbusch