Herzlich Willkommen in unserem neuen Projekt "5 Premiumhäuser Im Stühe". Hier entstehen im schönen Garbsen Ortsteil Horst im Neubaugebiet “Im Stühe” 5 Premiumhäuser mit viel Platz für die ganze Familie, die modernes Design mit höchstem Wohnkomfort verbinden. Inmitten einer charmanten Umgebung bieten diese großzügigen Grundstücke eine erstklassige Lage mit einer herrlichen Süd-Ausrichtung. Die klimafreundlichen Häuser mit der Energieeffizienz AAA+ verfügen über eine exklusive Grundfläche von ca. 189 m² (Wohnfläche ca. 152 m²) bzw. bei den Endhäusern von 219 m² (Wohnfläche ca. 176 m²) mit großzügigen Grundstücksflächen je Haus von ca. 207 bis 377 m² zzgl. Gemeinschaftsflächen von anteilig je 60,4 m². Diese optimale Kombination aus Raum, Innovation und Lage schafft eine einladende Atmosphäre für Familien, die nach einem behaglichen Zuhause suchen. Erleben Sie den perfekten Mix aus modernem Wohnkomfort, Nachhaltigkeit und prämierter Architektur in Garbsen Horst “Im Stühe”.
Neubau-Traum: Großes Reihenendhaus in schöner Lage "Im Stühe"
30826 Garbsen
Die vollständige Adresse der Immobilie erhalten Sie vom Anbieter.
Auf Karte anzeigen
Die vollständige Adresse der Immobilie erhalten Sie vom Anbieter.

Finanzierungszertifikat
In nur zwei Minuten zu Ihrem persönlichen Finanzierungszertifkat.
Infos
Haustyp | Reiheneckhaus |
---|---|
Etagenzahl | 3 |
Wohnfläche ca. | 176 m2 |
Grundstücksfläche | 330 m2 |
Zimmer | 6 |
Schlafzimmer | 3 |
Badezimmer | 2 |
Anzahl Garage/Stellplatz | 2 |
Kosten
Kaufpreis |
599.000 € |
---|---|
Provision | Nein |
Finanzierungsrechner:
Kaufpreis:
600.000 €
Eigenkapital:
600.000 €
Monatliche Rate
0 €
Effektiver Jahreszins
0 %
Sollzinsbindung
10 Jahre
Bausubstanz & Energieausweis
Bauphase | Haus in Planung (projektiert) |
---|---|
Objektzustand | Erstbezug |
Qualität der Austattung | Gehoben |
Heizungsart | Wärmepumpe |
Beschreibung des Objekts
Ausstattung
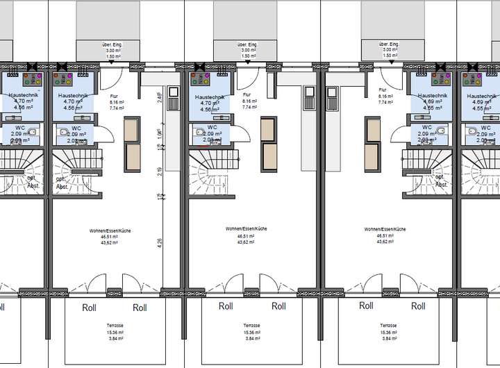
Das Projekt “Premiumhäuser Im Stühe” besteht aus 5 Häusern mit je ca. 152 bzw. 176 m² Wohnfläche und einer jeweiligen Grundstücksfläche von ca. 207 bis 377 m² zzgl. Gemeinschaftsflächen von anteilig je 60,4 m². Die Architektur der Doppelhäuser besticht durch Ihre Moderne und Offenheit und ist durch den Grundriss für die ganze Familie konzipiert. Die wichtigsten Merkmale im Überblick: + Begehrte Lage: Garbsen-Horst zählt zu einer tollen Ortschaft in derRegion Hannover mit einer guten Anbindung in die Stadt Hannover. Insbesondere das Neubaugebiet “Im Stühe” erfreut sich durch dieschöne Umgebung großer Beliebtheit und Nachfrage. + Energieeffizienzhaus 40: Wir bauen unsere Häuser klimafreundlich.Damit erfüllt Ihr neues Zuhause höchste Energieeffizienzstandards und ist nach den KfW-Richtlinien förderfähig. Weitere Informationen zu den Fördermöglichkeiten erhalten Sie von uns. Sprechen Sie uns an. + Großzügiges Grundstück und viel Wohnfläche: Die Premiumhäuser verfügen jeweils über ein Hausgrundstück von ca. 207 bis 377 m² mit einer Wohnfläche von je ca. 152 bis 176 m². Idealfür die ganze Familie. + Stilvolle Klinker-Fassade: Die stilvolle Fassade aus Klinker verleihtden Häusern eine zeitlose sowie moderne Eleganz und passt perfektin die Nachbarschaft. + Elektrische Rollläden: An allen Fenstern im Erd- und Obergeschoss mit der Ausrichtung zum Osten, Süden und Westen (Kennzeichnung “ROLL” in der Planung) werden elektrisch-bedienbare Aluminium-Rollläden verbaut, die Ihnen Komfort und Sicherheit bieten. + Lüftungsanlage inkl. Wärmerückgewinnung und Kühlfunktion: Die Lüftungsanlage sorgt für ein angenehmes Raumklima und Wohlbefinden. Durch die Wärmerückgewinnung wird die Energieeffizienz erheblich gesteigert. Die integrierte Kühlfunktionkann im Sommer die Luft im Haus kühlen. + Große, stilvolle Fenster: Die großzügigen Kunststoff-Aluminium-Fensterelemente sorgen nicht nur für ein helles Ambiente, sondern bieten auch einen herrlichen Blick auf den Garten. + Hochwertige Ausstattung: Fliesen von namhaften Markenherstellern, Sanitärobjekte von Villeroy & Boch, ebenerdiggeflieste Duschbereiche sowie ein umfangreiches Elektroinstallationspaket. + Stellplätze und Garage: Den Premiumhäusern stehen ausreichend Parkplätze auf dem Grundstück zur Verfügung, wobei auf Wunsch eine Garage oder ein Einstellplatz (EP) erworben werden kann. Die Zuwegung auf dem Grundstück sowie die Einstellplätze werden von uns gepflastert. + Bauqualität durch TÜV Nord begleitet: Die baubegleitende Qualitätssicherung durch den TÜV Nord gewährleistet höchste Standards in Planung und Ausführung. + Zusätzliche Absicherung durch Gewährleistungsversicherung: ZuIhrer Sicherheit schließt HANNOVER HAUS eine Gewährleistungsversicherung mit einer Deckungssumme von 200.000 Euro für die Wohnanlage über die gesamte 5-jährige Gewährleistungszeit ab und schützt Sie somit vor finanziellen Schäden während der Gewährleistungszeit.
Lage
Willkommen in Horst, einem schönen, familiengeprägten Ortsteil im ,Westen von Garbsen. Horst, etwa 15 Kilometer nordwestlich von Hannover, bietet eine ruhige und naturnahe Wohnlage, geprägt von, Einfamilienhäusern und landwirtschaftlichen Flächen. Vor Ort befinden sich eine Grundschule sowie Einkaufsmöglichkeiten für den täglichen Bedarf. Weiterführende Schulen und größere Einkaufsmöglichkeiten sind im nahen Garbsen vorhanden. Der Ort besticht durch seine ländliche Umgebung mit Feldern, Wäldern und Radwegen, die viele Erholungsmöglichkeiten bieten. Der Blaue See und andere Naherholungsgebiete wie das Steinhuder Meer sind schnell erreichbar und bieten weitere Freizeitoptionen. Die gute Anbindung über die B6 und die nahegelegene Autobahn A2 ermöglicht schnelle Verbindungen nach Hannover und in die umliegenden Regionen, was besonders für Pendler attraktiv ist. Insgesamt bietet Horst eine harmonische Kombination aus ruhiger, dörflicher Atmosphäre und guter Anbindung an die Stadt, was es besonders für Familien und Naturliebhaber attraktiv macht.
Sonstige Angaben
ÜBER UNS HANNOVER HAUS steht für mehr als 25-jährige Erfahrung im Hausbau und fast 1.000 erfolgreich umgesetzte Bauvorhaben mit zufriedenen Kunden. Nicht umsonst wurde HANNOVER HAUS zu den innovativsten Top 100 Mittelstandsunternehmen gewählt und hat den niedersächsischen Landespreis „das Zukunftshaus“ gewonnen. Vereinbaren Sie einen Termin mit uns und lassen Sie sich von unseren Qualitäten überzeugen. Gerne stehen wir Ihnen für weitere Informationen zum Objekt und Grundstücksbesichtigungen vor Ort zur Verfügung. Unsere eigene Immobilienabteilung „HANNOVER HAUS IMMOBILIEN“ steht Ihnen auch gern beim Verkauf Ihrer Bestandsimmobilie zur Verfügung Sprechen SIe uns einfach an. Wir beraten Sie gerne. SONSTIGES Die dargestellten Visualisierungen zeigen Planungsbeispiele. In den gemeinsamen Gesprächen wird Ihre Hausplanung individuell mit uns festgelegt. Alle Texte, Bilder, Zeichnungen, Grundrisse und grafische Gestaltungen sind von der HANNOVER HAUS GmbH urheberrechtlich geschützt. Abbildungen und Visualisierungen zeigen Ausführungsbeispiele. Änderungen, Abweichungen und Irrtümer vorbehalten.
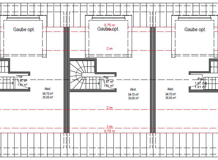
Grundriss
Grundriss EG
>

Grundriss OG
>

Grundriss DG
>

Adresse
30826 Garbsen
Interessante Orte
Preis- und Lageinformationen
Preistrend für Bestandsimmobilien in Garbsen