Die Immobilie verfügt über fünf schöne Zimmer. Die Heizungsart der Immobilie ist eine Wärmepumpe. Für Platz zum Gärtnern, Spielen oder zum Barbecue mit Freunden: Auf den 145 Quadratmetern des dazugehörenden Grundstücks können Sie entspannen. Das gesamte Grundstück inklusive Haus wird für einen Preis von 410.704 Euro verkauft.
Erfüllen sie sich mit der coolen Aktion von massa Haus ihren Traum.
31582 Nienburg (Weser)
Die vollständige Adresse der Immobilie erhalten Sie vom Anbieter.
Auf Karte anzeigen
Die vollständige Adresse der Immobilie erhalten Sie vom Anbieter.
Finanzierungszertifikat
In nur zwei Minuten zu Ihrem persönlichen Finanzierungszertifkat.
Infos
| Wohnfläche ca. | 145 m2 |
|---|---|
| Grundstücksfläche | 800 m2 |
| Zimmer | 4 |
| Schlafzimmer | 3 |
Kosten
| Kaufpreis |
331.750 € |
|---|---|
| Provision | Nein |
Finanzierungsrechner:
Kaufpreis:
600.000 €
Eigenkapital:
600.000 €
Monatliche Rate
0 €
Effektiver Jahreszins
0 %
Sollzinsbindung
10 Jahre
Bausubstanz & Energieausweis
| Qualität der Austattung | Normal |
|---|---|
| Heizungsart | Wärmepumpe |
Beschreibung des Objekts
Ausstattung
Unsere attraktiven massa Häuser
sind echte Hingucker in jeder Nachbarschaft.
Außen kompakt, überraschen die gemütlich
anmutenden Klassiker mit einem Inneren, das
Offenheit und Großzügigkeit ausstrahlt. Hier
kannst du dich individuell entfalten und deine
Lebensträume gestalten
Lage
Dieses Baugrundstück ist über die Zufahrt der Straße "Im Flecken" erreichbar.
Diverse Einkaufsmöglichkeiten (Edeka, Rossmann, Lidl etc.) sind innerhalb weniger Minuten mit dem Auto zu erreichen. Zusätzlich befinden sich diverse Einrichtungen des täglichen Bedarfs in der Nähe (Kindergarten, Grundschule, Krankenhaus, Ärzte, Apotheken).
Grundstück 800m²/153,00€m²
Sonstige Angaben
Bei Interesse
Bin ich gerne von Montags bis Sonntags für sie telefonisch oder über E-Mail zu erreichen.
Telefonnummer 015737078347
E-Mail andrea.pohl2@massa-haus.de
www.massa-haus.de
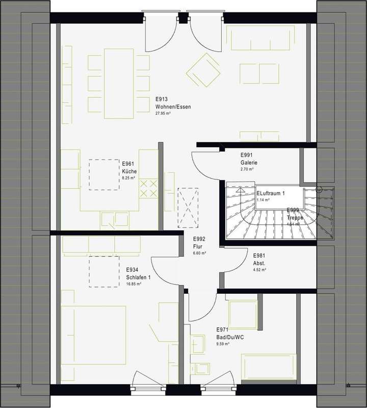
Grundriss
Grundrisse FS 17 01 S EG
>
>
Grundrisse FS 17_01_S_DG_
>
>
Adresse
31582 Nienburg (Weser)
Interessante Orte
Preis- und Lageinformationen
Preistrend für Bestandsimmobilien in Nienburg (Weser)