Dieser gepflegte Bungalow in Bergen überzeugt durch seine großzügige Raumaufteilung und das weitläufige Grundstück.
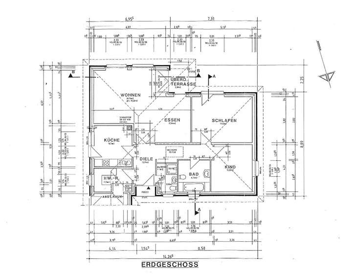
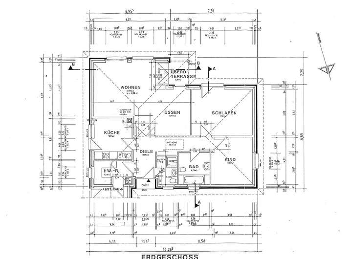
Auf einer Wohnfläche von ca. 116 m² bietet das Haus drei gut geschnittene Zimmer - darunter zwei Schlafzimmer - sowie eine Küche und ein Badezimmer. Ein Hauswirtschaftsraum und ein Gäste-WC runden das Raumangebot ab. Der Wohn- und Essbereich ist lichtdurchflutet und schafft eine freundliche Atmosphäre.
Das Haus verfügt über eine barrierearme Bauweise mit stufenlosem Zugang – ideal für kleine Familien, Paare oder auch für das Wohnen im Alter.
Das 1.227 m² große Grundstück bietet vielfältige Nutzungsmöglichkeiten und lädt mit seiner Größe und Lage zum Entspannen, Gärtnern oder geselligen Stunden im Freien ein.
Bungalow mit Platz zur Entfaltung
29303 Bergen
Die vollständige Adresse der Immobilie erhalten Sie vom Anbieter.
Auf Karte anzeigen
Die vollständige Adresse der Immobilie erhalten Sie vom Anbieter.
Finanzierungszertifikat
In nur zwei Minuten zu Ihrem persönlichen Finanzierungszertifkat.
Infos
| Haustyp | Bungalow |
|---|---|
| Wohnfläche ca. | 116 m2 |
| Nutzfläche | 25 m2 |
| Grundstücksfläche | 1.227 m2 |
| Bezugsfrei ab | Nach Absprache |
| Zimmer | 3 |
| Schlafzimmer | 2 |
| Badezimmer | 1 |
| Garage/Stellplatz | Garage |
| Anzahl Garage/Stellplatz | 1 |
Kosten
| Kaufpreis |
259.000 € |
|---|---|
| Provision |
3,57% Das vom Käufer der Immobilie zu zahlende Maklerhonorar beträgt 3,57% inklusive der gesetzlichen Mehrwertsteuer vom notariellen Kaufpreis und ist mit Unterzeichnung des Kaufvertrages zur Zahlung fällig. |
Finanzierungsrechner:
Kaufpreis:
600.000 €
Eigenkapital:
600.000 €
Monatliche Rate
0 €
Effektiver Jahreszins
0 %
Sollzinsbindung
10 Jahre
Bausubstanz & Energieausweis
| Baujahr | 1996 |
|---|---|
| Energieausweis | liegt zur Besichtigung vor |
Beschreibung des Objekts
Ausstattung
- Außenrollläden
- Garage
- Gartenhäuschen
- Barrierearme Bauweise
Lage
Die Stadt Bergen wurde zur zentralen Ortschaft der Einheitsgemeinde mit Sitz der Stadtverwaltung und städtischen Einrichtungen wie Stadthaus, Stadtbad, Stadtbücherei, Stadtarchiv, KFZ-Zulassungsstelle und Feuerwehr.
Heute leben in der Stadt Bergen etwa 14.000 Einwohner.
In Bergen sind eine Reihe mittelständischer Betriebe aus verschiedenen Branchen, wie Handwerk und Handel, regional und überregional ansässig.
Bergen ist der Mittelpunkt für die zugehörigen 13 Ortschaften, und Anlaufstelle für Heide-Touristen. Kilometerweite zusammenhängende Waldgebiete im Süden Bergens, uralte Naturlandschaften mit Heide und Mooren im Norden laden zu ausgedehnten Spaziergängen, Wanderungen und Radtouren ein. Im Westen öffnet sich der "Naturpark Südheide".
Die Kreisstadt Celle erreichen Sie in ca. 15 Autominuten.
Supermärkte und Einzelhandelsangebot, Friseure, Kfz-Werkstätten und Handwerksbetriebe schaffen die nötige Infrastruktur.
Die allgemeinmedizinischen Versorgung, Zahnarztpraxen, Apotheke und Physiotherapie-Praxen runden den Bedarf ab.
Die Schulformen Grund- und Oberschule mit gymnasialem Zweig sowie mehrere Kindergärten gehören zur sehr guten Infrastruktur von Bergen.
In ca. 18 km finden Sie auf der A7 die Autobahnauffahrt Soltau Süd. Den Bahnhof Celle erreichen Sie in ca. 20 km Entfernung. Dort finden sie Anschluss an das DB- und Metronom-Schienennetz.
Sonstige Angaben
Geschäftsbedingungen
Mit Erhalt des Exposés erkennen Sie an, dass der Erwerb des o. g. Objektes durch Nachweis oder Vermittlung der Gebers&Roch Immobilien GmbH erfolgt.
Ist dem Auftraggeber die ihm nachgewiesene Vertragsangelegenheit bereits bekannt, hat er dies unverzüglich der Firma Gebers&Roch Immobilien GmbH mitzuteilen.
Eine Weitergabe der Objektdaten verpflichtet zum Schadenersatz, falls ein Dritter dadurch zum Vertragsabschluss kommt.
Alle Angaben beruhen auf Informationen des Verkäufers und sind vom Käufer vor Vertragsabschluss nachzuprüfen. Für die Richtigkeit der Verkäuferangaben können wir keine Haftung übernehmen. Irrtümer bleiben vorbehalten.
Grundriss
Grundriss
>
>
Adresse
29303 Bergen
Interessante Orte
Preis- und Lageinformationen
Preistrend für Bestandsimmobilien in Bergen