Modernes Wohnen im „Wohnquartier Pariser Straße 27“
In begehrter Wohnlage von Wörrstadt gelegen, verfügen unsere im Modernen Stil errichteten Mehrfamilienhäuser über 17 Zwei- bis Vierzimmerwohnungen mit Wohnflächen von ca. 68 m² bis ca. 117 m² welche sich auf 3 Mehrfamilienhäuser (2x 6 Parteien & 1x Parteien) verteilen.
Im Stadtzentrum von Wörrstadt bieten wir Ihnen 17 moderne Eigentumswohnungen welche sich auf 3 Mehrfamilienhäuser (2x 6 Parteien & 1x 5 Parteien) verteilen an. Die Erstellung der Mehrfamilienhäuser erfolgt in Massivbauweise nach dem gültigen Gebäudeenergiegesetz (GEG 2024) mit modernster Technik.
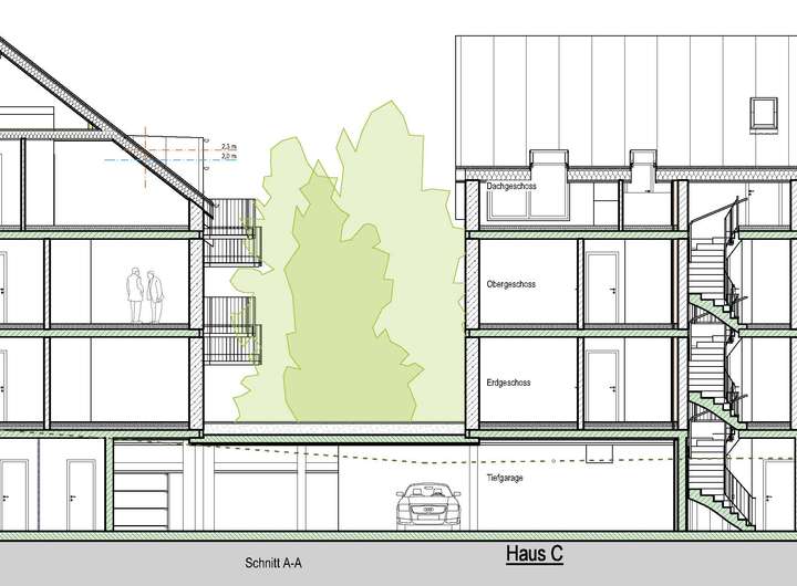
Jeweils ein zentraler Personenaufzug pro Haus, führt vom Kellergeschoss über alle Wohngeschosse bis in die Dachgeschosswohnungen und gewährleistet somit einen stufenlosen Zugang in alle Wohnungen.
Design und Ausstattung sind modern, hochwertig und sehr geschmackvoll konzipiert. Alle Wohnungen entsprechen modernen Wohnbedürfnissen, haben großzügig gestaltete Wohnbereiche mit offenen Küchen und bieten jedem Lebensalter den passenden Rahmen für eine komfortable Wohnsituation.
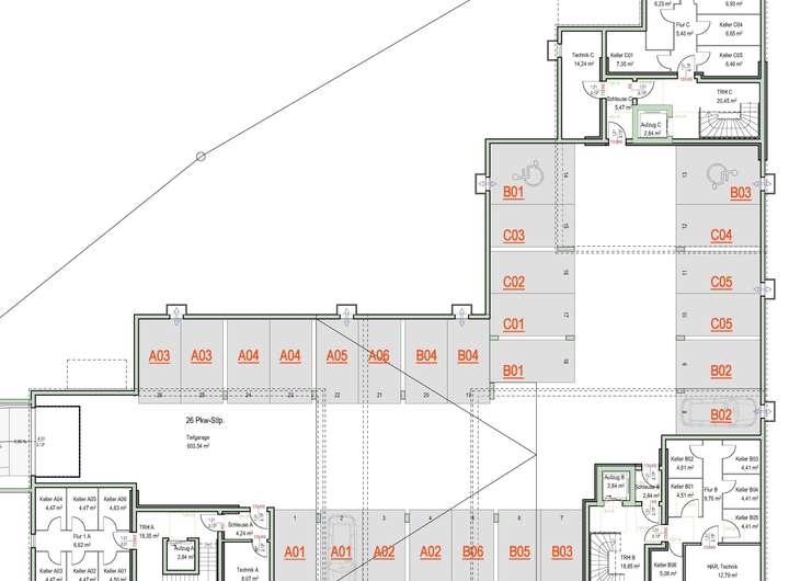
Bei der Planung wurde explizit auf viel Helligkeit in den Wohnräumen geachtet. Eine ansprechend gestaltete Außenanlage, sowie die nach Süd-West und West ausgerichteten Terrassen und Balkone runden dieses Neubauprojekt ab. Die Tiefgarage unter den Mehrfamilienhäusern bietet neben 26 Kfz-Stellplätzen auch drei Technikräume. Jeder Wohneinheit ist ein eigener, abschließbarer, Kellerraum zugeteilt.
Vier von sechs Erdgeschosswohnungen werden mit einer Terrasse und Privatgarten veräußert. In nur wenigen Gehminuten erreichen Sie die Innenstadt von Wörrstadt mit dem Mittelpunkt Neunröhrenbrunnen.
Den Hauptbahnhof von Wörrstadt erreichen Sie in wenigen Gehminuten. Eine Einkaufsmöglichkeit (Penny Markt) befindet sich in unmittelbarer Nähe.
Derzeit können Sie Ihre eigenen Wünsche und Ideen bei der Innenausstattung einbringen, natürlich soweit dies der Baufortschritt und die technische Durchführung zulässt.
Zu jeder Wohneinheit ist mindestens 1 Tiefgaragenstellplatz zu erwerben. Sollten Sie noch Fragen haben, können Sie uns gerne telefonisch oder per E-Mail kontaktieren.
B03 - Obergeschosswohnung mit Balkon - Barrierefrei
Pariser Str. 27,
55286 Wörrstadt
Auf Karte anzeigen
Finanzierungszertifikat
In nur zwei Minuten zu Ihrem persönlichen Finanzierungszertifkat.
Infos
| Wohnungskategorie | Etagenwohnung |
|---|---|
| Etage | 1 von 2 |
| Wohnfläche ca. | 81 m2 |
| Nutzfläche | 4,5 m2 |
| Bezugsfrei ab | 07/2027 |
| Zimmer | 3 |
| Schlafzimmer | 2 |
| Badezimmer | 1 |
| Garage/Stellplatz | Tiefgarage |
| Anzahl Garage/Stellplatz | 2 |
Kosten
| Kaufpreis |
374.500 € |
|---|---|
| Preis für Garage/Stellplatz | 25.000 € |
| Provision | Nein |
Finanzierungsrechner:
Kaufpreis:
600.000 €
Eigenkapital:
600.000 €
Monatliche Rate
0 €
Effektiver Jahreszins
0 %
Sollzinsbindung
10 Jahre
Bausubstanz & Energieausweis
| Baujahr | 2027 |
|---|---|
| Objektzustand | Erstbezug |
| Qualität der Austattung | Gehoben |
| Heizungsart | Wärmepumpe |
| Wesentliche Energieträger | Strom |
| Energieausweis | liegt zur Besichtigung vor |
Beschreibung des Objekts
Ausstattung
- Das Mehrfamilienhaus wird nach Gebäudeenergiegesetz 2024 in Massivbauweise (Außenmauerwerk aus 42,5 cm starken Porenbetonsteinen) erstellt.
- Anspruchsvolles Design, hochwertige Materialien, modernste Technik und eine energetisch zukunftsweisende Bauweise sichern Ihnen viele Jahre eine zuverlässige und wirtschaftliche Immobilie.
- Panoramablick über Wörrstadt
- Erdgeschosswohnungen mit Terrassen und privater Grünfläche
- 3-fach Isolierverglasung
- Elektrische Rollladenantriebe mit PVC Rollladenpanzer an allen rechteckigen Fenstern (ausgenommen Dachflächenfenster)
- Natursteinfensterbänke
- Innentüren in Weiß-Lack RAL 9010 mit ca. 2,11 m höhe
- Modern und hochwertig ausgestattete Bäder mit Designobjekten von Villeroy & Boch oder Geberit
- Vinylbodenbeläge
- Glattvliestapeten als Wandbelag an den Wänden und Decken
- Bodengleiche Walk-In-Dusche mit Edelstahlrinnen
- Designfliesen (30 cm x 60 cm) in den Bädern
- Tageslichtbäder
- Fußbodenheizung inkl. Einzelraumthermostaten
Lage
Wörrstadt liegt im Landkreis Alzey-Worms in Rheinland-Pfalz mit knapp 8.500 Einwohnern. Zu Ihr gehört der Stadtteil Rommersheim, der im südwestlichen Stadtgebiet liegt.
Wörrstadt ist von der typisch rheinhessischen Kulturlandschaft umgeben. In den Gunsträumen wird intensiver Wein- und Ackerbau betrieben. Mit dem Neuborn verfügt die Stadt über eines der wenigen Waldgebiete der Region. In diesem Waldgebiet existieren viele natürliche Quellen, deren Wasser das Schwimmbad der Verbandsgemeinde, das Neubornbad, speist. Durch Wörrstadt fließt die Mühlbach.
Weitere Dokumente
OG-BGrundriss
Grundriss Tiefgarage-Kellerges
>
>
Adresse
Pariser Str. 27, 55286 Wörrstadt
Interessante Orte
Preis- und Lageinformationen
Preistrend für Bestandsimmobilien in Wörrstadt