Objekt-Nummer: 304
Art des Energieausweises: Bedarfsausweis
Endenergiebedarf in kWh/(m² a): 348,8
Wesentlicher Energieträger der Heizung: Erdgas
Energieeffizienzklasse: H
Baujahr lt. Energieausweis: 1939
Im beschaulichen Mariensiel, einem kleinen Ortsteil von Sande in Friesland, erwartet Sie diese charaktervolle Doppelhaushälfte aus dem Jahr 1939 ein weiß verputztes Haus mit hübschen Dachgauben, das schon auf den ersten Blick seinen ganz eigenen Charme versprüht. Eingebettet in einen sehr schön umwachsenen Garten auf einem 411 m² großen Grundstück, wirkt das Haus wie ein kleines Refugium, das Ruhe und Geborgenheit ausstrahlt. Viele Jahre diente es als beliebtes Ferienhaus und bot seinen Gästen erholsame Tage nahe der Nordsee und in einer Umgebung, in der die Zeit ein wenig langsamer zu laufen scheint.
Das Erdgeschoss empfängt Sie mit zwei gemütlichen Zimmern, einer großzügigen Küche mit moderner Einbauküche sowie direktem Zugang in den Keller. Von der Küche aus gelangen Sie ins Badezimmer und weiter in einen kleinen Flur mit Gäste-WC und Zugang in den sonnigen Garten. Im Obergeschoss warten zwei schön ausgebaute Zimmer, ein weiteres Bad sowie ein kleinerer Raum, der sich vielseitig nutzen lässt. Eine zusätzliche Treppe führt in einen großzügigen Dachbodenraum mit Ausbaupotenzial. Über eine ausziehbare Treppe erreichen Sie den oberen Dachboden, der reichlich Stauraum bietet.
Die ruhige Lage in diesem kleinen friesischen Dorf macht das Haus zum idealen Zuhause für Familien und Menschen, die ein Leben abseits des Trubels schätzen. Ebenso bietet sich die Möglichkeit, die Immobilie weiterhin als Ferienunterkunft zu nutzen. Mit etwas handwerklichem Geschick lässt sich der ursprüngliche Charme des Hauses bewahren und gleichzeitig mit frischem Glanz neu beleben ein Ort, an dem sich Geschichte und Zukunft harmonisch verbinden.
Anbieter-Objektnummer: F304
TT bietet an: Ihr neues Zuhause in Mariensiel mit großem Garten zum Träumen und Gestalten!
26452 Sande
Die vollständige Adresse der Immobilie erhalten Sie vom Anbieter.
Auf Karte anzeigen
Die vollständige Adresse der Immobilie erhalten Sie vom Anbieter.
Finanzierungszertifikat
In nur zwei Minuten zu Ihrem persönlichen Finanzierungszertifkat.
Infos
| Haustyp | Doppelhaushaelfte |
|---|---|
| Wohnfläche ca. | 105 m2 |
| Grundstücksfläche | 411 m2 |
| Bezugsfrei ab | nach Absprache |
| Zimmer | 4,5 |
| Anzahl Garage/Stellplatz | 2 |
Kosten
| Kaufpreis |
165.000 € |
|---|---|
| Provision |
3,57 % inkl. MwSt |
Finanzierungsrechner:
Kaufpreis:
600.000 €
Eigenkapital:
600.000 €
Monatliche Rate
0 €
Effektiver Jahreszins
0 %
Sollzinsbindung
10 Jahre
Bausubstanz & Energieausweis
| Baujahr | 1939 |
|---|---|
| Wesentliche Energieträger | Gas |
| Energieausweis | liegt vor |
| Energieausweistyp | Bedarfsausweis |
| Energieverbrauchskennwert | 348,8 kWh/(m²*a) |
| Energieeffizienzklasse | H |
348,8
kWh/(m²*a)
Energieeffizienzklasse H
- A+
- A
- B
- C
- D
- E
- F
- G
- H
- 0
- 25
- 50
- 75
- 100
- 125
- 150
- 175
- 200
- 225
- >250
Beschreibung des Objekts
Lage
Mariensiel ist ein Ortsteil der Gemeinde Sande im Landkreis Friesland. Mariensiel liegt in unmittelbarer Nähe vom Jadebusen an der Nordsee. Der Ort befindet sich direkt am südwestlichen Stadtrand von Wilhelmshaven. Zum Gemeindezentrum von Sande sind es lediglich 1,5 Kilometer. Am südöstlichen Ortsrand von Mariensiel befindet sich der Flugplatz Wilhelmshaven-Mariensiel. Im Norden des Ortes verläuft der Ems-Jade-Kanal von Emden über Aurich nach Wilhelmshaven. Eine der sechs Schleusen des Kanals ist die Mariensieler Schleuse, die den Kanal mit dem Wilhelmshavener Hafen verbindet.
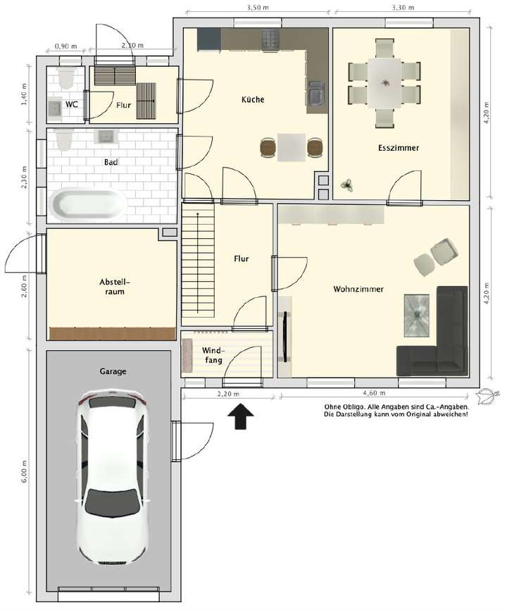
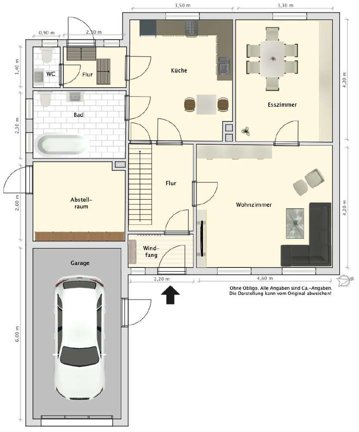
Grundriss
Grundriss Erdgeschoss
>
>
Grundriss Dachgeschoss
>
>
Adresse
26452 Sande
Interessante Orte
Preis- und Lageinformationen
Preistrend für Bestandsimmobilien in Sande