Herzlich Willkommen zu unserem neuen Projekt "Wohnpark Wedemark" in der Wedemark im Ortsteil Meitze.
Hier entstehen in schöner Lage vier Doppelhaushälften, die modernes Design mit höchstem Wohnkomfort verbinden.
Inmitten einer charmanten Umgebung bieten diese großzügigen Grundstücke eine erstklassige Lage mit einer herrlichen Süd-West- Ausrichtung.
Die Doppelhäuser verfügen jeweils über eine Grundfläche von ca. 127 m² zzgl. ca. 29 m² Studio und großzügige Grundstücksflächen von ca. 327 bis 348 m².
Diese optimale Kombination aus Raum und Lage schafft eine einladende Atmosphäre für Familien, die nach einem behaglichen Zuhause suchen.
TRAUMHAFT WOHNEN IN MEITZE: Moderne Doppelhaushälften zu Top-Preis!
30900 Wedemark
Die vollständige Adresse der Immobilie erhalten Sie vom Anbieter.
Auf Karte anzeigen
Die vollständige Adresse der Immobilie erhalten Sie vom Anbieter.
Finanzierungszertifikat
In nur zwei Minuten zu Ihrem persönlichen Finanzierungszertifkat.
Infos
| Haustyp | Doppelhaushaelfte |
|---|---|
| Wohnfläche ca. | 127 m2 |
| Grundstücksfläche | 348 m2 |
| Zimmer | 4 |
| Schlafzimmer | 3 |
| Badezimmer | 1 |
Kosten
| Kaufpreis |
362.400 € |
|---|---|
| Provision | Nein |
Finanzierungsrechner:
Kaufpreis:
600.000 €
Eigenkapital:
600.000 €
Monatliche Rate
0 €
Effektiver Jahreszins
0 %
Sollzinsbindung
10 Jahre
Bausubstanz & Energieausweis
| Bauphase | Haus in Planung (projektiert) |
|---|---|
| Objektzustand | Erstbezug |
| Qualität der Austattung | Gehoben |
| Heizungsart | Wärmepumpe |
Beschreibung des Objekts
Ausstattung
Unsere vier Doppelhaushälften bestehen aus je ca. 127 m² Grundfläche zzgl. ca. 29 m² Studio und einer jeweiligen Grundstücksfläche von ca. 327 bis 348 m² Fläche.
Die Architektur der Doppelhäuser besticht durch Ihre Moderne und Offenheit und ist durch den Grundriss für die ganze Familie konzipiert.
Die wichtigsten Merkmale im Überblick:
+ Begehrte Lage: Die Gemeinde Wedemark zählt zu den beliebtesten Wohnlagen im Norden Hannovers und der Region. Insbesondere der Ort Meitze erfreut sich durch die schöne Umgebung großer Beliebtheit und Nachfrage.
+ Energieeffizienzhaus 40: Wir bauen unsere Häuser klimafreundlich. Damit erfüllt Ihr neues Zuhause höchste Energieeffizienzstandards und ist nach den KfW-Richtlinien förderfähig. Weitere Informationen zu den Fördermöglichkeiten erhalten Sie von uns. Sprechen Sie uns an.
+ Großzügiges Grundstück und viel Wohnfläche: Die Doppelhäuser verfügen jeweils über ein Grundstück von ca. 327 bis 348 m² und einer Grundfläche von je ca. 127 m². Ideal für die ganze Familie.
+ Traditionelle Klinker-Fassade: Die Klinkerfassade verleiht dem Doppelhaus eine zeitlose sowie moderne Eleganz und fügt sich in Kombination mit dem roten Dach perfekt in die Nachbarschaft ein. Somit wird ein harmonisches Gesamtbild geschaffen, das optimal in die nähere Umgebung und den ländlichen, traditionellen Stil der Wedemark passt.
+ Lüftungsanlage inkl. Wärmerückgewinnung und Kühlfunktion: Die Lüftungsanlage sorgt für ein angenehmes Raumklima und Wohlbefinden. Durch die Wärmerückgewinnung wird die Energieeffizienz erheblich gesteigert. Die integrierte Kühlfunktion kann im Sommer die Luft im Haus kühlen.
+ Große, stilvolle Fenster: Die großzügigen Fensterelemente sorgen nicht nur für ein helles Ambiente, sondern bieten auch einen herrlichen Blick auf den Garten.
+ Hochwertige Ausstattung: Fliesen und Designböden von namhaften Markenherstellern, Sanitärobjekte von Villeroy & Boch, ebenerdig geflieste Duschbereiche sowie ein umfangreiches Elektroinstallationspaket.
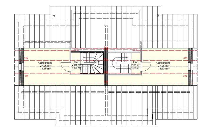
+ Umfangreicher Spitzbodenausbau: Zur Nutzung als großzügiges Studio (ca. 29 m²) mit zusätzlichem Platz für ein Kinder-/Gäste-/-Arbeitszimmer oder als Abstellraum für noch mehr Fläche in Ihrem Haus.
Lage
Willkommen in Meitze, einem beliebten Ortsteil der Gemeinde Wedemark, der für seine charmante Atmosphäre und seine gute Lage bekannt ist. Etwa 20 Kilometer nördlich von Hannover gelegen, bietet Meitze, umgeben von Wäldern, Wiesen und landwirtschaftlichen Flächen, eine hohe Lebensqualität, besonders für Familien und Naturliebhaber.
Trotz der ländlichen Lage verfügt Meitze über hervorragende Verkehrsanbindungen. Über die nahegelegene Autobahn A7 (Anschlussstelle Mellendorf) und die B214 ist die Landeshauptstadt Hannover schnell erreichbar. Regelmäßige Busverbindungen führen nach Mellendorf, wo ein Anschluss an die S-Bahn (S4) besteht. Der Flughafen Hannover-Langenhagen ist etwa 15 Minuten entfernt.
Die Infrastruktur ist gut ausgebaut. Einkaufsmöglichkeiten finden sich in den benachbarten Ortsteilen Mellendorf und Bissendorf. Kindergärten, Grundschulen und weiterführende Schulen sind in der Nähe, darunter die IGS Wedemark und das Gymnasium Mellendorf. Die medizinische Versorgung wird durch Allgemein- und Fachärzte sowie das Klinikum Region Hannover in Großburgwedel sichergestellt.
Darüber hinaus bietet Meitze zahlreiche Freizeitmöglichkeiten. Wanderund Radwege durchziehen die idyllische Landschaft. Der Naturpark Steinhuder Meer und das Naherholungsgebiet Altwarmbüchener See sind beliebte Ausflugsziele. Sportbegeisterte finden in der Region viele Vereine und Einrichtungen wie Fußballplätze, Tennisanlagen und Reitställe. Das Wedemärker Hallenbad und das Naturbad in Mellendorf bieten zusätzlichen Badespaß.
Meitze verbindet die Ruhe des Landlebens mit einer guten Anbindung an Hannover, guter Infrastruktur und vielfältigen Freizeitmöglichkeiten – ideal für Familien, Berufspendler und Naturliebhaber.
Sonstige Angaben
ÜBER UNS
1998 wurde HANNOVER HAUS als regionales Bauunternehmen mit Sitz in Altwarmbüchen bei Hannover gegründet. Zu unseren Tätigkeitsfeldern gehört neben dem Bau von Einfamilienhäusern auch die Projektentwicklung von Grundstücken mit Mehrfamilienhäusern und Wohnanlagen sowie die Modernisierung von Bestandsimmobilien.
Durchdachte Raumkonzepte, gepaart mit moderner, individueller Architektur und energetisch optimierten Haustechnikkonzepten. Dafür steht jedes unserer gebauten Massivhäuser.
Die Qualität unserer Häuser, kann nur von bestens qualifizierten Mitarbeitern und Partnerfirmen gewährleistet werden. Wir sind stolz auf unsere eigenen Handwerker und unser eingespieltes Team aus Architekten, Bauingenieure und Verkäufern. Wir legen großen Wert auf Fortbildungs- und Trainingsmaßnahmen, die uns stets auf dem neusten Stand der Technik halten.
Wir achten besonders darauf, dass wir Materialien und Baustoffe verwenden, die im Sinne der Nachhaltigkeit und mit hohen Umweltschutzstandards produziert werden.
Besichtigung unseres Beratungszentrums “IMMOVATIONSHAUS”:
Bei einer individuellen Besichtigung unseres schönen Bemusterungszentrums in Altwarmbüchen können Sie sich ein Bild von der Marke HANNOVER HAUS machen und die Menschen hinter dem Unternehmen kennenlernen.
Die Bemusterung unserer Neubau-Häuser und Wohnungen findet ebenfalls in unserem IMMOVATIONSHAUS statt, in dem Sie hautnah die Ausstattung Ihres Hauses erleben können.
Ihr Termin mit uns
Gerne vereinbaren wir mit Ihnen einen individuellen Termin ganz nach Ihren Wünschen. Bei uns vor Ort – Online per Videokonferenz oder auf dem Grundstück.
SONSTIGES
Alle Texte, Bilder, Zeichnungen, Grundrisse und grafische Gestaltungen sind von der HANNOVER HAUS GmbH urheberrechtlich geschützt. Abbildungen und Visualisierungen zeigen Ausführungsbeispiele. Änderungen, Abweichungen und Irrtümer vorbehalten.
Grundriss
Grundriss EG
>
>
Grundriss DG
>
>
Grundriss Spitzboden
>
>
Adresse
30900 Wedemark
Interessante Orte
Preis- und Lageinformationen
Preistrend für Bestandsimmobilien in Wedemark