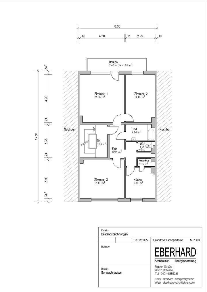
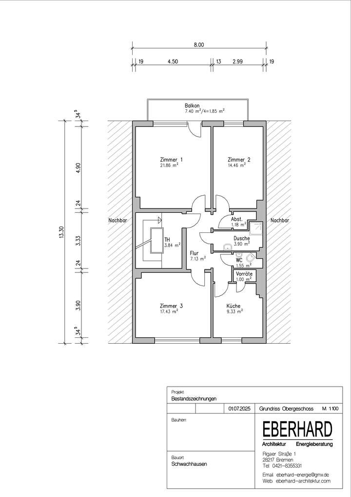
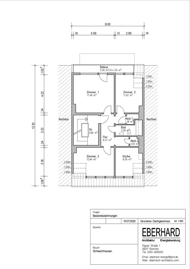
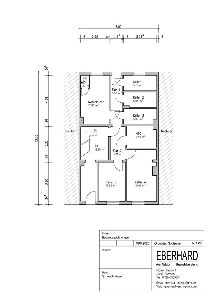
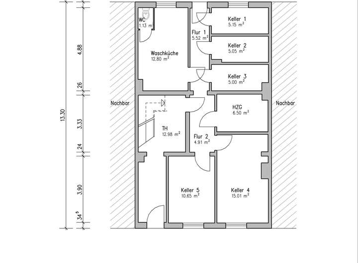
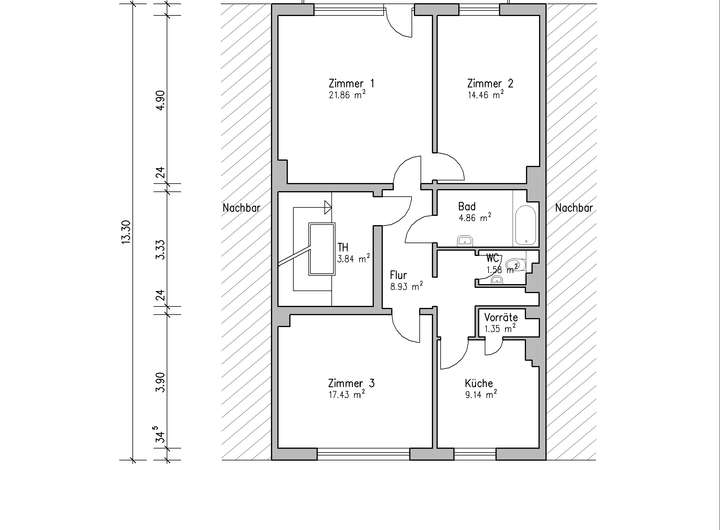
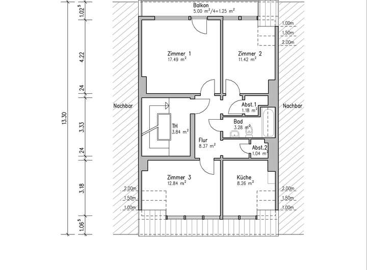
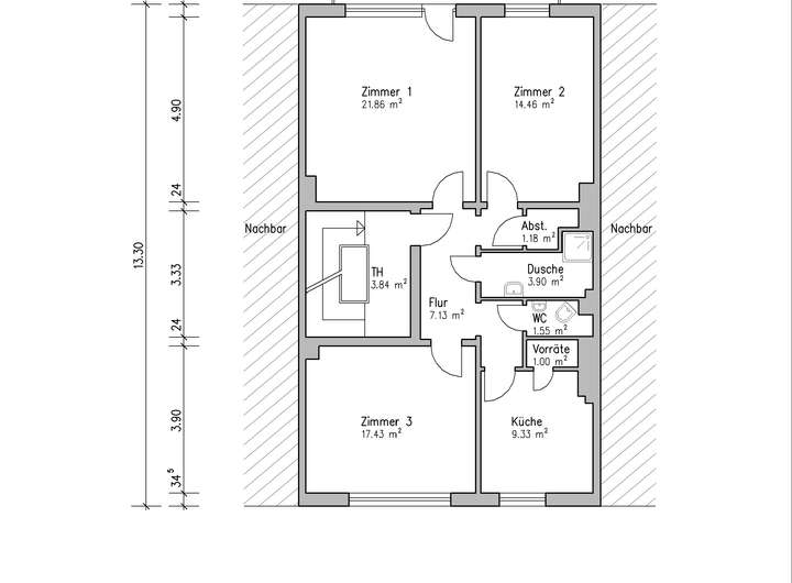
Mehrfamilienhaus mit 3 Wohnungen und Keller Raumaufteilung: Souterrain 83,57m²: Eingangsbereich in das Treppenhaus, Zugang Keller: 2 Flure, Hauswirtschaftsraum, 5 Kellerräume, 1 Heizungsraum, Hochparterre 3,84m²: Treppenhaus Wohng. 81,46m²: Flur, 3 Zimmer (1 Zi. mit Balkon), Küche, Bad, Abstellraum, Gäste WC OG 3,84m²: Treppenhaus Wohng. 79,69m²: Flur, 3 Zimmer (1 Zi. mit Balkon), Küche, Duschbad, Abstellraum, Vorratsraum, Gäste WC DG 3,84m²: Treppenhaus – Zugleiter in den Spitzboden 30 m²/ Abstellfläche DG Wohng. 65,13m²: Flur, 3 Zimmer (1 Zi. mit Balkon), Küche, Bad, 2 Abstellräume Eingangsbereich führt in das Treppenhaus mit Zugang in dem Souterrain mit 5 Kellerräumen, Hauswirtschaftsraum, Heizungsraum und Ausgang in den Garten. Whng. Hochparterre / OG/ DG jeweils 3 Zimmer und Balkon ( s.h. Grundriss). Eine rundum gepflegte Immobilie INNEN u. AUSSEN mit idyll. Garten …eine grüne Oase in der Stadt…in ruhiger Seitenstraße, sehr gute Lage in Schwachhausen… Ein interessantes Investment für die Altersvorsorge… SEHEN & KAUFEN! Bitte haben Sie Verständnis das es aufgrund der vermieteten Wohnungen keine Innenbilder veröffentlich werden können. Vereinbaren Sie mit uns einen Besichtigungstermin, überzeugen Sie sich selbst….wir freuen uns auf Sie!
1a Lage… Bremen-Schwachhausen schmuckes MFH / 3 Wohneinheiten + Keller, idyll. Garten
28209 Bremen
Die vollständige Adresse der Immobilie erhalten Sie vom Anbieter.
Auf Karte anzeigen
Die vollständige Adresse der Immobilie erhalten Sie vom Anbieter.

Finanzierungszertifikat
In nur zwei Minuten zu Ihrem persönlichen Finanzierungszertifkat.
Infos
Haustyp | Mehrfamilienhaus |
---|---|
Wohnfläche ca. | 226 m2 |
Nutzfläche | 125,09 m2 |
Grundstücksfläche | 358 m2 |
Bezugsfrei ab | nach Absprache |
Zimmer | 9 |
Schlafzimmer | 6 |
Badezimmer | 3 |
Garage/Stellplatz | Garage |
Anzahl Garage/Stellplatz | 1 |
Kosten
Kaufpreis |
819.000 € |
---|---|
Provision |
3 % zzgl. 19 % MwSt. Wir weisen Sie darauf hin, dass im Falle eines Vertragsabschlusses vom Erwerber eine Vermittlungsprovision in Höhe von 3% zzgl. 19 % MwSt. an uns zu zahlen ist. |
Finanzierungsrechner:
Kaufpreis:
600.000 €
Eigenkapital:
600.000 €
Monatliche Rate
0 €
Effektiver Jahreszins
0 %
Sollzinsbindung
10 Jahre
Bausubstanz & Energieausweis
Baujahr | unbekannt |
---|---|
Objektzustand | Gepflegt |
Heizungsart | Öl-Heizung |
Wesentliche Energieträger | Öl |
Energieausweis | liegt vor |
Energieausweistyp | Bedarfsausweis |
Energieverbrauchskennwert | 183,9 kWh/(m²*a) |
Energieeffizienzklasse | F |
183,9
kWh/(m²*a)
Energieeffizienzklasse F
- A+
- A
- B
- C
- D
- E
- F
- G
- H
- 0
- 25
- 50
- 75
- 100
- 125
- 150
- 175
- 200
- 225
- >250
Beschreibung des Objekts
Ausstattung
Heizung: Oelheizung –5000 Ltr. Erdtank Buderus Bj. 2008 ohne Brauchwasser Fenster: Kunststofffenster Isolierverglasung Fußböden: Fliesen/Laminat/PVC Ausstattung: MFH Wiederaufbau 1958 Massivbauweise /3 Wohneinheiten Massiv-Bauweise mit Keller Bj.ca. 1958 Wiederaufbau Dämmung: Geschossdecke DG (Wohnung zum Spitzboden) Oelheizung 5000 Ltr. Erdtank Buderus Bj. 2008 ohne Brauchwasser Brauchwasser: Durchlauferhitzer neue Generation, Elektrik: 3adrig, teils 2adrig/Deckenbeleuchtung: Wohng./Hochparterre Elektrik 2021 komplett erneuert inkl. Verteilerkasten 3adrig, Wohng./OG Elektrik teils 3adrig/ 2adrig-Deckenbeleuchtung ohne FI/Kippsich. Wohng./DG Elektrik 2adrig Fenster: Kunststoff Isolierverglasung erneuert: 1997 Rückfront 2022 Vorderfront Bäder komplett erneuert: ca. Mitte 2000 Fußböden: Fliesen / Laminat/ PVC, Treppenhaus: Holztreppe EBK vorhanden, Hochparterre u. DG 2021 erneuert
Lage
Schwachhausen ist ein gehobener Stadtteil im Nordwesten von Bremen, etwa 4 Kilometer vom Stadtzentrum entfernt. Es ist bekannt für seine elegante Atmosphäre, schöne Villen, gepflegte Grünanlagen und eine ruhige, angenehme Wohngegend. Der Stadtteil grenzt im Norden an die Weser, was eine schöne Wasserlage und eine attraktive Umgebung bietet. Charakter und Atmosphäre: Der Stadtteil zeichnet sich durch seine charmanten Altbauten, großzügigen Gärten und eine angenehme, familienfreundliche Stimmung aus. Hier leben viele wohlhabende Familien, Paare und Singles, die die ruhige, aber dennoch zentrale Lage schätzen. Infrastruktur und Freizeit: Schwachhausen verfügt über eine gute Infrastruktur mit zahlreichen Einkaufsmöglichkeiten, Restaurants, Cafés und Boutiquen. Es gibt auch schöne Parks und Grünflächen, wie den Bürgerpark, der zum Spazieren, Joggen oder Entspannen einlädt. Die Anbindung an den öffentlichen Nahverkehr ist ebenfalls sehr gut, sodass man schnell in die Innenstadt oder andere Stadtteile gelangen kann. Besonderheiten: Der Stadtteil ist bekannt für seine hohe Lebensqualität, seine gepflegten Straßen und seine Nähe zur Weser, was ihn zu einem beliebten Wohnort in Bremen macht. Zudem gibt es in Schwachhausen kulturelle Angebote, Schulen und medizinische Einrichtungen, die den Alltag bequem machen. Die Anbindung an den öffentlichen Nahverkehr ist ebenfalls sehr gut, sodass man schnell und einfach in die Innenstadt oder andere Stadtteile gelangen kann. Zudem sind grüne Flächen und Parks in der Umgebung vorhanden, die zum Entspannen und Erholen einladen. Insgesamt ist es eine attraktive Lage in Bremen, die sowohl Ruhe als auch eine gute Erreichbarkeit bietet – perfekt für Menschen, die das städtische Leben schätzen, aber auch die Nähe zur Natur nicht missen möchten.
Sonstige Angaben
Sonstiges: Hochparterre vermietet 550 € NKM /Dachgeschoß vermietet 360 € NKM Mieteinnahmen: NKM p.a. derzeit 10.920 € Wohnung im OG wird z. Zt. vom Eigentümer bewohnt daher keine Mieteinnahme (lt. Mietspiegel bis ca. 8 € bis 11 €/m²) Sämtliche bautechnischen u. technische Objektdaten sind unverbindlich. Sie basieren auf Angaben der Verkäufer. Dieses ist eine vorab Information. Als Rechtsgrundlage dient allein der notarielle Kaufvertrag. Rechtsgültig ist der Kaufvertrag. Der Inhalt ist vertraulich, eine Weitergabe unseres Angebotes an Dritte ist nicht gestattet und verpflichtet bei Umgehung zum Schadenersatz in Höhe der uns entgangenen Provision. Der Maklerauftrag kommt auch dann zustande, wenn Sie sich aufgrund unseres Angebotes direkt mit dem Verkäufer ( Auftraggeber) in Verbindung setzten und von diesem Angebot Gebrauch machen, oder das Objekt von anderer Seite angeboten wird. Nach Vertragsabschluss ist die angegebene Courtage fällig, selbst wenn wir bei dem Vertragsabschluss nicht mitwirken.
Grundriss
Grundriss Hochparterre
>

Grundriss OG
>

Grundriss DG
>

Grundriss Souterrain
>

Adresse
28209 Bremen
Interessante Orte
Preis- und Lageinformationen
Preistrend für Bestandsimmobilien in Schwachhausen