Die angebotene Immobilie wurde im Jahre 1965 in massiver Bauweise auf einem ca. 1.243 m² großen Grundstück errichtet. Im Jahre 2012 wurde die Immobilie einer umfassenden Kernsanierung unterzogen, in deren Zuge sämtliche Fenster, die Heizungsanlage, das Dach, die Fassade, sämtliche Leitungen, Bodenbeläge, Küche, Bäder u.v.m. erneuert wurden.
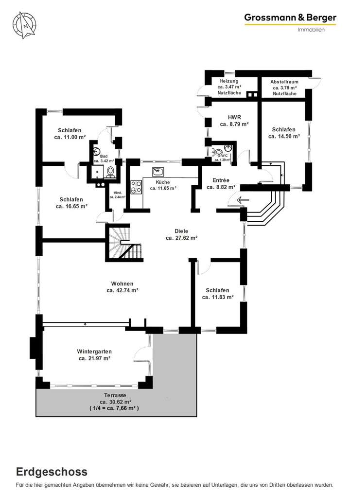
Es stehen insgesamt ca. 252 m² Wohnfläche zur Verfügung, die sich u.a. auf sechs Schlafzimmer und zwei Badezimmer verteilt. Als Besonderheit ist zu nennen, dass sich im Erdgeschoss eine Einliegerwohnung abtrennen lassen könnte.
Die Außenanlage einschließlich gewünschter Stellplätze, das Treppengeländer in das Dachgeschoss sowie der dortige Balkon sind noch nicht fertiggestellt und können somit von den zukünftigen Bewohnern nach deren Vorstellungen ausgeführt werden.
Großzügiges Wohnen in idyllischer Lage
25451 Quickborn
Die vollständige Adresse der Immobilie erhalten Sie vom Anbieter.
Auf Karte anzeigen
Die vollständige Adresse der Immobilie erhalten Sie vom Anbieter.
Finanzierungszertifikat
In nur zwei Minuten zu Ihrem persönlichen Finanzierungszertifkat.
Infos
| Haustyp | Einfamilienhaus |
|---|---|
| Wohnfläche ca. | 252 m2 |
| Grundstücksfläche | 1.243 m2 |
| Bezugsfrei ab | nach Vereinbarung |
| Zimmer | 7 |
| Schlafzimmer | 6 |
| Badezimmer | 2 |
Kosten
| Kaufpreis |
830.000 € |
|---|---|
| Provision |
3,57 % inkl. MwSt. |
Finanzierungsrechner:
Kaufpreis:
600.000 €
Eigenkapital:
600.000 €
Monatliche Rate
0 €
Effektiver Jahreszins
0 %
Sollzinsbindung
10 Jahre
Bausubstanz & Energieausweis
| Baujahr | 1965 |
|---|---|
| Heizungsart | Gas-Heizung |
| Wesentliche Energieträger | Gas |
| Energieausweis | liegt vor |
| Energieausweistyp | Bedarfsausweis |
| Energieverbrauchskennwert | 103,4 kWh/(m²*a) |
| Energieeffizienzklasse | D |
103,4
kWh/(m²*a)
Energieeffizienzklasse D
- A+
- A
- B
- C
- D
- E
- F
- G
- H
- 0
- 25
- 50
- 75
- 100
- 125
- 150
- 175
- 200
- 225
- >250
Beschreibung des Objekts
Ausstattung
Der großzügig geschnittene Grundriss bietet seinen Bewohnern im Erdgeschoss u.a. eine geräumige Diele, einen ca. 43 m² großen Wohnbereich mit einem anschließenden, ca. 22 m² großen Wintergarten, vier Schlafzimmer, ein Duschbad en Suite, eine offene Küche, ein Gäste-WC und einen Hauswirtschaftsraum. Durch die zahlreichen, teils bodentiefen Fenster wird das Haus von viel Tageslicht durchströmt. Vor dem Kamin im Wintergarten lassen sich behagliche Stunden verbringen. Komplettiert wird das Raumangebot auf dieser Ebene von einem Heizungsraum und einem Abstellraum, die jeweils von außen zugänglich sind. Zwei Schlafzimmer und das Duschbad ließen sich zu einer Einliegerwohnung mit separatem Außenzugang abtrennen.
Über eine feste Treppe erreicht man das Dachgeschoss, in dem sich zwei Schlafzimmer und ein Badezimmer mit Dusche und Badewanne befinden.
Lage
Dieses charmante Einfamilienhaus befindet sich in einer ruhigen und dennoch zentralen Lage in Quickborn, einer freundlichen und aufstrebenden Stadt im Norden Deutschlands. Die Umgebung bietet eine perfekte Mischung aus ländlichem Charme und städtischen Annehmlichkeiten, die ein ideales Wohnumfeld für Familien und Berufspendler darstellt.
Die Anbindung an den öffentlichen Nahverkehr ist hervorragend, mit einer Bushaltestelle, die nur etwa 700 Meter entfernt liegt und eine schnelle Verbindung in die umliegenden Stadtgebiete ermöglicht. Für die tägliche Mobilität liegt die nächste Autobahnanbindung lediglich 4,3 Kilometer entfernt und bietet bequemen Zugang zu den größeren Städten der Region.
Familien mit Kindern profitieren von der günstigen Nähe zu mehreren Bildungseinrichtungen. Ein Kindergarten ist nur 850 Meter entfernt, während eine Grundschule und ein Gymnasium sogar in weniger als einem Kilometer zu erreichen sind. Auch für den täglichen Bedarf ist gesorgt, mit Einkaufsmöglichkeiten in einer bequemen Entfernung von 1,8 Kilometern.
Grundriss
EG
>
>
DG
>
>
Adresse
25451 Quickborn
Interessante Orte
Preis- und Lageinformationen
Preistrend für Bestandsimmobilien in Quickborn