Zum Kauf bieten wir Ihnen dieses im Jahr ca. 1954 erbaute Reihenendhaus an. Es befindet sich in Schortens / Upjever am ehemaligen Militärflugplatz.
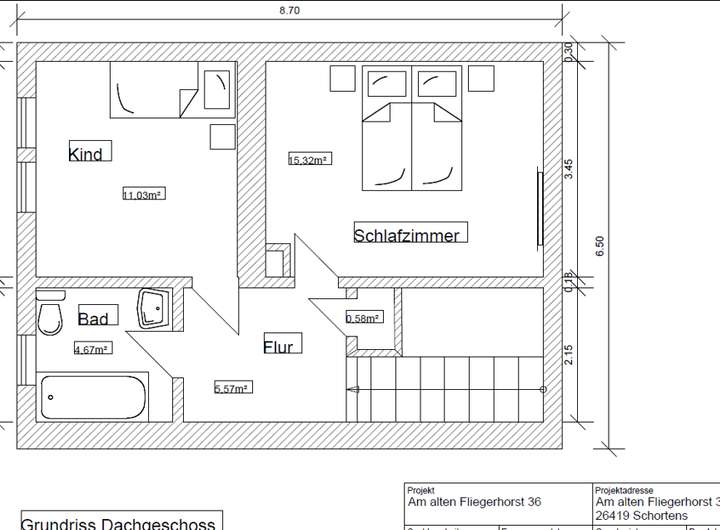
Insgesamt stehen Ihnen hier ca. 80 m² zur Verfügung. Das Eigentumsgrundstück ist knapp 595 m² groß. Die Wohnräume verteilen sich über das Erd- und Obergeschoss. Im Erdgeschoss befindet sich das Wohnzimmer und die Küche. Im Obergeschoss ist ein Bad, ein Schlafzimmer und ein weiteres Zimmer.
Vom Flur aus haben Sie einen direkten Zugang in den Garten. Hier befindet sich die überdachte Terrasse, wo Sie die sommerlichen Abende gemütlich ausklingen lassen können.
Ausreichend Stauraum bietet der Dachboden und der Keller. Im Im Jahr 2020 wurde die Heizung erneuert. Die Holzfenster sind im schlichten weiß gehalten und wurden ebenfalls 2020 überwiegend neu eingebaut.
Ihren PWK können Sie auf dem Stellplatz abstellen.
Die Wohnsiedlung Upjever steht unter Denkmalschutz (Ensemlbeschutz).
Ziel ist es, die städtebauliche Struktur der Wohngebäude in der Wohnsiedlung zu erhalten. Die Verordnung bezieht sich z.B. auf die Fassadengestaltung, Gebäudeöffnungen, Gestaltung durch Überdachungen oder technische Installationen am Gebäude.
Reihenendhaus in Upjever
26419 Schortens
Die vollständige Adresse der Immobilie erhalten Sie vom Anbieter.
Auf Karte anzeigen
Die vollständige Adresse der Immobilie erhalten Sie vom Anbieter.
Finanzierungszertifikat
In nur zwei Minuten zu Ihrem persönlichen Finanzierungszertifkat.
Infos
| Haustyp | Reiheneckhaus |
|---|---|
| Etagenzahl | 2 |
| Wohnfläche ca. | 80 m2 |
| Grundstücksfläche | 595 m2 |
| Zimmer | 3 |
| Schlafzimmer | 2 |
| Badezimmer | 1 |
| Garage/Stellplatz | Außenstellplatz |
| Anzahl Garage/Stellplatz | 1 |
Kosten
| Kaufpreis |
155.000 € |
|---|---|
| Provision |
1,79% inkl. MwSt. |
Finanzierungsrechner:
Kaufpreis:
600.000 €
Eigenkapital:
600.000 €
Monatliche Rate
0 €
Effektiver Jahreszins
0 %
Sollzinsbindung
10 Jahre
Bausubstanz & Energieausweis
| Baujahr | 1954 |
|---|---|
| Denkmalschutzobjekt | Ja |
| Heizungsart | Gas-Heizung |
| Wesentliche Energieträger | Gas |
| Energieausweis | laut Gesetz nicht erforderlich |
Beschreibung des Objekts
Ausstattung
- ca. 80 m² Wohnfläche
- ca. 595 m² großes Grundstück
- PKW- Stellplatz vorhanden
- Austausch der Heizung erfolgte 2020
- Fenster im Jahr 2020 überwiegend erneuert
- Keller
- Dachboden
- Einbauküche ist inklusive
Lage
Upjever ist ein Stadtteil von Schortens im Landkreis Friesland in Niedersachsen. Seit dem 6. Dezember 2011 ist die Stadt Schortens ein staatlich anerkannter Erholungsort.
Etwa drei Viertel des inmitten des Upjeverschen Forstes gelegenen Militärflugplatzes Jever gehört zum Stadtteil Upjever der Stadt Schortens und befindet sich in unmittelbarer Nähe des Hauses.
Nach dem Zweiten Weltkrieg unterlag die Wohnsiedlung längs der Upjeverschen Straße mitsamt Schule ebenfalls militärischer Verwaltung. Mit dem Abzug dort wohnender britischer Streitkräfte wurde diese an die Kommunalverwaltung übergeben.
Der Flugbetrieb wurde Ende September 2013 eingestellt. Derzeit ist der Flugplatz Standort des Objektschutzregimentes der Luftwaffe „Friesland“.
Sonstige Angaben
Das Haus steht unter Denkmalschutz. Ein Energieausweis ist lt. § 16 Abs. 5 der EnEV nicht erforderlich.
Die Provision für Käufer- und Verkäufer beträgt 1,79 % inkl. gesetzl. MwSt..
Alle Angaben im Exposé beruhen auf Informationen und Angaben des Eigentümers.
Adresse
26419 Schortens
Interessante Orte
Preis- und Lageinformationen
Preistrend für Bestandsimmobilien in Schortens