Einmal gesehen und gleich verliebt - das gibt es manchmal. Uns ging es jedenfalls so, und daher präsentieren wir Ihnen nicht ganz ohne Stolz unser neues Angebot am Glienicker See in Kladow:
Ein Familienhaus der feinen Extras, mit allem, was Sie sich für ein idyllisches und gemütliches Zuhause wünschen. Wenn nicht hier, wo sonst könnte man glücklich werden.
5 Zimmer auf über 150 m² Wohnfläche verteilt, plus ca. 14 m² großem Kellerersatzraum/Hauswirtschaftsraum und ein Spitzboden warten auf Sie. Ein Doppelcarport mit elektrischem Rolltor, eine Wallbox, eine große Terrasse, ein kleiner Holzrahmenpool und eine Solaranlage sind nur ein paar der tollen Highlights dieses Immobilienangebotes in idyllischer Lage am See.
Ein massiv gebautes Haus der gehobenen Klasse - und in vielerlei Hinsicht gut geeignet für Familien oder Paare, die eine Immobilie ganz Kladow-typisch ruhig, naturnah und dennoch auch ein wenig städtisch suchen.
Fordern Sie unser Exposé an und lassen Sie sich anschließend vor Ort überzeugen: Das ist IHR neues Zuhause.
Das ist Kladow, wie man es liebt - in direker Nähe zum Glienicker See
14089 Berlin
Die vollständige Adresse der Immobilie erhalten Sie vom Anbieter.
Auf Karte anzeigen
Die vollständige Adresse der Immobilie erhalten Sie vom Anbieter.
Finanzierungszertifikat
In nur zwei Minuten zu Ihrem persönlichen Finanzierungszertifkat.
Infos
| Haustyp | Einfamilienhaus |
|---|---|
| Wohnfläche ca. | 150 m2 |
| Nutzfläche | 14 m2 |
| Grundstücksfläche | 625 m2 |
| Zimmer | 5 |
| Schlafzimmer | 3 |
| Badezimmer | 2 |
| Garage/Stellplatz | Carport |
| Anzahl Garage/Stellplatz | 2 |
Kosten
| Kaufpreis |
699.500 € |
|---|---|
| Provision |
3,57 % inkl. 19 % MwSt. Der Immobilienmakler ist im beidseitigen Interesse für den Verkäufer und den Kaufinteressenten tätig (Doppeltätigkeit). Die Käuferprovision beträgt 3,57 % inkl. 19 % MwSt. und ist verdient und fällig mit Beurkundung des notariellen Kaufvertrages. Der Immobilienmakler hat ebenfalls einen provisionspflichtigen Maklervertrag mit dem Verkäufer in gleichlautender Höhe abgeschlossen. |
Finanzierungsrechner:
Kaufpreis:
600.000 €
Eigenkapital:
600.000 €
Monatliche Rate
0 €
Effektiver Jahreszins
0 %
Sollzinsbindung
10 Jahre
Bausubstanz & Energieausweis
| Baujahr | 1986 |
|---|---|
| Letzte Sanierung | 1998 |
| Bauphase | Haus fertig gestellt |
| Objektzustand | Gepflegt |
| Qualität der Austattung | Normal |
| Heizungsart | Öl-Heizung |
| Wesentliche Energieträger | Öl |
| Energieausweis | liegt vor |
| Energieausweistyp | Bedarfsausweis |
| Energieverbrauchskennwert | 163,2 kWh/(m²*a) |
| Energieeffizienzklasse | F |
163,2
kWh/(m²*a)
Energieeffizienzklasse F
- A+
- A
- B
- C
- D
- E
- F
- G
- H
- 0
- 25
- 50
- 75
- 100
- 125
- 150
- 175
- 200
- 225
- >250
Beschreibung des Objekts
Ausstattung
Die Fakten auf einen Blick:
- Nähe zum Glienicker See
- ca. 625 m² großes Grundstück in bester Ausrichtung mit kleinem Pool
- Carport mit Wallbox
- ca. 150 m² Wohnfläche
- 5 Zimmer auf 2 Etagen
- Gäste-WC mit Fenster sowie Badezimmer mit Wanne
- stilvolles Wohnzimmer mit Kamin und Terrassenzugang
- halboffene Küche
- große Terrasse
- Fußbodenheizung
- Solaranlage auf dem Dach als Inselanlage
- Doppelcarport mit elektrischem Rolltor zur Straße
- Hauswirtschaftsraum als Anbau mit ca. 14 m² Fläche
Lage
Kladow at it`s best: Die nahegelegene "Havel" und vor allem der vor der Tür liegende "Glienicker See" bieten eine Vielzahl an Freizeit und Erholungsmöglichkeiten. Ferner befinden sich im Umfeld verschiedene Sportanlagen, wie z.B. Tennisplätze, Golfanlage sowie alles um den "Wassersport". Vorteil dieser Wohnlage: Zum Einkaufen und zur Schule sind es gerademal ein paar Minuten mit dem Auto oder dem Fahrrad...
Der Ortsteil Kladow verfügt ferner über ein neues Einkaufszentrum sowie die vielfältigsten Nahversorgungsmöglichkeiten rund um den alten Kladower Ortskern. Ferner befinden sich hier Ärzte fast aller Fachrichtungen, Banken, eine Post und ein Bürgeramt sowie das Krankenhaus "Havelhöhe". Frisch vom Bauernhof gibt es hier auch. An diversen Orten in Kladow kann man regionales Obst und Gemüse, Fleisch und Milchprodukte erwerben.
Der "Kladower Damm" und die "Potsdamer Chaussee" bieten eine relativ gute Verkehrsanbindung an die "Altstadt Spandau" mit S- und U-Bahn-Anschluss und diversen Buslinien. Über die "Heerstraße" gelangt man mit Bus oder PKW in die Berliner City.
Über die Fähre kommt man nach Zehlendorf und kann von dort aus mit der S-Bahn weiterfahren.
Sonstige Angaben
Die Beheizung der Immobilie erfolgt über eine Öl-Heizung aus dem Jahr 1998, diese versorgt das Haus mit Wärme für die Fußbodenheizung, gleichzeitig wird die Warmwasseraufbereitung zentral über die Heizanlage sichergestellt. Die Kombination aus Fußbodenheizung, der hochwertigen Aufsparrendämmung im Dach und der Gebäudehülle mit der Solaranlage ermöglicht ein energetisch zeitgemäßes Wohnen.
Auf dem Grundstück sind 2 Stellplätze unter dem Carport vorgesehen, aufgrund der Größe mit weiteren Unterstellmöglichkeiten. Auf dem Grundstück wurde bereits eine Wall-Box für die E-Auto-Generation installiert.
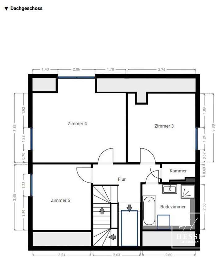
Grundriss
Grundriss EG
>
>
Grundriss DG
>
>
Adresse
14089 Berlin
Interessante Orte
Preis- und Lageinformationen
Preistrend für Bestandsimmobilien in Kladow (Spandau)