Das Grundstück mit seinem Bestandsgebäude befindet sich im B-Plan Nr. 08 der Stadt Zurow/OT Nakenstorf. Die insgesamt 56 Einheiten dieses B-Plans sind nach WEG aufgeteilt.
1995 wurde das Einzelobjekt "Wirtschaftsgebäude" in eine Untergemeinschaft mit 49 Teileinheiten geteilt. Hierzu wurde 1995 ein Bauantrag gestellt, welcher nicht genehmigt werden konnte. In diesem wurde versucht, dass Dach des Objektes aufzustocken, was jedoch aus statischen Gründen nicht möglich ist.
Gemäß B-Plan ist für das "Wirtschaftsgebäude" die besondere Nutzung ausschließlich als "Feriennutzung" vorgeschrieben. Insofern kommt als zukünftige Nutzung nur ein Hotel-/Appartementbetrieb in Frage oder klassisch Ferienwohnungen.
Auf dem Grundstück sind als Sondernutzungsfläche 16 Parkplätze ausgewiesen. Weitere Parkplätze können ggf. zusätzlich erworben werden.
Neben der Bestandseinheit 39 der Teilungserklärung wird hier ein vollständiges Projekt inklusive eines 3D-Revit-Modells für 22 Ferienwohnungen mit Nebennutzung mit veräußert. Die bestehende Teilungserklärung ist dahingehend zu ändern. Ein Bauantrag ist aktuell nicht gestellt.
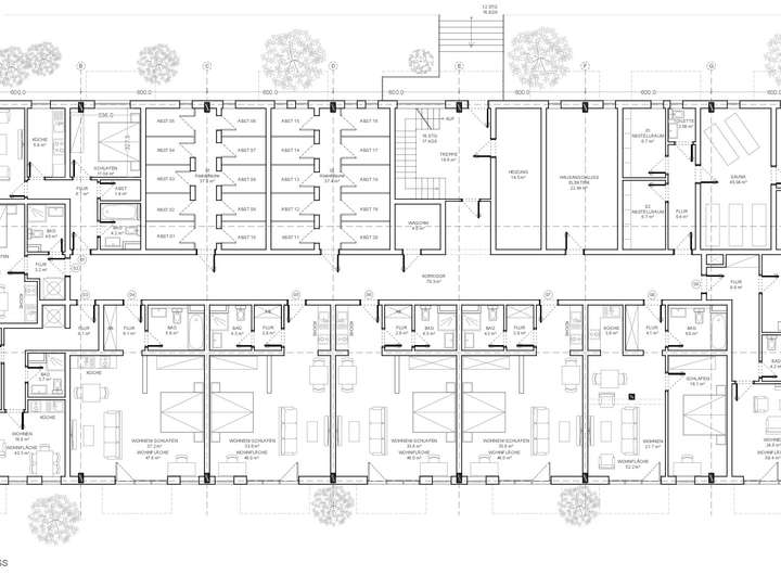
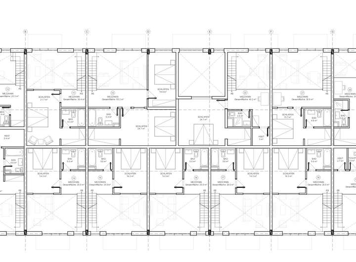
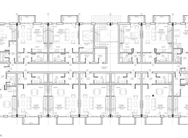
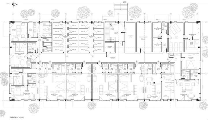
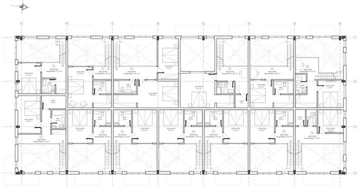
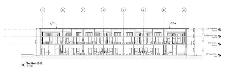
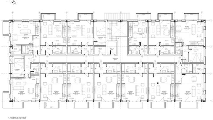
Die Projektierung sieht hier die Errichtung von 22 Ferienwohnungen vor, wobei sich 9 Wohnungen im Erdgeschoss und 13 Maisonette-Wohnungen im Obergeschoss befinden. Die Wohnflächen betragen zwischen ca. 31 m² und 115 m². Ein Saunabereich im Erdgeschoss, mit einer Fläche von ca. 90 m², rundet das Angebot ab.
Die Bausubstanz des Objektes ist aufgrund der damaligen Bauart in Hallenstruktur in einem sehr guten Zustand. Große horizontale und vertikale Betonträger tragen das Betondach. Die Decke zwischen Erdgeschoss und Obergeschoss ist eine Massivdecke.
Zukünftige Ferienanlage am Neuklostersee für Feriennutzung (projektiert)
23992 Zurow
Die vollständige Adresse der Immobilie erhalten Sie vom Anbieter.
Auf Karte anzeigen
Die vollständige Adresse der Immobilie erhalten Sie vom Anbieter.
Finanzierungszertifikat
In nur zwei Minuten zu Ihrem persönlichen Finanzierungszertifkat.
Infos
| Vermarktungsart | Kaufen |
|---|---|
| Grundstücksfläche | 2.000 m2 |
| Erschließung | Erschlossen |
| Empfohlene Nutzung | Mehrfamilienhaus |
| Bebaubar nach | Bebauungsplan |
| Verfügbar ab | Oktober 2025 |
Kosten
| Miete pro Jahr |
595.000 € |
|---|
Finanzierungsrechner:
Kaufpreis:
600.000 €
Eigenkapital:
600.000 €
Monatliche Rate
0 €
Effektiver Jahreszins
0 %
Sollzinsbindung
10 Jahre
Beschreibung des Objekts
Lage
In der Geschichte bestand Nakenstorf aus 5 Bauernställen. In den 50er und 60er Jahren des 20. Jahrhunderts begann zu DDR-Zeiten die touristische Entwicklung mit kleinen Ferienlauben und Bungalows. In der Folge wurden verschiedene Ferienobjekte von VEB-Betrieben errichtet und eine Vielzahl von Ferienhäusern. Der Ort ist seit ca. 60 Jahren ausschließlich touristisch geprägt. Nach der Wende wurden die Bebauungen in verschiedene B-Pläne gefasst. Herausragend ist die Errichtung des Inselhotels mit vielen nationalen Auszeichnungen und einem erstklassigen Restaurantbetrieb. Insofern ist die Entwicklung des angebotenen Projektes mit "Ferienappartements/ Ferienwohnungen" in direkter See-Lage der prädestinierte Vermarktungsansatz.
Zurow, mit ihrem Ortsteil Nakenstorf, ist eine Gemeinde im Osten des Landkreises Nordwestmecklenburg in Mecklenburg-Vorpommern (Deutschland). Die südöstlich der Hansestadt Wismar gelegene Gemeinde wird vom Amt Neukloster-Warin mit Sitz in der Stadt Neukloster verwaltet. Zurow befindet sich inmitten des Städtedreiecks Wismar-Schwerin-Rostock.
Das Gemeindegebiet Zurows liegt im Übergangsbereich vom Hügelland östlich der Wismarer Bucht zum äußersten Nordwesten der Sternberger Seenplatte. Die von drei kleinen Seen umgebene Gemeinde ist etwa elf Kilometer von der Hansestadt Wismar entfernt.
Durch die Lage nahe der Bundesautobahn A20 (ca. 10 km) mit direkter Anschlussstelle ist Zurow an das überregionale Straßennetz angeschlossen. Die nächsten Bahnhöfe befinden sich in Hornstorf und Wismar. Zurow liegt an der Busstrecke Wismar-Neukloster-Blankenberg und wird täglich mehrfach durch die Linien von Nahbus angefahren.
Einkaufsmöglichkeiten für den täglichen Bedarf sind im Ort vorhanden. Schulen und Universitätskrankenhäuser befinden sich in Wismar und der Landeshauptstadt Schwerin.
Sonstige Angaben
Das Angebot ist freibleibend.
Das Objekt wird für den Käufer provisionsfrei angeboten.
Für weitere Fragen stehen wir Ihnen selbstverständlich gern zur Verfügung.
WIR FREUEN UNS AUF SIE!
Grundriss
Grundrisse_FEWO_EG_Planung
>
>
Grundrisse_FEWO_ZG_Planung
>
>
Grundrisse_FEWO_OG_Planung
>
>
Schnitte_A-A
>
>
Schnitte_B-B
>
>
Schnitte_C-C
>
>