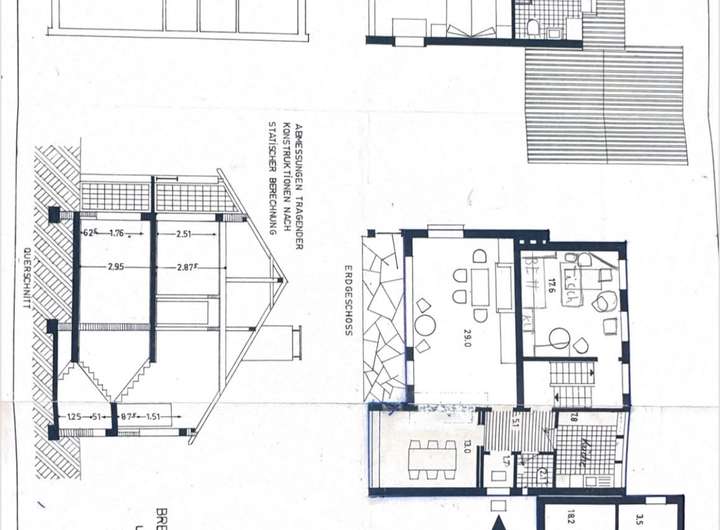
Wir verkaufen unser Elternhaus. Das teilunterkellerte Einfamilienhaus umfasst eine Wohnfläche von rd. 143qm, die sich auf ein EG und ein OG bzw. DG (Split-Level) verteilt. Der Spitzboden ist über eine schöne fest installierte Holztreppe zugänglich und teilweise ausgebaut. Die Zimmer sind aufgrund der großen Fenster schön hell und die Wohnräume im Erdgeschoss überzeugen durch eine Raumhöhe von 2,70m. Das Objekt wurde sukzessive instandgehalten, dabei wurden u.a. neue Kunststoffrahmenfenster eingebaut (1991), die Gasheizung erneuert (BJ 2008) und das Badezimmer im OG/DG saniert (ca. 2005). Darüber hinaus befindet sich im EG ein schöner gemauerter Kamin. Die Warmwasserversorgung erfolgt über Durchlauferhitzer. Die Decken sind teilweise mit einer Holzvertäfelung verkleidet und als Bodenbelag sind im Wesentlichen Fliesen und Teppich verlegt, wobei sich im Wohnzimmer unter dem Teppichboden Parkett befindet. Die Einzelgarage verfügt ebenfalls über einen Spitzboden. Der Garten ist gepflegt und fasst das uneinsehbare Grundstück schön ein.
Freistehendes Einfamilienhaus in Sackgassenlage mit umlaufenden Garten OHNE MAKLER
Alois-Senefelder-Straße 16,
28357 Bremen
Auf Karte anzeigen

Finanzierungszertifikat
In nur zwei Minuten zu Ihrem persönlichen Finanzierungszertifkat.
Infos
Haustyp | Einfamilienhaus |
---|---|
Etagenzahl | 2 |
Wohnfläche ca. | 143 m2 |
Grundstücksfläche | 458 m2 |
Bezugsfrei ab | Ab sofort bezugsfrei |
Zimmer | 6 |
Badezimmer | 1 |
Garage/Stellplatz | Garage |
Anzahl Garage/Stellplatz | 1 |
Kosten
Kaufpreis |
495.000 € |
---|---|
Provision | Nein |
Finanzierungsrechner:
Kaufpreis:
600.000 €
Eigenkapital:
600.000 €
Monatliche Rate
0 €
Effektiver Jahreszins
0 %
Sollzinsbindung
10 Jahre
Bausubstanz & Energieausweis
Baujahr | 1960 |
---|---|
Letzte Sanierung | 2008 |
Bauphase | Haus fertig gestellt |
Objektzustand | Gepflegt |
Qualität der Austattung | Normal |
Heizungsart | Gas-Heizung |
Wesentliche Energieträger | Gas, Strom |
Energieausweis | liegt vor |
Energieausweistyp | Bedarfsausweis |
Energieverbrauchskennwert | 300,0 kWh/(m²*a) |
Energieeffizienzklasse | H |
300,0
kWh/(m²*a)
Energieeffizienzklasse H
- A+
- A
- B
- C
- D
- E
- F
- G
- H
- 0
- 25
- 50
- 75
- 100
- 125
- 150
- 175
- 200
- 225
- >250
Beschreibung des Objekts
Lage
Das Haus liegt im schönen Stadtteil Horn-Lehe am Ende einer kleinen Sackgasse mit allen Einrichtungen des täglichen Bedarfs in Fußnähe. Grundschule und Kindergarten sind auch zu Fuß gut zu erreichen. Weiterführende Schulen in 2km Entfernung. Ärzte und Apotheken sind ebenfalls fußläufig zu erreichen.
Adresse
Alois-Senefelder-Straße 16, 28357 Bremen
Interessante Orte
Preis- und Lageinformationen
Preistrend für Bestandsimmobilien in Lehesterdeich