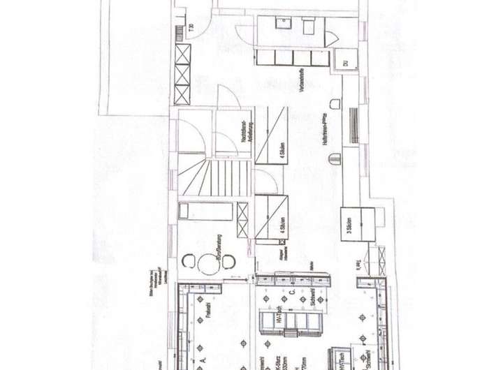
***Provisionsfrei! Bauvorbescheid für eine Umnutzung zu Wohnzwecken (angefragt für 4 Wohnungen) liegt vor!*** Die straßenseitig mit charmanten Schaufenstern ausgestattete und barrierefrei erreichbare Gewerbefläche im Erdgeschoss dieses gepflegten Wohn- und Geschäftshauses aus dem Jahr 1957 im Zentrum von Lastrup wurde bisher als Apotheke genutzt. Die in der Kirchstraße 3 gelegenen Geschäftsräume wurden zuletzt im Jahr 2009 umgebaut und in den heutigen Zustand versetzt. Auf ca. 143 Quadratmetern befinden sich der ehemalige Verkaufsraum, ein offener Arbeitsbereich, ein Beratungszimmer/Besprechungsraum, das ehemalige Labor, ein großzügiger Aufenthalts- bzw. Sozialraum sowie ein Duschbad mit WC. Die Räume der ehemaligen Apotheke sind noch vollständig eingerichtet. Denkbar erscheint eine Nutzung als Laden, Praxis, Therapieräume, Kanzlei, Büro oder Wohnung (vorherige Abstimmung mit der Bauaufsichtsbehörde erforderlich). Sowohl vom Aufenthaltsraum (ehemals Wohnzimmer) als auch vom Labor (ehemals Küche) gelangt man auf die rückseitig gelegene große Terrasse, die zum Verweilen einlädt. Von ihr blickt man in einen kleinen naturbelassenen Garten, in dem Sie nach Ihren Vorstellungen einen Rückzugsort gestalten können. Das Obergeschoss ist durch ein separates Treppenhaus begehbar. Die 5 Zimmer der 101 Quadratmeter umfassenden Wohnung wurden zuletzt als Büro- und Lagerräume genutzt und sollten - ebenso wie das Badezimmer mit Dusche und Badewanne - vor einer erneuten Nutzung als Wohnung renoviert werden. Aufgrund ihrer Größe und des gelungenen Zuschnitts der Zimmer kann hier problemlos eine ganze Familie ihr neues Zuhause finden. Der Dachboden, der weiteren Stauraum bietet, ist vom Obergeschoss aus über eine Treppe zu erreichen. Das Gebäude ist teilunterkellert. Vier Räume erstrecken sich auf ca. 51 Quadratmetern. Hier sind sowohl der Heizungskeller der Zentralheizung als auch weitere Lagerräume zu finden. Auf dem Grundstück von insgesamt 478 Quadratmetern befinden sich zudem eine Garage und ein PKW-Stellplatz. Der Verkauf erfolgt privat, sodass keine Maklerprovision anfällt. Die Immobilie ist zur Zeit leerstehend und kann kurzfristig übernommen werden.
*Provisionsfrei!* Wohnhaus/Geschäftshaus im Zentrum von Lastrup
Kirchstraße 3,
49688 Lastrup
Auf Karte anzeigen

Finanzierungszertifikat
In nur zwei Minuten zu Ihrem persönlichen Finanzierungszertifkat.
Infos
Haustyp | Mehrfamilienhaus |
---|---|
Etagenzahl | 2 |
Wohnfläche ca. | 244 m2 |
Grundstücksfläche | 478 m2 |
Bezugsfrei ab | sofort |
Zimmer | 8 |
Garage/Stellplatz | Garage |
Anzahl Garage/Stellplatz | 1 |
Kosten
Kaufpreis |
255.000 € |
---|---|
Provision | Nein |
Finanzierungsrechner:
Kaufpreis:
600.000 €
Eigenkapital:
600.000 €
Monatliche Rate
0 €
Effektiver Jahreszins
0 %
Sollzinsbindung
10 Jahre
Bausubstanz & Energieausweis
Baujahr | 1957 |
---|---|
Bauphase | Haus fertig gestellt |
Energieausweis | liegt zur Besichtigung vor |
Beschreibung des Objekts
Ausstattung
Terrasse, Garten, Keller, Vollbad, Duschbad, Gäste-WC
Lage
Die Immobilie liegt in zentraler Ortslage von Lastrup im Bereich des Sanierungsgebiets des Ortskerns. Da rückwärtig an das Grundstück das Schulzentrum der Gemeinde mit einer Grund- und einer Oberschule angrenzt, eignet sie sich besonders für Familien. Dorfpark, Rathaus, Marktplatz, Kirchen, Ärzte sowie Verbrauchermärkte finden sich ebenfalls in fußläufiger Entfernung. Die sich dynamisch entwickelnde Gemeinde Lastrup liegt im Süden des Landkreises Cloppenburg und verfügt über eine sehr gute Versorgung mit allen Dingen des täglichen Bedarfs sowie Ärzte, Kindergärten, Schulen und Sportstätten. Die Stadt Löningen ist mit dem Auto in ca. 12 Minuten, die Kreisstadt Cloppenburg in ca. 18 Minuten zu erreichen. Bis Oldenburg fahren Sie rund 48 Minuten. Die nächstgelegenen Bahnhöfe finden sich in Essen (Oldb.) und Cloppenburg. Infrastruktur (im Umkreis von 5 km): Apotheke, Lebensmittel-Discount, Allgemeinmediziner, Kindergarten, Grundschule, Hauptschule, Realschule, Öffentliche Verkehrsmittel
Sonstige Angaben
Energieausweis nicht vorhanden ohne-makler (OM) ist weder Anbieter noch Vermittler der Immobilie. OM betreibt eine Plattform für Immobilieneigentümer, die unter anderem die gleichzeitige Veröffentlichung einzelner Inserate auf mehreren Immobilienportalen ermöglicht. Die Inhalte dieser Inserate werden ausschließlich von Dritten verantwortet. Für die Richtigkeit, Vollständigkeit oder Rechtmäßigkeit der Angaben übernimmt OM keine Haftung. Hinweise auf mögliche Rechtsverstöße können jederzeit gemeldet werden und werden nach Prüfung umgehend bearbeitet.
Grundriss
Grundriss Erdgeschoss
>

Grundriss Obergeschoss
>

Adresse
Kirchstraße 3, 49688 Lastrup
Interessante Orte
Preis- und Lageinformationen
Preistrend für Bestandsimmobilien in Lastrup