Tauchen Sie ein in den Charme einer stilvollen Villa aus dem Jahr 1937 – in einer der begehrtesten Lagen Stralsunds, direkt am Knieperdamm, mit herrlichem Blick auf den Knieperteich. Dieses architektonische Juwel vereint zeitlose Eleganz mit vielseitigen Nutzungsmöglichkeiten und bietet Raum für individuelle Lebensträume.
Schon beim Eintreten spüren Sie den Charakter vergangener Zeiten: Ein gemauerter Rundbogen und eine schwere Holztür öffnen den Weg in eine Atmosphäre, die Geschichte atmet. Der Flur mit freiem Blick auf das originale Balkenwerk unterstreicht den authentischen Charme des Hauses.
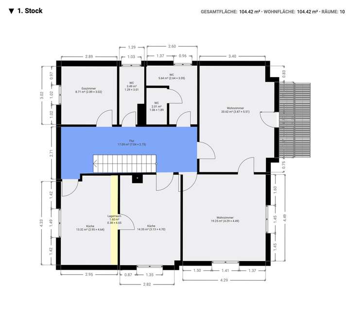
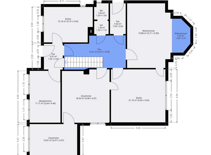
Auf vier Etagen verteilen sich insgesamt 12 Räume – eine beeindruckende Vielfalt, die zahlreiche Nutzungskonzepte zulässt. Großzügige, lichtdurchflutete Zimmer mit teils originalem Fischgrätparkett eignen sich ideal als repräsentative Kanzlei, stilvolles Büro oder moderne Arztpraxis. Das Erdgeschoss mit ca. 100 m² Fläche könnte gewerblich oder für Wohngenutzt werden, während die oberen Etagen als private Wohnräume oder separate Einheiten dienen könnten. Die nötigen Anschlüsse für Bäder und Küchen sind vorhanden, bedürfen jedoch einer zeitgemäßen Erneuerung.
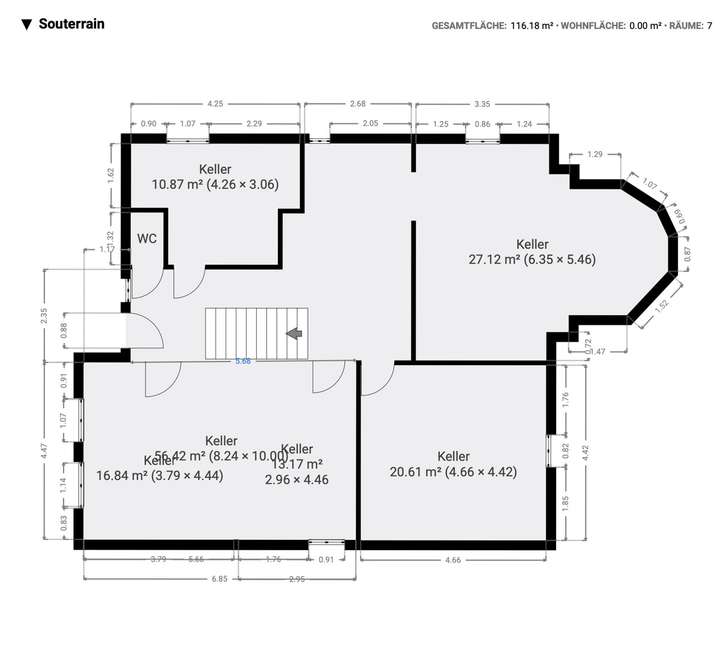
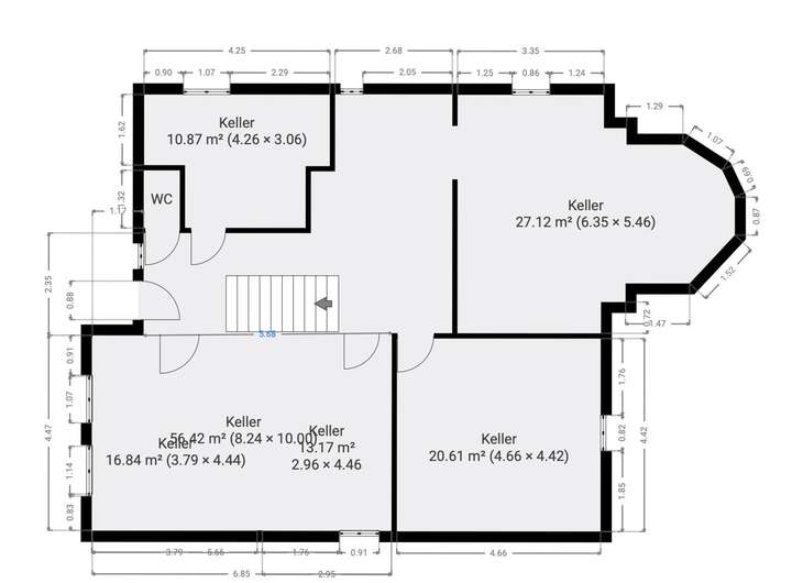
Ein weiteres Highlight ist das ungewöhnlich großzügige Kellergeschoss: Viel Platz für Lager, Werkstatt, oder Ausbau – selten in dieser Form und Ausdruck des besonderen Charakters der Villa. Charmante architektonische Details wie der runde Erker und der Balkon im Erdgeschoss verleihen dem Haus zusätzliche Ausstrahlung und historischen Reiz.
Das 616 m² große Grundstück bietet darüber hinaus Raum für individuelle Gestaltungsideen – etwa die Anlage eines liebevoll bepflanzten Gartens oder geschützter Außenbereich.
Diese Immobilie ist weit mehr als ein Gebäude – sie ist eine Gelegenheit. Ob als Gewerbe / Wohn oder als renditestarke Investition: Die Verbindung aus Historie, Lage und Flexibilität macht sie zur idealen Basis für kreative Konzepte, die Vergangenheit und Moderne stilvoll vereinen.
Repräsentative Villa am Knieperteich // Top-Lage
18439 Stralsund
Die vollständige Adresse der Immobilie erhalten Sie vom Anbieter.
Auf Karte anzeigen
Die vollständige Adresse der Immobilie erhalten Sie vom Anbieter.
Finanzierungszertifikat
In nur zwei Minuten zu Ihrem persönlichen Finanzierungszertifkat.
Infos
| Haustyp | Villa |
|---|---|
| Etagenzahl | 4 |
| Wohnfläche ca. | 270 m2 |
| Grundstücksfläche | 616 m2 |
| Zimmer | 12 |
Kosten
| Kaufpreis |
650.000 € |
|---|---|
| Provision |
Käufercourtage (50% der Gesamtcourtage) in Höhe von 3,57 % (inkl. Mwst) vom Kaufpreis |
Finanzierungsrechner:
Kaufpreis:
600.000 €
Eigenkapital:
600.000 €
Monatliche Rate
0 €
Effektiver Jahreszins
0 %
Sollzinsbindung
10 Jahre
Bausubstanz & Energieausweis
| Baujahr | 1937 |
|---|---|
| Heizungsart | Zentralheizung |
| Wesentliche Energieträger | Gas |
Beschreibung des Objekts
Ausstattung
// Baujahr 1937: Charaktervolle Villa mit historischem Flair und solider Substanz
// Toplage in Stralsund am Knieperdamm
// Vier Etagen mit insgesamt 12 Räumen
// Großzügiger Grundriss mit beeindruckender Flächenvielfalt
// Repräsentative Raumhöhen und Lichteinfall
// Teilweise originales Fischgrätparkett
// Nutzungspotenzial für Wohn oder Gewerbe
// Bestehende Anschlüsse für Küchen und Bäder auf allen Etagen (jedoch modernisierungsbedürftig)
// Großzügiges Kellergeschoss sowie vorhandene Abstellkammern
// Architektonische Details wie der gemauerte Rundbogen am Eingang, eine schwere Holztür, freigelegtes Balkenwerk, ein runder Erker sowie ein Balkon im Erdgeschoss
// 616 m² Grundstück
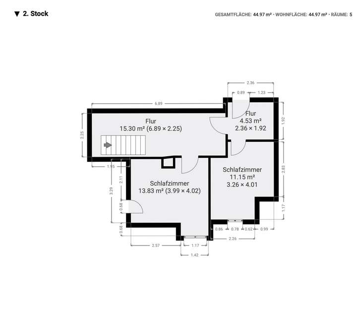
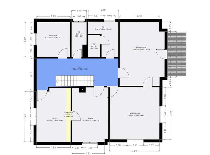
Die genaue Raumaufteilung ist im Grundriss ersichtlich.
Lage
Die Villa befindet sich in prominenter Lage am Knieperdamm – einer der repräsentativsten Adressen Stralsunds. Die unmittelbare Nähe zur Altstadt, kombiniert mit dem Blick auf den Knieperteich, schafft ein Umfeld, das sowohl Ruhe als auch urbane Qualität vereint. Für Kanzleien, Praxen oder andere anspruchsvolle Nutzungen bietet dieser Standort optimale Voraussetzungen: Die gute Erreichbarkeit für Mandanten, Klienten oder Patienten ist ebenso gegeben wie eine Adresse mit Ausstrahlung.
Der Zugang ist unkompliziert – sowohl mit dem Auto als auch per ÖPNV. Parkmöglichkeiten befinden sich im direkten Umfeld, ebenso wie Bushaltestellen. Gleichzeitig profitiert man von einer Umgebung, die Professionalität ausstrahlt: Gepflegte Grünanlagen, der direkte Blick ins Wasser, historische Bausubstanz – alles in Laufnähe zur Altstadt, aber mit der nötigen Distanz zum Trubel. Gerade für beratende Berufe oder medizinische Einrichtungen ist das Zusammenspiel aus Diskretion, Zugänglichkeit und Atmosphäre ein echter Standortvorteil.
Auch für private Mieter, die das Besondere schätzen, ist die Lage äußerst attraktiv. Der Blick ins Grüne, die Nähe zum Wasser sowie das Umfeld aus Kultur, Gastronomie und Naherholung bieten eine außergewöhnliche Wohnqualität. Die Villa liegt ruhig, aber nicht abgeschieden – ideal für alle, die zentrales Wohnen mit einem hohen Maß an Privatsphäre und stilvollem Ambiente verbinden möchten. Spaziergänge am Knieperteich, kurze Wege in die Altstadt und das architektonisch reizvolle Umfeld machen diese Adresse zu einem Ort mit spürbarer Lebensqualität.
Sonstige Angaben
Alle Informationen aus dem Exposé wurden durch den Eigentümer übermittelt. Trotz sorgfältiger Prüfung der Angaben können wir keine Haftung übernehmen.
Die Käufercourtage (gleiche Höhe wie Verkäufercourtage) in Höhe von 3,57 % inkl. der aktuell geltenden Mehrwertsteuer wird direkt nach Abschluss des Kaufvertrages fällig.
Weitere Fragen zu dem Thema können Sie gerne persönlich an uns richten.
---
Wir sind Meer.Ostsee Immobilien – Ihr erfahrener Immobilienmakler in Stralsund, Rügen und Umgebung. Als Makler mit regionaler Expertise begleiten wir Sie bei allen Fragen rund um Ihre Immobilie – von der präzisen Wertermittlung über den Traum vom Eigenheim an der Ostseeküste bis hin zum erfolgreichen Verkauf Ihres Hauses. Mit Fachwissen, Leidenschaft und einem starken Netzwerk sorgen wir als Makler dafür, dass Ihre Immobilie an der Ostsee optimal betreut wird.
Grundriss
Grundriss // EG
>
>
Grundriss // OG
>
>
Grundriss // DG
>
>
Grundriss // Keller
>
>
Adresse
18439 Stralsund
Interessante Orte
Preis- und Lageinformationen
Preistrend für Bestandsimmobilien in Altstadt