Willkommen zu Ihrem neuen Zuhause oder Ihrer nächsten Investition! Dieses charmante 2-Familienhaus in Egweil vereint historische Bauweise mit modernem Ausbaupotenzial und bietet vielfältige Nutzungsmöglichkeiten in einer begehrten Lage.
Objektbeschreibung:
Das im Jahr 1936 erbaute und im Laufe der Jahre erweitere Haus wurde 1965 angebaut und 1995 aufgestockt. Mit einer großzügigen Wohnfläche von insgesamt ca. 210 m² auf zwei Ebenen bietet es Raum für Familien, Wohngemeinschaften oder eine attraktive Vermietungsmöglichkeit.
Die Immobilie ist aufgeteilt in zwei separate Wohneinheiten:
Erdgeschoss-Wohnung: Seit ca. 2021 unbewohnt und renovierungsbedürftig ideal für individuelle Gestaltungsmöglichkeiten oder eine zukünftige Nutzung.
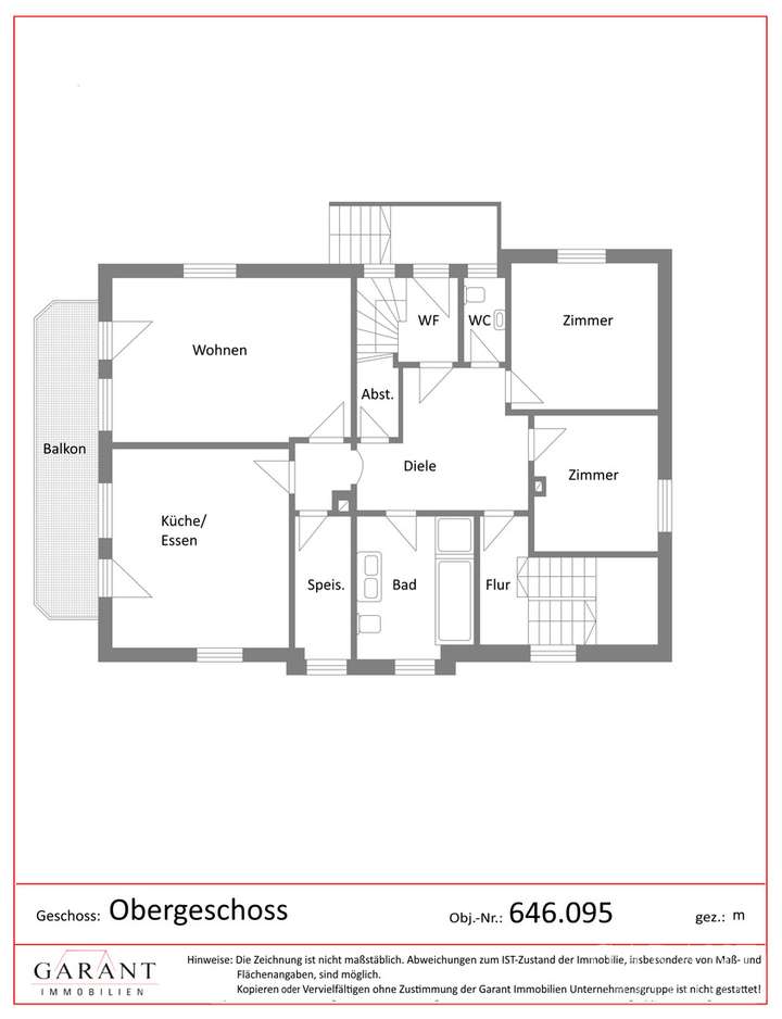
Obergeschoss-Wohnung: Bereits renoviert und vermietet, mit einem schönen Balkon und einer Dachterrasse perfekt für entspannte Stunden im Freien und eine attraktive Mietrendite.
Raumaufteilung & Ausbaupotenzial:
Die beiden Wohnungen sind auf zwei Ebenen verteilt, mit einer Gesamtwohnfläche von ca. 210 m².
Das Dachgeschoss bietet die Möglichkeit, zusätzlich ausgebaut zu werden, um eine dritte Wohneinheit zu schaffen ideal für Mehrgenerationenwohnen oder zusätzliche Vermietungseinnahmen.
Ausstattung & Besonderheiten:
Grundstück: ca. 770 m² großes Grundstück mit einem wunderschönen, großen Garten perfekt für Familien, Gartenliebhaber oder Freizeitaktivitäten im Freien.
Heizung: Öl-Zentralheizung mit Kaminanschluss für wohlige Wärme an kalten Tagen.
Fenster: Großteil der Fenster wurde 2020 erneuert, was Energieeffizienz und Komfort erhöht.
Nebenräume: Werkstatt, Heizraum und Räucherkammer bieten zusätzlichen Stauraum und Nutzungsmöglichkeiten.
Parkmöglichkeiten: Zwei Garagen und ein Stellplatz sorgen für ausreichend Parkkomfort.
Attraktives 2-Familienhaus in Egweil - Viel Potenzial für Investoren und Familien
85116 Egweil
Die vollständige Adresse der Immobilie erhalten Sie vom Anbieter.
Auf Karte anzeigen
Die vollständige Adresse der Immobilie erhalten Sie vom Anbieter.
Finanzierungszertifikat
In nur zwei Minuten zu Ihrem persönlichen Finanzierungszertifkat.
Infos
| Haustyp | Mehrfamilienhaus |
|---|---|
| Etagenzahl | 2 |
| Wohnfläche ca. | 210 m2 |
| Grundstücksfläche | 770 m2 |
| Bezugsfrei ab | nach Vereinbarung |
| Zimmer | 6 |
| Schlafzimmer | 4 |
| Badezimmer | 2 |
| Garage/Stellplatz | Garage |
| Anzahl Garage/Stellplatz | 2 |
Kosten
| Kaufpreis |
577.000 € |
|---|---|
| Provision |
4,76 % inkl. ges. MwSt. Die Maklercourtage für den Käufer beträgt 4 % aus dem Kaufpreis zuzüglich der gesetzlichen MwSt., somit gesamt 4,76 %. |
Finanzierungsrechner:
Kaufpreis:
600.000 €
Eigenkapital:
600.000 €
Monatliche Rate
0 €
Effektiver Jahreszins
0 %
Sollzinsbindung
10 Jahre
Bausubstanz & Energieausweis
| Baujahr | 1940 |
|---|---|
| Letzte Sanierung | 1995 |
| Objektzustand | Gepflegt |
| Qualität der Austattung | Normal |
| Heizungsart | Zentralheizung |
| Wesentliche Energieträger | Öl |
| Energieausweis | liegt vor |
| Energieausweistyp | Verbrauchsausweis |
| Energieverbrauchskennwert | 76,4 kWh/(m²*a) |
| Energieeffizienzklasse | C |
76,4
kWh/(m²*a)
Energieeffizienzklasse C
- A+
- A
- B
- C
- D
- E
- F
- G
- H
- 0
- 25
- 50
- 75
- 100
- 125
- 150
- 175
- 200
- 225
- >250
Beschreibung des Objekts
Ausstattung
* Grundstück: ca. 770 m² großes Grundstück mit großem Garten,
ideal für Familien, Gartenliebhaber oder Freizeitaktivitäten
* Baujahr: 1936, Erweiterungen 1965 und 1995
* Wohnfläche: ca. 210 m² auf zwei Ebenen
* Aufteilung: Zwei separate Wohneinheiten
(Erdgeschoss und Obergeschoss)
* Erdgeschoss-Wohnung: Seit ca. 2021 unbewohnt,
renovierungsbedürftig, flexible Gestaltungsmöglichkeiten
* Obergeschoss-Wohnung: Renoviert, vermietet, mit Balkon
und Dachterrasse
* Raumaufteilung: Zwei Ebenen, Ausbaupotenzial im Dachgeschoss
für eine dritte Wohneinheit
* Heizung: Öl-Zentralheizung mit Kaminanschluss
* Fenster: Großteil 2020 erneuert (Energieeffizienz und Komfort)
- Erdgeschoss 3-fachverglasst Kunststoff
- Obergeschoss 2-fachverglasst Holz
* Nebenräume: Werkstatt, Heizraum, Räucherkammer
* Parkmöglichkeiten: Zwei Garagen und ein Stellplatz
* teilweise Fußbodenheizung
* Holzdecken mit Deckenspots
* Einbauschkank im Flur Obergeschoss
* Zisterne
* Besonderheiten:
- Balkon und Dachterrasse mit Blick ins Grüne
- Historischer Charme kombiniert mit modernem Ausbaupotenzial
Lage
Egweil ist eine idyllische Gemeinde, die vor allem durch ihre ruhige und familienfreundliche Atmosphäre besticht. In der Umgebung findest du zahlreiche Einkaufsmöglichkeiten, die bequem mit dem Auto erreichbar sind. Dazu gehören Supermärkte, Bäckereien, Apotheken und weitere Geschäfte für den täglichen Bedarf, die sich in den nahegelegenen Orten wie Nassenfels befinden.
Für Familien mit Kindern ist Egweil sehr attraktiv, da es eine gute Auswahl an Schulen und Kindergärten in der näheren Umgebung gibt. Die Grundschule ist in ca 1 Km entfernten Nassenfelsvorhanden, was den Schulweg für die Jüngsten sehr kurz macht. Weiterführende Schulen, wie Realschulen oder Gymnasien, sind in den umliegenden Städten Neuburg und Eichstätt gut erreichbar, meist innerhalb kurzer Fahrzeit.
In Egweil selbst gibt es einen Kindergarten und eine Bäckerei.
Die Verkehrsanbindung ist ebenfalls sehr gut: Die Gemeinde liegt verkehrsgünstig an wichtigen Straßen, die schnelle Verbindungen ermöglichen. Auch die Anbindung an den öffentlichen Nahverkehr ist vorhanden, sodass man bequem auch ohne Auto unterwegs sein kann.
Insgesamt bietet Egweil eine harmonische Kombination aus ländlicher Ruhe, einer guten Infrastruktur und einer freundlichen Gemeinschaft perfekt für Familien, die ein ruhiges Zuhause suchen, aber dennoch alle Annehmlichkeiten des Alltags in der Nähe haben möchten.
Sonstige Angaben
Energieverbrauchsausweis Energiekennwert: 76,40 kWh/(qm*a) Energieeffizienz: Klasse C (kl.100) Heizung: Zentralheizung mit Öl Baujahr laut Energieausweis: 1936
2 x Garage, 1 x Stellplatz außen
Highlights:
- Die Obergeschoss-Wohnung verfügt über einen Balkon
und eine Dachterrasse, die zum Verweilen im Freien einladen
und einen herrlichen Blick ins Grüne bieten.
- Das Haus verbindet den Charme einer historischen Substanz
mit modernem Ausbaupotenzial.
- Die Lage in Egweil bietet eine familienfreundliche Umgebung
mit guter Anbindung an die umliegenden Städte und Infrastruktur.
Vorteile auf einen Blick:
- Vielseitiges Nutzungspotenzial ideal für Familien,
Investoren oder Mehrgenerationenwohnen
- Renovierte Wohnung im Obergeschoss mit Balkon und
Dachterrasse
- Ausbaupotenzial im Dachgeschoss für eine dritte Wohneinheit
- großzügiger Garten für Freizeit und Erholung
- modernisierte Fenster seit 2020
- zwei Garagen und zusätzlicher Stellplatz
- Charmante, solide Bauweise mit historischem Charakter
Grundriss
neu Grundriss Erdgeschoss
>
>
Grundriss Obergeschoss
>
>
Grundriss Dachgeschoss
>
>
Adresse
85116 Egweil
Interessante Orte
Preis- und Lageinformationen
Preistrend für Bestandsimmobilien in Egweil