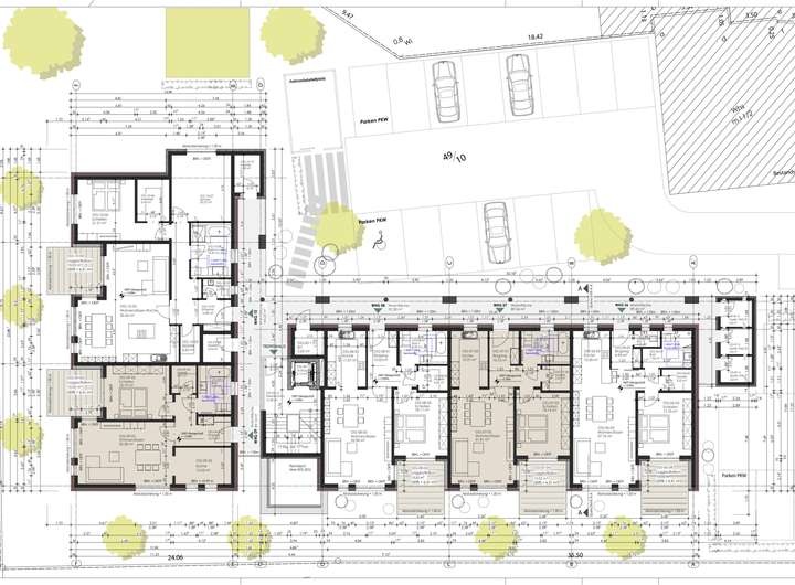
Das attraktive, mit einer Scheune bebauten Grundstück liegt in Kohlenfeld. Nach Freilegung des ca. 1.400 m² großen Grundstücks ist eine Bebauung mit einem MFH mit 12 Wohneinheiten und 18 Stellplätzen möglich. Insgesamt kann so eine Wohnfläche von ca. 1.400 m² realisiert werden. Eine Baugenehmigung liegt vor.
KOLENFELD: Projektiertes Grundstück mit 12 WE
31515 Wunstorf
Die vollständige Adresse der Immobilie erhalten Sie vom Anbieter.
Auf Karte anzeigen
Die vollständige Adresse der Immobilie erhalten Sie vom Anbieter.
Finanzierungszertifikat
In nur zwei Minuten zu Ihrem persönlichen Finanzierungszertifkat.
Infos
| Vermarktungsart | Kaufen |
|---|---|
| Grundstücksfläche | 2.800 m2 |
| Erschließung | Erschlossen |
| Empfohlene Nutzung | Mehrfamilienhaus |
| Bebaubar nach | Bebauungsplan |
| Verfügbar ab | sofort |
Kosten
| Miete pro Jahr |
850.000 € |
|---|---|
| Provision |
5,95% des notariell beurkundeten Kaufpreises inkl. MwSt. |
Finanzierungsrechner:
Kaufpreis:
600.000 €
Eigenkapital:
600.000 €
Monatliche Rate
0 €
Effektiver Jahreszins
0 %
Sollzinsbindung
10 Jahre
Beschreibung des Objekts
Lage
Wunstorf ist hervorragend angebunden an das überregionale Straßen-, Schienen- und Kanalnetz, der Flughafen Langenhagen liegt nur 20 Autominuten entfernt.
Durch die zwei Anschlussstellen Wunstorf-Luthe und Wunstorf-Kolenfeld ist Wunstorf mit der Autobahn A2 verbunden. Nur rund 4 km liegen zwischen diesen Anschluss-stellen und der Wunstorfer Innenstadt.
Über die sechsspurig ausgebaute A2 erreichen Sie die Landeshauptstadt Hannover in nur ca. 20-25 Minuten.
Der moderne Bahnhof Wunstorf befindet sich unmittelbar am Gewerbepark Wunstorf-Süd und ist an das moderne S-Bahnnetz der Region Hannover angeschlossen. Dank dieser Infrastruktur gelangen Berufspendler aus Hannover, Nienburg oder Minden bequem und sicher an ihre Arbeitsplätze in Wunstorf. Alle 20 bis 30 Minuten - in der Rushhour sogar alle 15 Minuten -fahren Züge in alle Richtungen. Mit dem Regionalexpress sind Sie in 18 Minuten am Hauptbahnhof Hannover.
Ergänzende Lageinformationen:
Das Mehrfamilienhaus liegt in einer ruhigen Straße der Ortschaft Kolenfeld in direkter Feldrandlage. Der Ortsteil ist nur wenige Kilometer vom Stadtzentrum Wunstorfs entfernt. Kolenfeld verfügt zwei DRK-Kitas sowie eine eigene Grundschule. Für den Besuch der weiterbildenden Schulen bietet Wunstorf in der Kernstadt mit dem Schulzentrum In der Barne, der IGS Wunstorf oder dem Hölty Gymnasium ein breit gefächertes Bildungsangebot.
Der Ortsteil verfügt über einen Edeka-Nahversorger mit Bäcker und Schlachter, es gibt zudem zwei Banken und einen Raiffeisenmarkt mit angeschlossener SB-Tankstelle. Weiterhin befindet sich das Gewerbegebiet Wunstorf-Süd mit zahlreichen Einkaufsmöglichkeiten in unmittelbarer Nähe. Über die Buslinie 760, die sich fast vor der Haustür befindet, erreicht man in kürzester Zeit die Wunstorf.
Sonstige Angaben
Möchten Sie mehr erfahren und das Grundstück besichtigen? Dann kontaktieren Sie uns bitte für Ihre individuelle Terminvereinbarung. Sie erreichen unser Büro unter 0511 - 8997020 oder Herrn Mark Steckmann direkt unter 0178 - 7823000.