OBJEKTBESCHREIBUNG:
In sonniger Südhanglage mit leichtem Gefälle, am ruhigen Rand einer gewachsenen Wohnbebauung entstehen in Germannsdorf/Stadt Hauzenberg attraktive Baugrundstücke zur individuellen Bebauung.
Die Grundstücke liegen im Baugebiet Germannsdorf-Nord II – einem Standort, welcher durch seine naturnahe Umgebung, beste Ausrichtung und hervorragende Infrastruktur überzeugt.
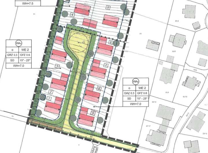
Insgesamt stehen mehrere erschlossene Grundstücke mit Größen von ca. 700 m² zur Verfügung. Hier haben Sie mit einem Wohngebäude (max. 2 Wohneinheiten) die Möglichkeit, Ihre persönlichen Wohnträume flexibel und großzügig zu realisieren.
Es besteht eine 5-jährige Bauverpflichtung.
Die Vorteile auf einen Blick:
• Südhanglage mit optimaler Sonneneinstrahlung und tollem Fernblick
• Ruhige, familienfreundliche Siedlungslage
• Grundstücke mit Größen von jeweils ca. 700 m²
• tolle Einkaufsmöglichkeiten - fußläufig erreichbar (Edeka direkt im Zentrum von Germannsdorf)
• neuer, großer Edeka-Einkaufsmarkt gerade in Entstehung (fußläufig erreichbar und direkt in Germannsdorf gelegen)
• Schule, Kindergarten, Pfarrheim sowie Kirche je fußläufig vom Baugebiet erreichbar
• Gesundhof Germannsdorf direkt in unmittelbarer Nähe und fußläufig erreichbar
- Zahnarzt, Allgemeinärzte, Apotheke
• tolles Gasthaus mit gut bürgerlicher Küche direkt im Ort ebenfalls fußläufig erreichbar
• sehr gute Bäckerei fußläufig erreichbar und ebenfalls direkt vor der Haustüre
• Naherholungsmöglichkeiten direkt vor der Haustüre - Wandermöglichkeiten z.B. zum Ruhmannsberg, Staffelberg
• Bademöglichkeiten Freudensee (ca. 10 Autofahrminuten), Rannasee (ca. 15 Autofahrminuten) entfernt
Ob für junge Familien, Ruhesuchende oder Bauherren mit Weitblick:
Germannsdorf bietet den idealen Rahmen für Ihr neues Zuhause.
Sonnige Wohnbaugrundstücke in toller Lage mit Fernblick
94051 Hauzenberg
Die vollständige Adresse der Immobilie erhalten Sie vom Anbieter.
Auf Karte anzeigen
Die vollständige Adresse der Immobilie erhalten Sie vom Anbieter.
Finanzierungszertifikat
In nur zwei Minuten zu Ihrem persönlichen Finanzierungszertifkat.
Infos
| Vermarktungsart | Kaufen |
|---|---|
| Grundstücksfläche | 700 m2 |
| Bebaubar nach | Bebauungsplan |
| Verfügbar ab | 2.2.2026 |
Kosten
| Miete pro Jahr |
136.500 € |
|---|---|
| Provision | Nein |
Finanzierungsrechner:
Kaufpreis:
600.000 €
Eigenkapital:
600.000 €
Monatliche Rate
0 €
Effektiver Jahreszins
0 %
Sollzinsbindung
10 Jahre
Beschreibung des Objekts
Lage
LAGEBESCHREIBUNG:
Die Wohnbaugrundstücke befinden sich in Germannsdorf, einem Ortsteil der Stadt Hauzenberg im niederbayerischen Landkreis Passau, nur etwa 4 km vom Stadtzentrum entfernt.
Germannsdorf bietet eine sehr gute Nahversorgung: Im Ort befinden sich ein EDEKA-Markt, eine hervorragende Bäckerei sowie eine Bankfiliale. Für Familien stehen eine Grundschule und ein Kindergarten zur Verfügung. Die medizinische Versorgung ist durch einen Gesundhof mit Zahnarzt, fünf Allgemeinärzten sowie einer Apotheke ausgezeichnet. Auch für das leibliche Wohl ist gesorgt – ein tolles Gasthaus mit warmer Küche auch wochentags befindet sich direkt im Ort.
Freizeit- und Erholungsmöglichkeiten bietet die naturnahe Umgebung mit dem nahegelegenen Ruhmannsberg und Staffelberg, die sich ideal für Wanderer und Radfahrer eignen. Für sommerliche Badeausflüge laden der Freudensee und der Rannasee in der Umgebung ein.
Zahlreiche tolle Ortsvereine sorgen zudem für ein lebendiges Gemeinschaftsleben und bieten ein vielfältiges gesellschaftliches Angebot.
Das Baugebiet ist hervorragend erschlossen – sämtliche wichtigen Einrichtungen des täglichen Bedarfs sind fußläufig erreichbar. Das Zentrum von Hauzenberg liegt nur etwa 10 Autominuten entfernt und bietet weitere Einkaufsmöglichkeiten, Bildungseinrichtungen und kulturelle Angebote.
Dank der ausgezeichneten Lage vereint das Baugebiet Germannsdorf-Nord II ruhiges, naturnahes Wohnen mit direkter Anbindung an die städtische Infrastruktur – ideal für Familien, Berufspendler und Ruhesuchende gleichermaßen.
Preis pro Quadratmeter 195 EUR