🌿 Ankommen & Wohlfühlen: Gepflegtes Einfamilienhaus in Bützow, bezugsfrei ab 11/2025 - provisionsfrei 🌿
Willkommen in Ihrem neuen Zuhause: Ein charmantes Einfamilienhaus (Bj. 1994) mit ca. 128 m² Wohnfläche auf einem sonnigen 542 m² Grundstück – perfekt für Familien, Paare oder alle, die Ruhe und Natur genießen möchten.
Eckdaten im Überblick:
🏡 Wohnfläche: ca. 128 m², Nutzfäche: 159,7 m²
🌳 Grundstück: 542 m², Bodenrichtwert - ca. 100 €/m² für Wohngebiet, Das Haus steht auf Pachtland, ca. 300€ Zins pro Jahr
🛠 Baujahr Haus: 1994, umfangreiche Investitionen seit 2022, kein Sanierungsstau
💶 Kaufpreis: 349.000 € (Privatverkauf, keine Provision)
📦 Bezugsfrei ab: November 2025
Highlights, die begeistern:
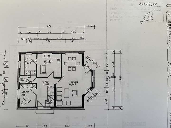
✨ Viel Platz – 5 Wohn- und Schlafräume, großzügiger Wohnbereich mit Erker und gemütlichem Kaminofen für behagliche Abende
✨ Moderne Küche mit hochwertigen BOSCH-Geräten
✨ Frisch modernisiert (2021/22): Böden, Türen, Heizkörper, Gäste-WC, Carport, Terrasse & Einfahrt
✨ Großzügiger Außenbereich – neu angelegte Terrasse (ca. 50 m²), Carport & Schuppen (je ca. 30 m², Stromkabel, auch für Wallbox, liegt an) gepflegter Garten mit viel Gestaltungspotenzial
✨ Solide Bausubstanz – Massivbau, Vollklinkerfassade, Kunststofffenster Doppelverglast (2016), Dach gereinigt & neu beschichtet (2022), neue Fernwärme-Station (2023) - kein Sanierungs-Stau
Das Zuhause für Ihre Familie:
Hier können Kinder unbeschwert im Garten spielen, während Sie auf der Terrasse entspannen oder mit Freunden gesellige Abende am Kamin verbringen. Das Haus bietet nicht nur viel Platz, sondern auch eine warme, einladende Atmosphäre, die sofort Geborgenheit ausstrahlt.
Gepflegtes Einfamilienhaus in Bützow, modernisiert & naturnah, ab November 2025 - provisionsfrei
18246 Bützow
Die vollständige Adresse der Immobilie erhalten Sie vom Anbieter.
Auf Karte anzeigen
Die vollständige Adresse der Immobilie erhalten Sie vom Anbieter.
Finanzierungszertifikat
In nur zwei Minuten zu Ihrem persönlichen Finanzierungszertifkat.
Infos
| Haustyp | Einfamilienhaus |
|---|---|
| Etagenzahl | 2 |
| Wohnfläche ca. | 128 m2 |
| Nutzfläche | 159,7 m2 |
| Grundstücksfläche | 542 m2 |
| Bezugsfrei ab | 1.10.2025 |
| Zimmer | 5,5 |
| Schlafzimmer | 3 |
| Badezimmer | 2 |
| Garage/Stellplatz | Carport |
| Anzahl Garage/Stellplatz | 2 |
Kosten
| Kaufpreis |
349.000 € |
|---|---|
| Provision | Nein |
Finanzierungsrechner:
Kaufpreis:
600.000 €
Eigenkapital:
600.000 €
Monatliche Rate
0 €
Effektiver Jahreszins
0 %
Sollzinsbindung
10 Jahre
Bausubstanz & Energieausweis
| Baujahr | 1994 |
|---|---|
| Letzte Sanierung | 2023 |
| Bauphase | Haus fertig gestellt |
| Objektzustand | Modernisiert |
| Qualität der Austattung | Normal |
| Heizungsart | Fernwärme |
| Energieausweis | liegt vor |
| Energieausweistyp | Verbrauchsausweis |
| Energieverbrauchskennwert | 127,0 kWh/(m²*a) |
| Energieeffizienzklasse | D |
127,0
kWh/(m²*a)
Energieeffizienzklasse D
- A+
- A
- B
- C
- D
- E
- F
- G
- H
- 0
- 25
- 50
- 75
- 100
- 125
- 150
- 175
- 200
- 225
- >250
Beschreibung des Objekts
Ausstattung
Ausstattungsdetails
Das Einfamilienhaus überzeugt durch eine durchdachte Raumaufteilung, zahlreiche Modernisierungen und einen gepflegten Gesamtzustand. Die Ausstattung im Überblick:
Erdgeschoss
Moderne Einbauküche mit hochwertigen Geräten (u.a. BOSCH)
Gäste-WC (2021) (komplett erneuert)
Mahagoni-Holz Treppe
Praktischer Hauswirtschaftsraum mit Fernwärme-Station (HWR)
Kaminofen im Wohnzimmer mit neuem Rohranschluss und Glasplatte (Brandschutz)
Alle Räume frisch gestrichen (2021)
Heizkörper erneuert (2021)
Alle Innentüren ausgetauscht (2021)
Neue Fußbodenbeläge (hochwertiges Design Klickvinyl in Holzoptik) in allen Räumen (außer Küche, HWR und großes Bad) (2021)
Dachgeschoss
Tageslichtbad mit Badewanne
Drei vielseitig nutzbare Wohn- und Schlafräume
Neue Bodenbeläge (hochwertiges Design Klickvinyl in Holzoptik) und frisch gestrichene Wände (2021)
Heizkörper und Türen ebenfalls erneuert (2021)
Außenbereich
Carport komplett erneuert inkl. Dach und kleinem Geräteschuppen (knapp 30 m², Stromkabel, auch für Wallbox, liegt an)
Terrasse im hinteren Gartenbereich (ca. 50 m²) neu errichtet
Einfahrt gepflastert inkl. Hauseingangstreppe (ca. 90 m²)
Zwei neue Sickergruben zur Regenwasserableitung vom Dach
Neuer Zaun am hinteren Grundstücksrand
Separater Holzschuppen für Fahrräder, Gartengeräte oder Hobby (vielleicht für Outdoor-Küche, Stromkabel liegt an) mit großer zweiflügeliger Holztür Richtung Garten (ca. 30 m²)
Gepflegter Gartenbereich mit viel Gestaltungspotenzial
Energie & Technik
Heizungs- und Warmwasserversorgung
Das Gebäude wird zentral über Fernwärme beheizt. Eine moderne Fernwärmeübergabestation wurde im April 2023 im Hausanschlussraum (HWR) neben der Küche installiert. Für die Warmwasserversorgung steht ein 115-Liter-Speicher zur Verfügung.
Lage
Die Stadt Bützow zählt rund 7.500 Einwohner und bietet eine gute Infrastruktur mit Einkaufsmöglichkeiten, Schulen, Kindergärten, ärztlicher Versorgung und einem Bahnhof mit regelmäßige ICE-Anbindungen nach ganz Deutschland. Die Städte Rostock, Wismar, Lübeck und Hamburg sind über die nahegelegenen Bahnverbindungen und Bundesstraßen bequem erreichbar. Es braucht nur ca. 45 Minuten bis an der Ostseestrand.
Das Haus befindet sich in einer ruhigen Wohngegend am Ortsausgang von Bützow in Richtung Pustohl und Rühn. Fußläufig erreichbar sind sowohl der Große Rühner See als auch der Fluss Warnow. In nur 2 Minuten Fußweg kann man mit einen SUP oder Kanu in der Warnow ablegen. In einer Minute ist man mit dem Rad auf einen Landweg über den man verschiedene Seen, den Wald oder das Stadtzentrum erreichen kann. Diese naturnahe Lage ermöglicht zahlreiche Freizeitaktivitäten wie Spaziergänge, Radtouren und Naturbeobachtungen direkt vor der Haustür.
Die charmante historische Innenstadt ist vom Haus aus in etwa 10 Minuten mit dem Fahrrad oder rund 5 Minuten mit dem Auto erreichbar. Der nächste Supermarkt liegt ca. 1 km entfernt. Eine Grundschule und ein Kindergarten befinden sich im Umkreis von etwa 1,5 km. Das Bützower Krankenhaus ist etwa 2 km entfernt und gut mit dem Fahrrad oder Auto erreichbar.
Das Haus hat nur einen Nachbarn in direkter Nähe und hat zu den anderen Seiten einen teilweise sehr großzigen Abstand zum nächsten Haus.
Etwa 200 Meter entsteht gerade ein neues Wohnungebiet wodurch auch jüngere Familien in die Gegend ziehen und vielleicht zukünftig weitere Infrastruktur entsteht.
Sonstige Angaben
Alle Angaben stammen von den Eigentümern und sind ohne Gewähr. Maßangaben sind Circa-Werte.
Dieses Objekt wird privat verkauft.
Bei Interesse oder für die Vereinbarung eines Besichtigungstermins kontaktieren Sie uns bitte per E-Mail.
Grundriss
GrundrissEG
>
>
Grundriss OG
>
>
Adresse
18246 Bützow
Interessante Orte
Preis- und Lageinformationen
Preistrend für Bestandsimmobilien in Bützow