Wir freuen uns, Ihnen ein außergewöhnlich gepflegtes und vielseitiges Immobilienangebot in Schwandorf, Ortsteil Naabeck, vorstellen zu dürfen. Das Anwesen umfasst ein massiv erbautes Zweifamilienhaus, einen separaten Bungalow (Nebengebäude), sowie eine großzügige Werkstatt – ideal für Familien, Kapitalanleger oder Handwerker mit Platzbedarf.
Das Hauptgebäude – Zweifamilienhaus mit Ausbaupotenzial:
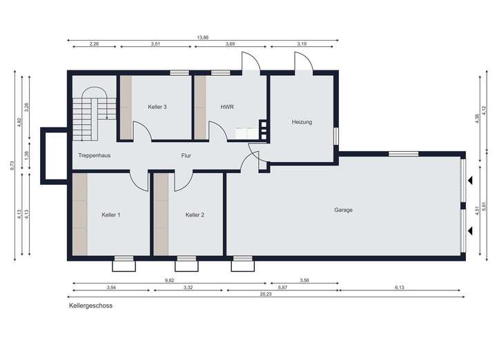
Das voll unterkellerte Zweifamilienhaus wurde 1965 errichtet und bietet derzeit eine Wohnfläche von ca. 218 m², verteilt auf zwei großzügige Wohneinheiten. Das Dachgeschoss mit ca. 96 m² Fläche ist bereits vorbereitet und kann bei Bedarf weiter ausgebaut werden (massive Betondecke vorhanden).
Die Erdgeschosswohnung wurde zuletzt im Jahr 2025 vollständig saniert und bietet einen barrierefreien Zugang sowie eine moderne und hochwertige Ausstattung. Das Obergeschoss ist aktuell vermietet. Beide Wohneinheiten verfügen über Tageslichtbäder und insgesamt stehen 4 Schlafzimmer zur Verfügung.
Die Technik des Hauses ist auf dem neuesten Stand, egal ob eine Wohnraumbelüftung, 3-fach verglaste Kunststofffenster, eine erneuerte Heizungsanlage oder die Elektroleitungen - alles ist auf dem neuesten Stand.
Die Erdgeschosswohnung steht derzeit leer und kann selbst genutzt oder direkt vermietet werden.
Der Bungalow – eigenständig & vermietet:
Ein weiteres Highlight des Anwesens ist der separate Bungalow mit ca. 94 m² Wohnfläche, derzeit ebenfalls vermietet. Mit zwei separaten Eingängen, drei Schlafzimmern, zwei Bädern und modernen 3-fach verglasten Fenstern, bietet er vielfältige Nutzungsmöglichkeiten – sei es zur dauerhaften Vermietung, Mehrgenerationennutzung oder als Gästehaus.
Die geräumige Werkstatt punktet mit einem eigenem Kamin, getrennter Heizungsanlage und geeichtem Stromzähler (Versorgung über das Haupthaus). Ob als Schrauberhalle, Lagerfläche oder klassische Garage – die Nutzungsmöglichkeiten sind nahezu unbegrenzt.
Das großzügige Grundstück mit 934 m² bietet nicht nur Grünfläche, sondern auch mehrere Garagen, ein Carport, Gewächshaus, sowie ausreichend Stellplätze. Das gesamte Ensemble präsentiert sich in einem äußerst gepflegten Zustand und mit durchdachter Nutzung der Flächen – sowohl innen als auch außen.
Die vielseitigen Nutzungsmöglichkeiten, eine solide Bausubstanz und moderne Technik mit attraktiver Kombination aus Eigennutzung und Kapitalanlage, ist das Objekt ideal für Familien, Handwerker oder Investoren.
Gerne stellen wir Ihnen dieses besondere Immobilienangebot in einem persönlichen Gespräch näher vor. Wir freuen uns auf Ihre Kontaktaufnahme!
Großzügiges Immobilienensemble in Schwandorf – Wohnen, Vermieten & Arbeiten auf einem Grundstück
92421 Schwandorf
Die vollständige Adresse der Immobilie erhalten Sie vom Anbieter.
Auf Karte anzeigen
Die vollständige Adresse der Immobilie erhalten Sie vom Anbieter.
Finanzierungszertifikat
In nur zwei Minuten zu Ihrem persönlichen Finanzierungszertifkat.
Infos
| Haustyp | Sonstige |
|---|---|
| Wohnfläche ca. | 311 m2 |
| Grundstücksfläche | 934 m2 |
| Bezugsfrei ab | sofort |
| Zimmer | 13 |
| Schlafzimmer | 7 |
| Badezimmer | 4 |
| Garage/Stellplatz | Garage |
| Anzahl Garage/Stellplatz | 6 |
Kosten
| Kaufpreis |
0 € |
|---|---|
| Provision |
3,57% Gerne sind wir für weitere Fragen und Informationen unter Tel.: 09441 - 2089160 erreichbar. Sind auch Sie an einer diskreten Vermarktung interessiert? Dann kontaktieren Sie uns gerne. Bei Kauf verpflichtet sich der Käufer (Käuferprovision) an die Aurentum GmbH, eine Maklerprovision in der angegebenen Höhe nach notariellem Kaufvertrag zu leisten. Durch Ihre Objektanfrage bestätigen Sie die Vereinbarung und Anerkennung dieser Maklercourtage. Alle Angaben stammen vom Eigentümer der Makler übernimmt hierfür keine Haftung. Anfragen über die Immobilienportale werden nur mit vollständiger Adresse und Telefonnummer bearbeitet. Aufsichtsbehörde: IHK für München und Oberbayern, Max-Joseph-Str. 2, 80333 München. |
Finanzierungsrechner:
Kaufpreis:
600.000 €
Eigenkapital:
600.000 €
Monatliche Rate
0 €
Effektiver Jahreszins
0 %
Sollzinsbindung
10 Jahre
Bausubstanz & Energieausweis
| Baujahr | 1965 |
|---|---|
| Letzte Sanierung | 2025 |
| Bauphase | Haus fertig gestellt |
| Objektzustand | Gepflegt |
| Qualität der Austattung | Normal |
| Heizungsart | Gas-Heizung |
| Wesentliche Energieträger | Gas |
| Energieausweis | liegt zur Besichtigung vor |
Beschreibung des Objekts
Ausstattung
* 2 Familienhaus
* Bungalow
* Gesamtwohnfläche: 311,39 m²
* Grundstücksfläche: 934 m²
* Heizung aus 2015
* Heizkörper 2024 gewechselt
* Glasfaserkabel liegt in der Straße an
* Sep. Stromzähler für jede Partei
* Heizkostenabrechnung erfolgt über ISTA
* Dezentrale Wohnraumbelüftungsanlage
* schöner, gepflegter Garten
* Gewächshaus
* 1 Carport
* 2 Garagen
* Rauchmelder installiert
* Stillgelegeter Öltank (ggfs. Als Zisterne nutzbar)
* Voll unterkellert
* zwischen Haus und Werkstatt geeichter Stromzähler, verbaut im Jahr 2025
* 2 Familienhaus
* Baujahr: 1965
* Umbau und Anbau im Jahr 1990
* Haussanierung (Fassade, Dach, Dämmung, Fenster) im Jahr 2014 erfolgt
* Ortgang verkleidet
* 3-fach verglaste Kunststofffenster
* Rollos manuell
* Fensterbänke Naturstein
* letzte Sanierung im Jahr 2025
* Wohnfläche: 218,24 m²
-> Erdgeschoss: 114,80 m²
-> Obergeschoss: 103,44 m²
-> Dachgeschoss: 95,45 m² (ausbaubar)
* Erdgeschosswohnung:
- leerstehend
- im Jahr 2025 saniert
- alle Stromleitungen geprüft, Lüsterklemmen getauscht
- Unterverteilung komplett erneuert in 2025 (neue Verteilung, FI)
- Wasserleitungen erneuert in 2013/2014
- HWR-Raum mit Waschmaschine und Trockner Anschlüssen ggfs. Auch für Kühlgeräte
- Neuwertige Türen
- Parkettböden
- Schlafzimmer
- Kinderzimmer
- Garderoben
- Helles, großes Tageslichtbad, behindertengerecht mit ebenerdiger Dusche, Badewanne, Duschwc - Geberit Aqua 8000+ aus 2016
- Wohnküche mit Vorbereitung für Dunstabzug (Kamin)
- großzügiger Wohn- und Essbereich mit Zugang zum überdachten Balkon und Dachterrasse und in den Garten
- Barrierefreier Zugang in die Erdgeschosswohnung
* 1. Obergeschosswohnung:
- vermietet
- Böden: Parkett
- Balkon, Zugang vom Wohnzimmer, Lage: Süd/West, traumhafte Aussicht, überdacht
- Wohnzimmer mit Parkettboden
- Essbereich, offen mit Wohnzimmer verbunden
- Wohnküche
- Sep. Speisekammer
- Tageslichtbad mit Badewanne, Dusche
- Sep. Gäste-WC
- Kinderzimmer
- Schlafzimmer
- Sprechanlage mit Videofunktion
- Strom- und Wasserleitungeitungen ca. 20 Jahre alt
- Neuwertige Heizkörper
* Dachgeschoss:
- nicht ausgebaut
- Decke gedämmt (140mm) in 2014
- Dachsanierung in 2014 (Verstärkte Sparren, Rauschalung, Diffusionsoffene Unterspannbahn inkl. Forma Dachziegel engobiert (Lotuseffekt), inkl. Sturmsicherungen
- 1 Kamin für die Therme
- 1 Kamin für Dunstabzug, 1 steht leer
- Betondecke
- Fenster 3-fach Verglasung
- SAT Schüssel
- Warmwasser, Kaltwasser, Strom liegt vor
* Bungalow mit sep. App.
- vermietet
- Baujahr: 1990
- Wohnfläche: 93,15 m²
- Böden: Laminat
- Büro
- Schlafzimmer
- 3-fach verglaste Kunststofffenster ca. 2020
- Wohnzimmerbereich mit Zugang zur Terrasse (Südbereich)
- Tageslichtbad mit Handtuchwärmer, Waschmaschinenanschluss, Geberit WC, Badewanne
- Küche
* Appartement:
- vermietet
- sep. Zugang
- Wohn- und Schlafbereich
- Eigenes Badezimmer mit Dusche und WC
* Werkstatt:
- sep. Ölheizung
- unterkellert
- ca. 50 m², mit Obergeschoss
- Schiebetor
- Kamin, offiziell abgenommen, wird alle 2 Jahre mit der Theme geprüft
- Starkstromanschluss
Lage
Naabeck ist ein idyllischer Ortsteil der Großen Kreisstadt Schwandorf in der Oberpfalz und liegt malerisch am Ufer der Naab, eingebettet in eine naturnahe Umgebung. Der Ort zeichnet sich durch seine ruhige, ländliche Atmosphäre aus und bietet gleichzeitig eine ausgezeichnete Anbindung an die urbanen Annehmlichkeiten der Stadt Schwandorf.
Die verkehrstechnische Anbindung von Naabeck ist hervorragend. Über die Naabecker Straße ist der Ort direkt mit Schwandorf verbunden. Das Autobahnkreuz Oberpfälzer Wald (A6/A93) befindet sich im nördlichen Landkreis Schwandorf, und von dort aus erreicht man das Stadtgebiet über die Anschlussstellen Schwandorf-Nord (Fronberg, B85), Schwandorf-Mitte (Wackersdorf, B85) und Schwandorf-Süd (Klardorf). Der Bahnhof Schwandorf, ein bedeutender Knotenpunkt im bayerischen Bahnnetz, bietet hervorragende Zugverbindungen, darunter Regionalexpresslinien nach Regensburg, Nürnberg, Weiden und Prag. Der Schwandorfer Busbahnhof ermöglicht zudem die Anbindung von Naabeck an verschiedene Buslinien, die das Stadtzentrum sowie andere Ortsteile erschließen.
Für Familien ist die Lage besonders attraktiv: Naabeck verfügt über gute Bildungsangebote, darunter mehrere Kindergärten, wie etwa ein Waldkindergarten und eine Spielstube. In Schwandorf selbst gibt es zudem Grundschulen, Realschulen und Gymnasien, darunter die Gerhardinger-Grundschule, die Lindenschule sowie das Carl-Friedrich-Gauß-Gymnasium. Die Stadt bietet zudem zahlreiche Einkaufsmöglichkeiten – von Supermärkten über Fachgeschäfte bis hin zu Einkaufszentren. Der Stadtmarkt bietet eine große Auswahl regionaler Produkte. Für den täglichen Bedarf sind zudem kleinere Geschäfte in Naabeck vorhanden.
Die Umgebung von Naabeck bietet reichlich Gelegenheit zur Erholung und Freizeitgestaltung. Die Naabauen laden zu Spaziergängen, Radtouren und Naturbeobachtungen ein. In Schwandorf finden regelmäßig kulturelle Veranstaltungen statt, wie Konzerte, Märkte und Feste. Außerdem bietet die Stadt eine Vielzahl an Sporteinrichtungen, darunter Sportvereine, Fitnessstudios und Sportplätze.
Die medizinische Versorgung in Schwandorf ist durch das Klinikum Schwandorf sowie zahlreiche Arztpraxen verschiedener Fachrichtungen, darunter Allgemeinmediziner, Fachärzte und Zahnärzte, sichergestellt.
Naabeck bietet eine perfekte Mischung aus ländlicher Idylle und guter Anbindung an die Infrastruktur der Stadt Schwandorf. Diese Kombination macht den Ort besonders attraktiv für Familien und Naturliebhaber, die die Ruhe des Landlebens genießen möchten, ohne auf die Vorteile der Stadt verzichten zu müssen.
Sonstige Angaben
Gerne sind wir für weitere Fragen und Informationen unter Tel.: 09441 - 2089160 erreichbar.
Bei Kauf verpflichtet sich der Käufer an die Aurentum GmbH, eine Maklerprovision in der angegebenen Höhe nach notariellem Kaufvertrag zu leisten. Durch Ihre Objektanfrage bestätigen Sie die Vereinbarung und Anerkennung dieser Maklercourtage. Alle Angaben stammen vom Eigentümer, der Makler übernimmt hierfür keine Haftung.
Anfragen über die Immobilienportale werden nur mit vollständiger Adresse und Telefonnummer bearbeitet. Aufsichtsbehörde: IHK für München und Oberbayern, Max-Joseph-Str. 2, 80333 München.
Grundriss
Grundrisse Bungalow
>
>
Grundrisse Erdgeschoss
>
>
Grundrisse Obergeschoss
>
>
Grundrisse Kellergeschoss
>
>
Adresse
92421 Schwandorf
Interessante Orte
Preis- und Lageinformationen
Preistrend für Bestandsimmobilien in Schwandorf