Objekt-Nummer: F311
Art des Energieausweises: Bedarfsausweis
Endenergiebedarf in kWh/(m² a): 157,5
Wesentlicher Energieträger der Heizung: Heizöl
Energieeffizienzklasse: E
Baujahr lt. Energieausweis: 1967
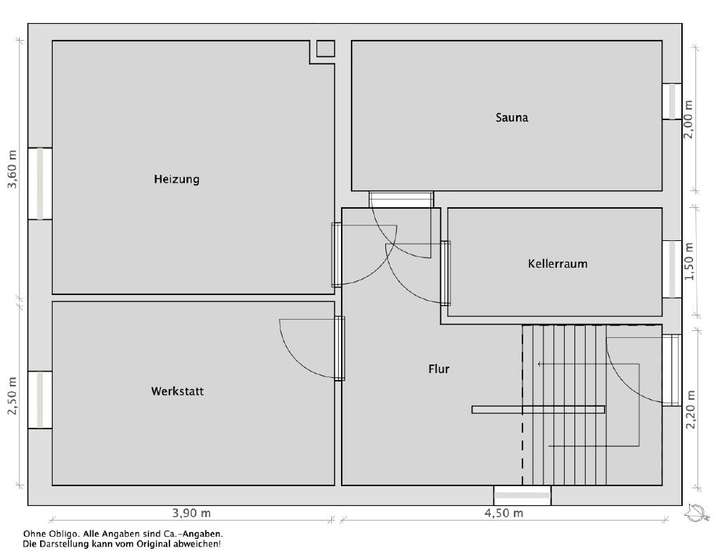
Am Ende einer ruhigen Stichstraße präsentiert sich dieses eindrucksvolle Einfamilienhaus auf einem gepflegten Grundstück von 933 m². Bereits der Eingangsbereich empfängt mit einem grünen, eingewachsenen Vorfeld, das den Charakter des Hauses unterstreicht. Auf ca. 167 m² Wohnfläche entfaltet sich ein Raumangebot, das Großzügigkeit und Wohnkomfort miteinander verbindet. Das Entrée führt in eine weitläufige Diele, von der aus sich der Blick in das mit Stabparkett ausgelegte Wohnzimmer öffnet. Hier geht es weiter auf die erhöhte Terrasse, die sich als idealer Ort für sonnige Tage anbietet. Nebenan liegt die Küche mit klassischem Landhauscharakter, während ein Gäste-WC und der direkte Zugang in den Keller den praktischen Teil dieses Geschosses abrunden. Über wenige Stufen gelangt man in den Anbau aus dem Jahr 1969, der ein Duschbad bereithält. Eine Tür im Flur führt in den Außenbereich. Besonderes Highlight ist jedoch das helle Kaminzimmer, das mit einer breiten Fensterfront den direkten Zugang auf die wunderschöne und große Terrasse bietet. Zusätzlich ist das Kaminzimmer mit einer Fußbodenerwärmung ausgestattet. Das Obergeschoss verfügt über drei großzügig geschnittene Zimmer sowie ein Badezimmer mit Dusche, Badewanne und WC. Ein echter Blickfang ist die offene Holztreppe, die ins Dachgeschoss führt, wo sich ein weiteres Zimmer sowie Abstellfläche im Dachboden befinden. Auch das Kellergeschoss beeindruckt mit Platzvielfalt. Hier gibt es mehrere Räume, die sich hervorragend als Vorrats- oder Hobbybereiche eignen, daneben ein Heizungs- u. HWR sowie eine Sauna, die für zusätzlichen Wohnwert sorgt. Der Garten zeigt sich weitläufig und bietet mit altem Baumbestand, Rasenflächen und geschützten Sitzecken ein Umfeld, das viel Raum für eigene Gestaltungsideen lässt. Ein Haus, das mit seiner Größe, seiner durchdachten Aufteilung und seinen besonderen Wohnbereichen zahlreiche Möglichkeiten eröffnet ob für die große Familie, repräsentatives Wohnen oder die Verbindung von Arbeiten und Leben unter einem Dach. Hier sind der Vielfältigkeit keine Grenzen gesetzt!
Anbieter-Objektnummer: F311
TT bietet an: Exquisites Familienanwesen in Schortens-Accum! - Komfortables Wohnen im Einklang
26419 Schortens
Die vollständige Adresse der Immobilie erhalten Sie vom Anbieter.
Auf Karte anzeigen
Die vollständige Adresse der Immobilie erhalten Sie vom Anbieter.
Finanzierungszertifikat
In nur zwei Minuten zu Ihrem persönlichen Finanzierungszertifkat.
Infos
| Haustyp | Einfamilienhaus |
|---|---|
| Wohnfläche ca. | 167 m2 |
| Grundstücksfläche | 933 m2 |
| Zimmer | 6 |
| Anzahl Garage/Stellplatz | 4 |
Kosten
| Kaufpreis |
299.000 € |
|---|---|
| Provision |
3,57 % inkl. MwSt |
Finanzierungsrechner:
Kaufpreis:
600.000 €
Eigenkapital:
600.000 €
Monatliche Rate
0 €
Effektiver Jahreszins
0 %
Sollzinsbindung
10 Jahre
Bausubstanz & Energieausweis
| Baujahr | 1967 |
|---|---|
| Wesentliche Energieträger | Öl |
| Energieausweis | liegt vor |
| Energieausweistyp | Bedarfsausweis |
| Energieverbrauchskennwert | 157,5 kWh/(m²*a) |
| Energieeffizienzklasse | E |
157,5
kWh/(m²*a)
Energieeffizienzklasse E
- A+
- A
- B
- C
- D
- E
- F
- G
- H
- 0
- 25
- 50
- 75
- 100
- 125
- 150
- 175
- 200
- 225
- >250
Beschreibung des Objekts
Lage
Das Haus befindet sich in einer attraktiven und ruhigen Wohngegend in Accum, die ideal für Familien, Paare oder auch als Renditeobjekt geeignet ist. Der Ortsteil Accum gehört zur Gemeinde Schortens, ist aber verkehrstechnisch eher der Stadt Wilhelmshaven vorgelagert.
Nur wenige Minuten entfernt finden Sie:
- Städtische Anbindung: In ca. 10 Minuten erreichen Sie sowohl die pulsierende Innenstadt von Wilhelmshaven als auch das charmante Jever, wo Sie alle Annehmlichkeiten des urbanen Lebens genießen können.
-Versorgung und Freizeit: Einkaufsmöglichkeiten, Schulen, Ärzte und die Kliniken in Wilhelmshaven liegen in unmittelbarer Nähe. Darüber hinaus bieten lokale Freizeitangebote, gemütliche Cafés und kulturelle Veranstaltungen eine hohe Lebensqualität.
- Küstenflair: Die begehrte Nordseeküste ist in etwa 15-20 km erreichbar. Entdecken Sie die malerischen Badeorte und erleben Sie entspannte Spaziergänge an den Stränden - ein Paradies für Naturliebhaber und Aktivurlauber.
Grundriss
Grundriss Erdgeschoss
>
>
Grundriss Dachgeschoss
>
>
Grundriss Kellergeschoss
>
>
Adresse
26419 Schortens
Interessante Orte
Preis- und Lageinformationen
Preistrend für Bestandsimmobilien in Schortens