Zum Hauptinhalt springen
1/3
2/3
3/3

Exklusives Grundstück für Ihre Doppelhaushälfte!

77731 Willstätt
Die vollständige Adresse der Immobilie erhalten Sie vom Anbieter.
Auf Karte anzeigen
Logo ImmoScout24 Logo ImmoScout24
PDF Finanzierungszertifikat

Finanzierungszertifikat

In nur zwei Minuten zu Ihrem persönlichen Finanzierungszertifkat.

  • Zur Vorlage beim Makler oder Verkäufer
  • Vorteile gegenüber anderen Kaufinteressenten
  • Kostenlos und unverbindlich
Finanzierungszertifikat anfragen

Infos

Vermarktungsart Kaufen
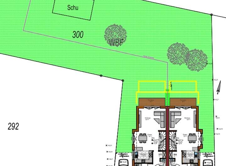
Grundstücksfläche 529 m2

Kosten

Miete pro Jahr 135.149 €
Provision Nein

Finanzierungsrechner:

Kaufpreis: 600.000 €

Eigenkapital: 600.000 €
Monatliche Rate 0 €
Effektiver Jahreszins 0 %
Sollzinsbindung 10 Jahre

Beschreibung des Objekts

                WILLKOMMEN bei Massa Haus - bauen mit Mike Schmidt 

Das angebotene Grundstück liegt in einem schönen gewachsenen Wohngebiet in der Ortsrandlage von Willstätt.
            

Lage

                Dieses schöne, erschlossene Baugrundstück liegt in ruhiger, idyllischer Ortsrandlage von Willstätt und eignet sich
hervorragend für die Bebauung einer Doppelhaushälfte.
                

Sonstige Angaben

                Eine Bebauung kann kurzfristig ohne Vorlage eines Bebauungsplanes erfolgen und ist gemäß § 34 BauBG zu beurteilen - die Zulässigkeit des Bauvorhabens orientiert sich an der Umgebungsbebauung.
Der Erwerb dieses Grundstücks ist an die Bebauung mit dem Marktführer Massa Haus gebunden.
           

Adresse

77731 Willstätt

Interessante Orte

Bäckereien
Schulen
Ärzte

Ansprechpartner