In Kirchheimbolanden entsteht eine exklusive Wohnanlage mit zwei hochwertig gebauten Doppelhaushälften. Die Fertigstellung ist für Juni 2026 geplant.
Die Häuser überzeugen durch massive Kalksandstein-Außenwände mit 16 cm Wärmedämmung, dreifach verglaste Fenster und eine moderne Luftwärmepumpe – für niedrige Energie- und Heizkosten.
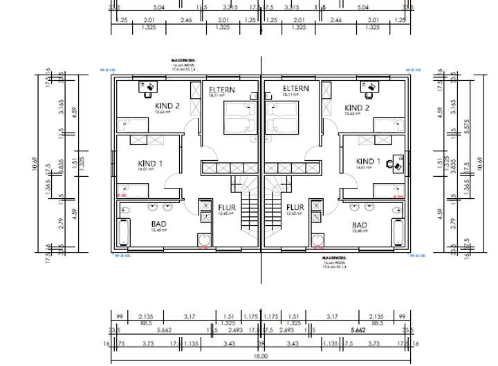
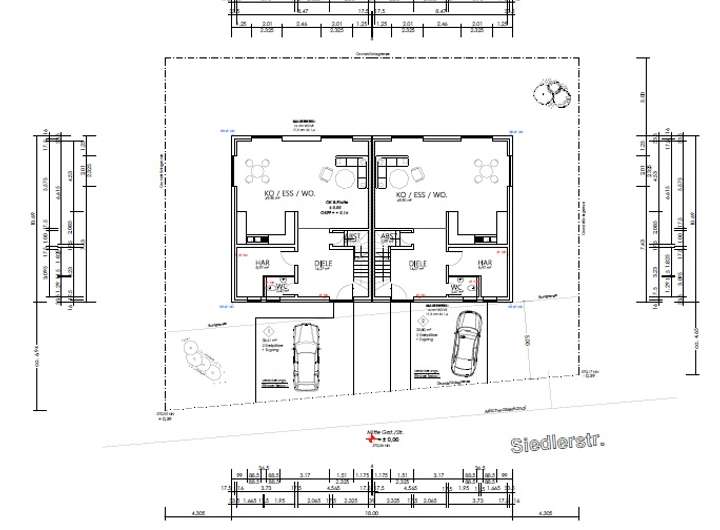
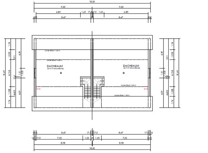
Jede Haushälfte bietet ca. 190 m² Wohnfläche auf drei Etagen, ist baulich getrennt und verfügt über ein voll ausgebautes Dachgeschoss, zwei gepflasterte Stellplätze und einen eigenen Garten.
*Raumaufteilung*:
• EG: Offener Wohn-/Essbereich mit heller Küche, Gäste-WC, Diele, Abstellraum, Hauswirtschaftsraum
• OG: Elternschlafzimmer, zwei Kinderzimmer, Tageslichtbad mit Wanne, Dusche und WC
• DG: Schlafzimmer, Duschbad mit WC, zusätzlicher Raum (Ankleide/Abstellfläche)
Ein durchdachtes Zuhause mit großzügigen, lichtdurchfluteten Räumen und hohem Wohnkomfort – ideal für Familien.
Kaufpreise & Grundstücksgrößen
• Haus 18a: 278,14 m² Grundstück – ab 532.500 €
• Haus 18: 292,81 m² Grundstück – ab 540.500 €
*Im Preis enthalten*
• Grundstück & schlüsselfertiges Haus (ohne Maler-/Bodenarbeiten)
• Erschließungs- und Anschlusskosten
• Gepflasterte Terrasse & Hauseingang
• 2 KFZ-Stellplätze
*Optional gegen Aufpreis*:
Malerarbeiten (Raufaser/Glattvlies), Bodenbeläge (Vinyl/Fliesen), Eichenholztreppen, Monoblock-Klimaanlagen
*Sonstiges*:
Zusätzliche Kosten wie Grunderwerbsteuer und Notarkosten sind vom Käufer zu tragen.
Bitte bei Anfragen vollständige Kontaktdaten angeben.
Moderne Doppelhaushälfte in Kirchheimbolanden – Erstbezug *provisionsfrei* direkt vom Bauherrn
Siedler Str. 18,
67292 Kirchheimbolanden
Auf Karte anzeigen
Finanzierungszertifikat
In nur zwei Minuten zu Ihrem persönlichen Finanzierungszertifkat.
Infos
| Haustyp | Doppelhaushaelfte |
|---|---|
| Etagenzahl | 3 |
| Wohnfläche ca. | 190 m2 |
| Grundstücksfläche | 278,14 m2 |
| Bezugsfrei ab | 1.6.2026 |
| Zimmer | 5 |
| Schlafzimmer | 4 |
| Badezimmer | 2 |
| Garage/Stellplatz | Außenstellplatz |
| Anzahl Garage/Stellplatz | 2 |
Kosten
| Kaufpreis |
532.500 € |
|---|---|
| Preis für Garage/Stellplatz | 532.500 € |
| Provision | Nein |
Finanzierungsrechner:
Kaufpreis:
600.000 €
Eigenkapital:
600.000 €
Monatliche Rate
0 €
Effektiver Jahreszins
0 %
Sollzinsbindung
10 Jahre
Bausubstanz & Energieausweis
| Baujahr | 2025 |
|---|---|
| Bauphase | Haus im Bau |
| Objektzustand | Erstbezug |
| Qualität der Austattung | Gehoben |
| Heizungsart | Wärmepumpe |
| Energieausweis | liegt vor |
| Energieausweistyp | Bedarfsausweis |
| Energieverbrauchskennwert | 18,2 kWh/(m²*a) |
| Energieeffizienzklasse | A+ |
18,2
kWh/(m²*a)
Energieeffizienzklasse A+
- A+
- A
- B
- C
- D
- E
- F
- G
- H
- 0
- 25
- 50
- 75
- 100
- 125
- 150
- 175
- 200
- 225
- >250
Beschreibung des Objekts
Ausstattung
• Hochdämmende Gebäudehülle
• Dreifach verglaste Fenster
• Fußbodenheizung
• Luftwärmepumpe für Heizung & Warmwasser
• Feuchtegesteuerte Wohnraumlüftung
• Netzwerkverkabelung in allen Räumen
• Tageslichtbäder
Lage
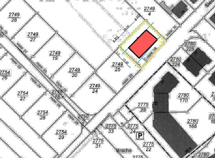
Die Immobilie liegt im Stadtteil Heide in Kirchheimbolanden (Donnersbergkreis, Rheinland-Pfalz), mitten in der Wein- und Kulturlandschaft Rheinhessen.
Die verkehrsgünstige Lage mit Anbindung an A63, A61 und B47 sowie die Nähe zur Innenstadt machen diesen Standort besonders attraktiv. Einkaufsmöglichkeiten, Schulen, Kindergärten und der Bahnhof sind bequem erreichbar.
Adresse
Siedler Str. 18, 67292 Kirchheimbolanden
Interessante Orte
Preis- und Lageinformationen
Preistrend für Bestandsimmobilien in Kirchheimbolanden