Am Rande des exklusiven Auenviertels bieten wir Ihnen zwei attraktive Grundstücke mit jeweils ca. 562 m² Fläche in der begehrten Grüngürtelstraße zum Kauf an. Die Lage besticht durch ihre Ruhe, ihren besonderen Charme und den unverbaubaren Blick in das gegenüberliegende Naturschutzgebiet – ein einmaliges Umfeld, das Wohnen im Grünen mit städtischer Nähe vereint.
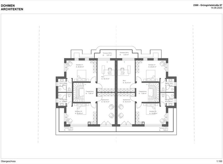
Das renommierte Büro Dohmen Architekten aus Köln-Rodenkirchen hat für die beiden Grundstücke bereits einen hochwertigen Entwurf entwickelt: moderne Einfamilienhäuser im klassischen, zeitlosen Stil mit einer Wohn- Nutzfläche inkl. Doppelgarage von jeweils rund 458 m². Die großzügige Planung umfasst bis zu 5 Schlafzimmer, 3 Bäder, repräsentative Wohn- und Essbereiche sowie eine großzügige Doppelgarage für 2 Pkw´s.
Besonders hervorzuheben ist, dass Sie als Käufer Ihr Traumhaus individuell mitgestalten können: Grundrisse, Materialien und Ausstattungsdetails werden in enger Zusammenarbeit mit dem Architekten maßgeschneidert auf Ihre Wünsche abgestimmt. So entsteht kein Haus „von der Stange“, sondern ein einzigartiges Zuhause mit Charakter.
m Kaufpreis enthalten sind bereits die Kosten für die Vermessung sowie die Baugenehmigung (Leistungsphase 1–4). Die reinen Baukosten liegen – je nach gewünschter Ausstattung – und nach Ausbaustufe -ob mit Keller- bzw. Dachgeschossausbau oder ohne - erfahrungsgemäß zwischen 1,2 und 2,0 Mio. Euro.
Diese seltene Gelegenheit verbindet eine der besten Lagen Kölns mit exklusiver Architektur und individueller Gestaltungsmöglichkeit – ideal für alle, die ein repräsentatives Domizil in einer der begehrtesten Wohngegenden am Rhein realisieren möchten.
Hollenders Immobilien: Grundstück im Auenviertel mit Baugenehmigung für exclusives Einfamilienhaus
Grüngürtelstrasse 67,
50996 Köln
Auf Karte anzeigen
Finanzierungszertifikat
In nur zwei Minuten zu Ihrem persönlichen Finanzierungszertifkat.
Infos
| Vermarktungsart | Kaufen |
|---|---|
| Grundstücksfläche | 562 m2 |
| Erschließung | Erschlossen |
| Empfohlene Nutzung | Einfamilienhaus |
| Grundflächenzahl (GRZ) | 0.5 |
| Geschossflächenzahl (GFZ) | 0.6 |
| Bebaubar nach | Bebauungsplan |
Kosten
| Miete pro Jahr |
1.312.000 € |
|---|---|
| Provision |
Die Courtage beträgt 3,57% inkl. 19% gesetzlicher Mehrwertsteuer. |
Finanzierungsrechner:
Kaufpreis:
600.000 €
Eigenkapital:
600.000 €
Monatliche Rate
0 €
Effektiver Jahreszins
0 %
Sollzinsbindung
10 Jahre
Beschreibung des Objekts
Lage
Die beiden Grundstücke liegen im exklusiven Auenviertel von Köln-Rodenkirchen – eine der begehrtesten und wertstabilsten Wohnlagen der Stadt. Eingebettet in eine ruhige, grüne Umgebung und nur wenige Schritte vom Rhein entfernt, verbindet dieser Standort Privatsphäre und Natur mit urbanem Komfort.
Rodenkirchen überzeugt durch seine hervorragende Infrastruktur: vielfältige Einkaufsmöglichkeiten, erstklassige Restaurants, Kindergärten und Schulen – darunter auch internationale Einrichtungen – befinden sich in unmittelbarer Nähe. Die Kölner Innenstadt ist mit dem Auto oder der Bahn schnell erreichbar, ebenso die Autobahnen in Richtung Bonn und Düsseldorf.
Das Auenviertel selbst zeichnet sich durch großzügige Grundstücke, hochwertige Architektur und ein gewachsenes, gepflegtes Umfeld aus. Hier entstehen Wohnhäuser, die nicht nur durch ihre Lage, sondern auch durch ihre Exklusivität einen besonderen Lebenswert schaffen.
Die Nähe zum Rhein mit seinen weitläufigen Uferpromenaden und die beliebten Naherholungsgebiete wie der Forstbotanische Garten oder der Grüngürtel bieten vielfältige Freizeitmöglichkeiten – sei es für sportliche Aktivitäten, Spaziergänge oder einfach zum Entspannen.
Wer eine Immobilie im Auenviertel erwirbt, entscheidet sich für ein Zuhause in einer Lage, die durch ihre Kombination aus Ruhe, Naturverbundenheit und bester Anbindung kaum zu übertreffen ist
Sonstige Angaben
Das Projekt wird von "Dohmen Architekten" aus Köln-Rodenkirchen betreut, die die moderne und hochwertige Planung der beiden Einfamilienhäuser übernommen haben. Zahlreiche Referenzen finden Sie unter deren Hompage: https://dohmen-architekten.de/
Im Kaufpreis sind die Kosten für die Baugenehmigung -auf der Grundlage der eingereichten Planung- ,also die Leistungsphasen 1-4 lt. Gebührenordnung der Architekten sowie die Kosten für die Erstellung der Lagepläne für den Bauantrag enthalten.
Grundriss
Grundriss Erdgeschoss
>
>
Grundriss Obergeschoss
>
>
Grundriss Dachgeschoss
>
>
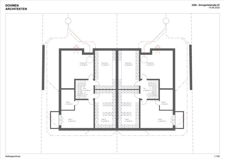
Grundriss Kellergeschoss
>
>