Wohnen im Grünen – mit Stil und Freiraum.
Inmitten der idyllischen Ortschaft Stolberg-Vicht, umgeben von Natur und Ruhe, erwartet Sie dieses großzügige Anwesen mit einer Wohnfläche von ca. 215 m² auf einem beeindruckenden Grundstück von ca. 2.659 m². Hier verbinden sich Wohnkomfort, Naturnähe und Privatsphäre zu einem außergewöhnlichen Zuhause.
Das Haus überzeugt durch eine durchdachte und großzügige Raumaufteilung:
Ein lichtdurchfluteter Wohn- und Essbereich mit offenem Übergang zur stilvollen Küche bildet das Herzstück des Hauses. Große Fensterflächen schaffen eine Verbindung zur Natur und bieten einen herrlichen Blick in den Garten.
Sechs vielseitig nutzbare Zimmer bieten ausreichend Platz für Familie, Homeoffice oder Gäste.
Zwei gepflegte Bäder sowie ein zusätzliches Gäste-WC sorgen für Komfort im Alltag.
Ein Teilkeller bietet zusätzlichen Stauraum oder Platz für Hobbys.
Das weitläufige Grundstück beeindruckt mit einem parkähnlichen Garten, der mit viel Liebe angelegt wurde. Ein gepflegter Teich fügt sich harmonisch in die Umgebung ein und verleiht dem Garten eine besondere Atmosphäre. Die Fläche bietet vielfältige Gestaltungsmöglichkeiten – ob Spielwiese, Gemüsegarten oder Ruhe Oase, hier sind Ihrer Kreativität keine Grenzen gesetzt.
Dieses hochwertige Anwesen bietet Ihnen viel Platz, eine hervorragende Lage und ein Grundstück, das in dieser Größe selten geworden ist. Ideal für Familien oder alle, die Wohnen mit Lebensqualität verbinden möchten.
Großzügiges Anwesen in ruhiger Lage von Stolberg-Vicht
52224 Stolberg (Rheinland)
Die vollständige Adresse der Immobilie erhalten Sie vom Anbieter.
Auf Karte anzeigen
Die vollständige Adresse der Immobilie erhalten Sie vom Anbieter.
Finanzierungszertifikat
In nur zwei Minuten zu Ihrem persönlichen Finanzierungszertifkat.
Infos
| Haustyp | Einfamilienhaus |
|---|---|
| Etagenzahl | 2 |
| Wohnfläche ca. | 215 m2 |
| Nutzfläche | 52,39 m2 |
| Grundstücksfläche | 2.659 m2 |
| Zimmer | 6 |
| Badezimmer | 2 |
| Anzahl Garage/Stellplatz | 4 |
Kosten
| Kaufpreis |
649.000 € |
|---|---|
| Preis für Garage/Stellplatz | 0 € |
| Provision |
3,57 % |
Finanzierungsrechner:
Kaufpreis:
600.000 €
Eigenkapital:
600.000 €
Monatliche Rate
0 €
Effektiver Jahreszins
0 %
Sollzinsbindung
10 Jahre
Bausubstanz & Energieausweis
| Baujahr | 2003 |
|---|---|
| Bauphase | Haus fertig gestellt |
| Heizungsart | Zentralheizung |
| Wesentliche Energieträger | Gas |
| Energieausweis | liegt vor |
| Energieausweistyp | Verbrauchsausweis |
| Energieverbrauchskennwert | 46,6 kWh/(m²*a) |
| Energieeffizienzklasse | A |
46,6
kWh/(m²*a)
Energieeffizienzklasse A
- A+
- A
- B
- C
- D
- E
- F
- G
- H
- 0
- 25
- 50
- 75
- 100
- 125
- 150
- 175
- 200
- 225
- >250
Beschreibung des Objekts
Lage
Das Anwesen befindet sich im idyllischen Stolberger Ortsteil Vicht, einem der gefragtesten Wohnlagen von Stolberg in der Städteregion Aachen. Die Umgebung besticht durch ihre naturnahe, ruhige Lage am Rande des Nationalparks Eifel und bietet gleichzeitig eine gute Anbindung an die umliegenden Städte.
Vicht ist geprägt von einem dörflichen Charakter, einer intakten Nachbarschaft und einer hohen Lebensqualität. Der Ort bietet eine gute Infrastruktur für den täglichen Bedarf: Einkaufsmöglichkeiten, ein Kindergarten, eine Grundschule sowie Ärzte und kleinere Dienstleister befinden sich im direkten Umfeld oder sind in wenigen Fahrminuten erreichbar.
Durch die Nähe zur Aachener Innenstadt (ca. 20 Minuten Fahrzeit) sowie zur B 258 und B 399 ist Vicht sowohl für Pendler als auch für Naturliebhaber attraktiv. Die Anbindung an den öffentlichen Nahverkehr ist gegeben, sodass Sie auch ohne Auto flexibel bleiben.
Die grüne Umgebung lädt zu Spaziergängen, Wanderungen und Fahrradtouren ein. Zahlreiche Naherholungsgebiete, Bachläufe und Waldstücke bieten vielfältige Freizeitmöglichkeiten direkt vor der Haustür.
Sonstige Angaben
weitere Sonderausstattungen: Kabel Sat TV
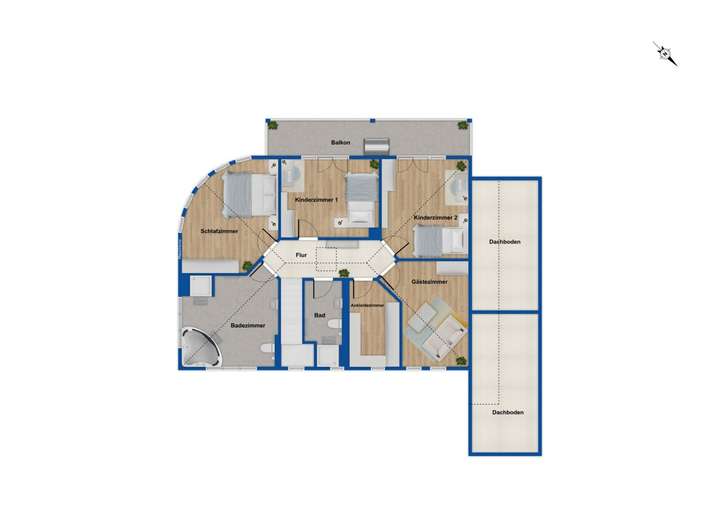
Grundriss
Grundriss Erdgeschoss
>
>
Grundriss Obergeschoss
>
>
Grundriss Kellergeschoss
>
>
Adresse
52224 Stolberg (Rheinland)
Interessante Orte
Preis- und Lageinformationen
Preistrend für Bestandsimmobilien in Stolberg (Rheinland)