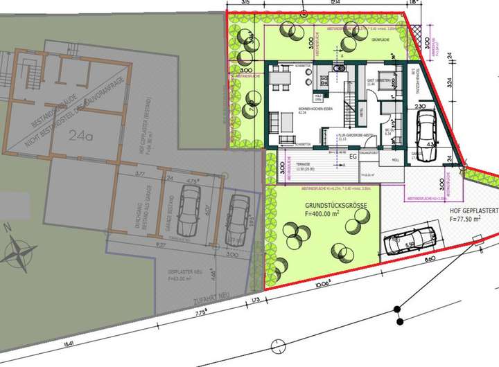
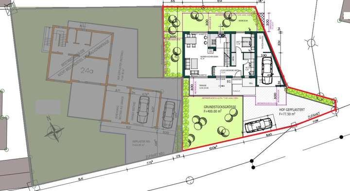
Zum Verkauf steht ein noch ungeteiltes Baugrundstück in einer der gefragtesten Wohngegenden Bobingens. Hier verbindet sich ruhiges Wohnen in naturnaher Umgebung mit kurzen Wegen ins Stadtzentrum, eine perfekte Balance für alle, die sowohl Stadtnähe als auch Natur genießen möchten. Das Grundstück ist ideal für den Bau eines modernen Einfamilienhauses. Dank §34 BauGB ist die Bebauung flexibel nach Nachbarschaftsbebauung möglich. Ein Bauantrag für ein stilvolles Einfamilienhaus mit Flachdach wurde bereits eingereicht und positiv bewertet: Sie können sofort loslegen. Ob als Eigenheim oder Kapitalanlage, dieses Grundstück bietet eine seltene Gelegenheit in Bobingen!
Baugrundstück in Bobingen, idyllische Lage zwischen Stadt und Natur
86399 Bobingen
Die vollständige Adresse der Immobilie erhalten Sie vom Anbieter.
Auf Karte anzeigen
Die vollständige Adresse der Immobilie erhalten Sie vom Anbieter.
Finanzierungszertifikat
In nur zwei Minuten zu Ihrem persönlichen Finanzierungszertifkat.
Infos
| Vermarktungsart | Kaufen |
|---|---|
| Grundstücksfläche | 400 m2 |
| Erschließung | Teilerschlossen |
| Empfohlene Nutzung | Einfamilienhaus |
| Bebaubar nach | wie Nachbarbebauung |
Kosten
| Miete pro Jahr |
320.000 € |
|---|---|
| Provision |
2,38 % inkl. ges. MwSt. Die Maklercourtage für den Käufer beträgt 2 % aus dem Kaufpreis zuzüglich der gesetzlichen MwSt., somit gesamt 2,38 %. |
Finanzierungsrechner:
Kaufpreis:
600.000 €
Eigenkapital:
600.000 €
Monatliche Rate
0 €
Effektiver Jahreszins
0 %
Sollzinsbindung
10 Jahre
Beschreibung des Objekts
Lage
* ruhige, gewachsene Wohngegend mit guter Nachbarschaft
* nur wenige Schritte bis zum Wald,
perfekt für Spaziergänge und Freizeitaktivitäten
* gleichzeitig kurze Wege ins Stadtzentrum von Bobingen
mit allen Einkaufsmöglichkeiten
* hervorragende Anbindung nach Augsburg
Sonstige Angaben
Grundstücksfläche: ca. 400 m² (auf Wunsch auch größere Teilfläche möglich)
Erschließung: teilerschlossen
Bebauung nach §34 BauGB (Nachbarschaftsbebauung)
Positives Feedback für Bauantrag (Einfamilienhaus mit Flachdach) liegt bereits vor
Grundriss
Plan EFH Neubau
>
>