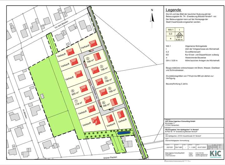
Das Baugebiet „Am Apfelgarten“ bietet Ihnen eine hervorragende Möglichkeit, Ihr Traumhaus zu verwirklichen! Aktuell stehen Ihnen noch 7 Bauplätze zur Verfügung, die zwischen 718 m² und 887 m² groß sind. Sie haben die Freiheit, das passende Grundstück für Ihre Bedürfnisse auszuwählen.
Ein großer Vorteil ist, dass die Grundstücke vollerschlossen sind und keine zusätzlichen Gebühren anfallen. Das bedeutet, dass Sie sofort mit der Planung Ihres neuen Zuhauses beginnen können! Die Bebaubarkeit der Grundstücke wird durch den Bebauungsplan Nr. 74 „Erweiterung Blöcken Nindorf“ geregelt, sodass Sie klare Richtlinien für Ihr Bauvorhaben haben.
Das Baugebiet wird mit Strom und Wasser versorgt. Zusätzlich ist das Baugebiet an das Glasfasernetz angeschlossen, was Ihnen eine schnelle Internetverbindung ermöglicht – ideal für Homeoffice oder digitale Freizeitaktivitäten. Auf den Baugrundstücken ist der Hausanschlussschacht zur Entsorgung des Schmutzwassers bereits gesetzt. Das Regenwasser ist einer Regenwasserbewirtschaftung auf den Baugrundstücken zuzuführen. Die Bauverpflichtung in dem Baugebiet beträgt drei Jahre nach Abschluss des Grundstückskaufvertrages.
Wenn Sie weitere Informationen benötigen oder Fragen haben, zögern Sie nicht, uns anzusprechen.
Gemeinsam finden wir die besten Lösungen für Sie!
Baugrundstücke "Am Apfelgarten" in Nindorf vollerschlosssen
27374 Visselhövede
Die vollständige Adresse der Immobilie erhalten Sie vom Anbieter.
Auf Karte anzeigen
Die vollständige Adresse der Immobilie erhalten Sie vom Anbieter.
Finanzierungszertifikat
In nur zwei Minuten zu Ihrem persönlichen Finanzierungszertifkat.
Infos
| Vermarktungsart | Kaufen |
|---|---|
| Grundstücksfläche | 718 m2 |
| Erschließung | Erschlossen |
| Grundflächenzahl (GRZ) | 0.3 |
| Bebaubar nach | Bebauungsplan |
| Verfügbar ab | sofort |
Kosten
| Miete pro Jahr |
86.160 € |
|---|---|
| Provision | Nein |
Finanzierungsrechner:
Kaufpreis:
600.000 €
Eigenkapital:
600.000 €
Monatliche Rate
0 €
Effektiver Jahreszins
0 %
Sollzinsbindung
10 Jahre
Beschreibung des Objekts
Lage
Das Baugebiet „Am Apfelgarten“ in Nindorf liegt westlich der Stadt Visselhövede. Die ruhige Lage am Ortsrand und geringe Verkehrsbelastung ist ideal für Familien oder Menschen, die die Natur und eine entspannte Wohnatmosphäre schätzen. Die dörfliche Prägung und die landwirtschaftliche Nutzung verleihen dem Ort einen charmanten Charakter.
Die lockere Struktur aus Ein- und Zweifamilienhäusern, umgeben von Gärten und Grünflächen, schafft eine angenehme Nachbarschaft. Die Innenstadt von Visselhövede ist nur 2,5 km entfernt. Dort finden Sie alles, was Sie für den täglichen Bedarf benötigen sowie Freizeitmöglichkeiten.
Sonstige Angaben
Öffentliche Verkehrsmittel:
Der öffentliche Nahverkehr verbindet Nindorf und Visselhövede. Visselhövede bietet die Möglichkeit mit öffentlichen Verkehrsmitteln weitere Städte wie Rotenburg oder Soltau zu erreichen. Der Bahnhof Visselhövede befindet sich im Westen der Stadt. Die Bahn hält am Bahnhof auf der Strecke von Bremen über Achim und Langwedel in Visselhövede und fährt weiter in Richtung Soltau und Munster nach Uelzen und wieder zurück.
Die diversen Buslinien bringen Sie nach Rotenburg oder Verden (Aller). Auch der Bürgerbus hält in Visselhövede und fährt in Richtung Neuenkirchen sowie Walsrode.
Verkehrsanbindung:
Die Autobahnen BAB 1, Anschlussstelle Bockel sowie das Bremer Kreuz sind 45 Minuten entfernt.
BAB 7, Anschlussstelle Dorfmark liegt 15 Minuten entfernt und BAB 27, Anschlussstelle Verden-Ost liegt 22 Minuten entfernt.