Aufgrund einer vertraglichen Vereinbarung mit dem Eigentümer können wir Besichtigungstermine erst nach Erhalt Ihrer vollständigen Kontaktdaten über das untenstehende oder nebenstehende Kontaktformular vereinbaren.
Nach Eingang Ihrer schriftlichen Kontaktanfrage senden wir Ihnen umgehend das Exposé und die genaue Anschrift der Immobilie per E-Mail zu.
Bitte teilen Sie uns anschließend Ihre Terminvorschläge für eine Besichtigung per E-Mail mit.
Aus organisatorischen Gründen können Besichtigungstermine nur schriftlich und nicht telefonisch vereinbart werden.
++++++++++++++++++
Die angebotene Doppelhaushälfte, erbaut im Jahr 1980, befindet sich auf einem großzügigen Grundstück von ca. 692 m² in der Morgensternsheide in Neuss.
Mit einer Wohnfläche von ca. 92 m² und einer zusätzlichen Nutzfläche von ca. 52 m² im teilweise ausgebauten Kellergeschoss, bietet das Haus genügend Raum für die ganze Familie. Das große Wohnzimmer mit Essbereich und gemütlichem Kamin (ca. 30 m²) lädt zum Verweilen ein. Die praktische Küche mit ca. 11 m² bietet genügend Platz für kulinarische Entfaltung. Ein Gäste-WC und eine Abstellkammer runden das Angebot dieser Etage ab.
Im Obergeschoss befinden sich drei Schlafzimmer, eines davon mit einem praktischen Wandschrank. Die Größen der Schlafzimmer betragen ca. 13 m², ca. 8 m² und ca. 6 m². Aktuell sind die beiden kleineren Zimmer über einen Durchgang verbunden, der sich jedoch problemlos zurückbauen lässt. Ein Badezimmer mit Badewanne befindet sich ebenfalls auf dieser Etage.
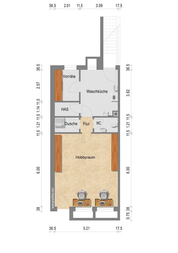
Vorratskeller und Waschküche sind über eine Außentreppe vom Garten zugänglich.
Im Kellergeschoss finden Sie zudem einem Hobbyraum/ Büro sowie ein WC und Dusche, die über eine separate Außentreppe von der Hausvorderseite erreichbar sind.
Der Außenbereich überzeugt mit einer geräumigen Terrasse mit Markise sowie dem über wenige Stufen erreichbaren gepflegten Garten samt zwei Gartenhäusern und einem überdachten Bereich, der zum Entspannen einlädt.
Ein Carport vor dem Haus bietet Stellplätze für zwei Fahrzeuge.
Moderne Annehmlichkeiten, wie eine Gaszentralheizung (2002) in Kombination mit einer Photovoltaikanlage (Enpal Mietanlage), sorgen für Komfort und Energieeffizienz.
Das Haupthaus befindet sich in einem gepflegten, dem Baujahr entsprechenden Zustand. Renovierungs- bzw. Sanierungsarbeiten in Bezug auf Bödenbeläge, Wandbeläge, sowie kleinere Elektroarbeiten (FI-Schutzschalter) erscheinen notwendig.
Das sich auf dem Grundstück befindende Nebengebäude stammt ca. aus einem Baujahr um 1800 und wurde einseitig an ein Nachbargebäude angebaut. Diese ehemalige Stallung hat an einigen Stellen eine Raumhöhe von ca. 1,80 m. Ein Abriss ist zu empfehlen, jedoch erscheint dieser aufgrund der Bauweise komplex.
+ Morgensternsheide + Doppelhaushälfte + ca. 692 m² Grundstück + ca. 92 m² Wohnfläche + Nebengebäude
41462 Neuss
Die vollständige Adresse der Immobilie erhalten Sie vom Anbieter.
Auf Karte anzeigen
Die vollständige Adresse der Immobilie erhalten Sie vom Anbieter.
Finanzierungszertifikat
In nur zwei Minuten zu Ihrem persönlichen Finanzierungszertifkat.
Infos
| Haustyp | Doppelhaushaelfte |
|---|---|
| Wohnfläche ca. | 92 m2 |
| Nutzfläche | 52 m2 |
| Grundstücksfläche | 692 m2 |
| Zimmer | 4 |
| Schlafzimmer | 3 |
| Badezimmer | 1 |
| Garage/Stellplatz | Carport |
| Anzahl Garage/Stellplatz | 1 |
Kosten
| Kaufpreis |
422.000 € |
|---|---|
| Provision |
2,98 % Käuferprovision inkl. MwSt. des beurkundeten Kaufpreises |
Finanzierungsrechner:
Kaufpreis:
600.000 €
Eigenkapital:
600.000 €
Monatliche Rate
0 €
Effektiver Jahreszins
0 %
Sollzinsbindung
10 Jahre
Bausubstanz & Energieausweis
| Baujahr | 1980 |
|---|---|
| Heizungsart | Gas-Heizung |
| Wesentliche Energieträger | Gas |
| Energieausweis | liegt vor |
| Energieausweistyp | Verbrauchsausweis |
| Energieverbrauchskennwert | 164,3 kWh/(m²*a) |
| Energieeffizienzklasse | F |
164,3
kWh/(m²*a)
Energieeffizienzklasse F
- A+
- A
- B
- C
- D
- E
- F
- G
- H
- 0
- 25
- 50
- 75
- 100
- 125
- 150
- 175
- 200
- 225
- >250
Beschreibung des Objekts
Ausstattung
HAUPTGEBÄUDE
+ Doppelhaushälfte
+ sehr ruhige Lage
+ Baujahr 1980
+ ca. 692 m² Grundstück
+ ca. 92 m² Wohnfläche
+ ca. 52 m² Nutzfläche (teilweise ausgebaut) im Kellergeschoss
+ großes Wohnzimmer mit Essbereich und Kamin (ca. 30 m²)
+ praktische Küche (ca. 11 m²)
+ 3 Schlafzimmer im Obergeschoss - eines mit begehbarem Schrank (ca. 13 m², ca. 8 m² und ca. 6 m²)
+ Badezimmer mit Badewanne im Obergeschoss
+ Gäste-WC im Erdgeschoss
+ Vorratskeller (über eine Außentreppe vom Garten erreichbar)
+ Waschküche (über eine Außentreppe vom Garten erreichbar)
+ Hobbyraum / Büro im Kellergeschoss mit eigenem Zugang von der Hausvorderseite
+ WC im Kellergeschoss
+ Dusche im Kellergeschoss
+ Terrasse
+ gepflegter Garten
+ 2 Gartenhäuser
+ überdachter Loungebereich
+ Carport für 2 Fahrzeuge
+ Gaszentralheizung (2002) mit Durchlauferhitzern
+ Photovoltaikanlage (Enpal Mietanlage)
+ doppeltverglaste Kunststofffenster mit Rollläden
NEBENGEBÄUDE
+ Baujahr ca. 1800
+ ehemalige Stallungen
+ komplex im Abriss, da an Nachbargebäude einseitig angebaut
+ geringe Raumhöhe (niedrigste Höhe ca. 1,80 m)
Lage
Die Immobilie befindet sich in der begehrten Wohnlage Morgensternsheide, einem ruhigen und naturnahen Stadtteil von Neuss. Die Umgebung zeichnet sich durch eine gewachsene Nachbarschaft, gepflegte Einfamilienhäuser sowie zahlreiche Grünflächen und Felder aus. Hier genießen Sie eine harmonische Kombination aus ländlicher Idylle und städtischer Infrastruktur.
Dank der Nähe zum Neusser Stadtwald und dem Rhein bieten sich vielfältige Freizeit- und Erholungsmöglichkeiten direkt vor der Haustür – ideal für Spaziergänger, Radfahrer und Naturliebhaber. Gleichzeitig sind Einkaufsmöglichkeiten, Schulen, Kindergärten und Ärzte in wenigen Minuten erreichbar. Auch das Einkaufszentrum „Rheinpark-Center Neuss“ ist nur eine kurze Autofahrt entfernt.
Über die nahegelegenen Autobahnen A57 und A46 erreichen Sie die Städte Düsseldorf, Köln und Krefeld schnell und bequem. Die Neusser Innenstadt sowie der Hauptbahnhof sind in ca. 10–15 Minuten erreichbar und bieten Anschluss an den regionalen und überregionalen Nahverkehr.
Die Morgensternsheide bietet eine seltene Kombination aus naturnahem Wohnen, guter Infrastruktur und exzellenter Verkehrsanbindung – eine ideale Lage für Familien, Berufspendler und Ruhesuchende gleichermaßen.
Sonstige Angaben
Alle Angaben sind ohne Gewähr und basieren ausschließlich auf Informationen, die uns vom Auftraggeber übermittelt wurden. Wir übernehmen keine Gewähr für die Vollständigkeit, Richtigkeit und Aktualität dieser Angaben.
Der Makler-Vertrag mit uns kommt durch schriftliche Vereinbarung oder durch die Inanspruchnahme unserer Maklertätigkeit auf der Basis des Objekt-Exposés und seiner Bedingungen zustande. Die Käufercourtage auf den Kaufpreis einschließlich gesetzlicher Mehrwertsteuer ist bei notariellem Vertragsabschluss verdient und fällig. Thurner + Söhne Immobilien GmbH erhält einen unmittelbaren Zahlungsanspruch gegenüber dem Käufer. Grunderwerbssteuer, Notar- und Gerichtskosten trägt der Käufer.
Grundriss
Erdgeschoss
>
>
Dachgeschoss
>
>
Kellergeschoss
>
>
Adresse
41462 Neuss
Interessante Orte
Preis- und Lageinformationen
Preistrend für Bestandsimmobilien in Neuss