Dieses moderne Einfamilienhaus in Rastede bietet auf 123 m² mit seinen 4 Zimmern ausreichend Platz für eine Familie.
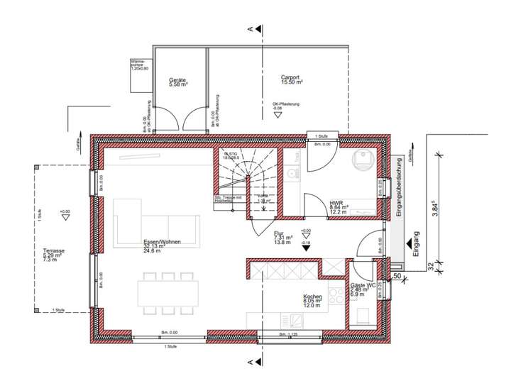
Es wird nach dem neuesten KfW-Standard (KfN) gebaut. Das Erdgeschoss umfasst einen großzügigen Wohn-/Essbereich, an den sich eine offene Küche anschließt. Zusätzlich befinden sich ein Hauswirtschaftsraum (HWR) sowie ein Gäste-WC im Erdgeschoss.
Im Obergeschoss befinden sich drei Zimmer, die flexibel als Schlaf- oder Kinderzimmer genutzt werden können. Ein weitläufiger Flur bietet zudem Platz für einen Schreibtisch oder zusätzlichen Stauraum. Abgerundet wird das Obergeschoss durch ein großzügiges Badezimmer mit sowohl einer Badewanne als auch einer Dusche.
Eine kleine PV-Anlage sowie ein Stellplatz sind inklusive, ein Carport kann auf Wunsch ebenso erworben werden.
Für dieses Objekt kann ein gefördertes Darlehen in Höhe von 100.000 € mit einem günstigen Zinssatz von 2,7 % beantragt werden.
Finanzierungszertifikat
In nur zwei Minuten zu Ihrem persönlichen Finanzierungszertifkat.
Infos
| Haustyp | Einfamilienhaus |
|---|---|
| Etagenzahl | 2 |
| Wohnfläche ca. | 123 m2 |
| Nutzfläche | 22,4 m2 |
| Grundstücksfläche | 348,82 m2 |
| Zimmer | 4 |
| Schlafzimmer | 3 |
| Badezimmer | 1 |
| Garage/Stellplatz | Carport |
| Anzahl Garage/Stellplatz | 1 |
Kosten
| Kaufpreis |
499.999 € |
|---|---|
| Provision | Nein |
Finanzierungsrechner:
Kaufpreis:
600.000 €
Eigenkapital:
600.000 €
Monatliche Rate
0 €
Effektiver Jahreszins
0 %
Sollzinsbindung
10 Jahre
Bausubstanz & Energieausweis
| Baujahr | 2025 |
|---|---|
| Objektzustand | Neuwertig |
| Heizungsart | Wärmepumpe |
Beschreibung des Objekts
Ausstattung
+ Garten
+ Carport auf Wunsch
+ HWR
+ Gäste WC
+ Fußbodenheizung
+ Luft-Wasser-Wärmepumpe
+ PV-Anlage
Lage
Rastede liegt im Landkreis Ammerland, westlich der Stadt Oldenburg in Niedersachsen. Die Gemeinde ist von einer idyllischen Landschaft geprägt, die sowohl aus landwirtschaftlich genutzten Flächen als auch aus Wäldern und Mooren besteht. Rastede ist verkehrsgünstig gelegen, mit einer direkten Anbindung an die Bundesstraße 210, die Oldenburg mit der Nordsee verbindet.
Die Umgebung bietet zahlreiche Freizeitmöglichkeiten, darunter Wander- und Radwege, sowie Sehenswürdigkeiten wie das Schloss Rastede, ein historisches Gebäude, das das Zentrum der Ortschaft prägt. Der Ort ist vor allem für seine ruhige, ländliche Atmosphäre und seine Nähe zur Großstadt Oldenburg bekannt, die in etwa 15 Minuten mit dem Auto erreicht werden kann.
Sonstige Angaben
Unsere Immobilienangebote verstehen sich freibleibend und unverbindlich. Zwischenvermittlung ausdrücklich vorbehalten. Die Angaben zum Objekt basieren auf erteilten Informationen Dritter. Für die Richtigkeit und Vollständigkeit kann deshalb keine Haftung übernommen werden.
Wir können Anfragen nur mit vollständig angegebenem Namen, Adresse und Telefonnummer bearbeiten. Wir bitten um Ihr Verständnis.
Die erforderlichen Energieangaben wurden entweder bereits im Exposé eingetragen oder der Energieausweis befindet sich derzeit in Bearbeitung.
Alle in dieser Anzeige gemachten Angaben, insbesondere zu den Energieverbrauchswerten, beruhen auf den Informationen aus dem uns vorliegenden Energieausweis. Trotz sorgfältiger Prüfung können unvollständige oder fehlende Angaben nicht vollständig ausgeschlossen werden. Für die Richtigkeit und Vollständigkeit der Angaben übernehmen wir daher keine Gewähr. Der vollständige Energieausweis kann jederzeit angefordert und eingesehen werden. Sollten Angaben im Exposé fehlen oder unvollständig sein, bitten wir höflich um Mitteilung, damit wir diese ergänzen können. Maßgeblich sind in jedem Fall die Daten aus dem vorliegenden Energieausweis. Sollte dieser in Bearbeitung sein, werden die Angaben umgehend nach Erhalt des Ausweises aufgenommen.
Für dieses Objekt befindet sich der Energieausweis aktuell in Bearbeitung //
Grundriss
Grundriss OG
>
>
Grundriss EG
>
>
Adresse
Buchenstraße 24d, 26180 Rastede
Interessante Orte
Preis- und Lageinformationen
Preistrend für Bestandsimmobilien in Rastede