"Viele tausend Bauherren haben sich Ihren Wunsch vom eigenen Haus bereits mit uns erfüllt!
Unsere Häuser sind völlig flexibel mit veränderbaren Grundrissen und variablen Gestaltungsmöglichkeiten, Sie können Ihr Haus somit vollkommen auf Ihre Bedürfnisse anpassen und planen.
Wohnnebenkosten sind dank dem massa-ecoBalance-System ebenfalls dauerhaft niedrig! Klimawandel und damit verbundene steigende Energiekosten werden durch unsere Haustechnik von Markenherstellern mit zukunftsweisender Technologie reduziert.
Weiterer Service von uns:
Unser Bemusterungszentrum unterstützt Sie kompetent bei der Wahl der Materialien für einen hochwertigen aber kostengünstigen Innenausbau.
-Abbildungen mit Sonderwünschen"
Modern & clever bauen mit Eigenleistung - Ihre Wohlfühl-Oase für die ganze Familie
55768 Großlittgen
Die vollständige Adresse der Immobilie erhalten Sie vom Anbieter.
Auf Karte anzeigen
Die vollständige Adresse der Immobilie erhalten Sie vom Anbieter.
Finanzierungszertifikat
In nur zwei Minuten zu Ihrem persönlichen Finanzierungszertifkat.
Infos
| Haustyp | Einfamilienhaus |
|---|---|
| Wohnfläche ca. | 145 m2 |
| Grundstücksfläche | 650 m2 |
| Zimmer | 5 |
| Schlafzimmer | 4 |
| Badezimmer | 2 |
Kosten
| Kaufpreis |
289.499 € |
|---|---|
| Provision | Nein |
Finanzierungsrechner:
Kaufpreis:
600.000 €
Eigenkapital:
600.000 €
Monatliche Rate
0 €
Effektiver Jahreszins
0 %
Sollzinsbindung
10 Jahre
Bausubstanz & Energieausweis
| Baujahr | unbekannt |
|---|---|
| Bauphase | Haus in Planung (projektiert) |
| Objektzustand | Erstbezug |
| Qualität der Austattung | Gehoben |
Beschreibung des Objekts
Ausstattung
+ Exklusives Ausbauhaus
+ Grundstück
+ Bodenplatte inkl. Bodengutachten
+ Freiraum Wohnraumhöhe 2,75m serienmäßig
+ hochwertige 3-fach verglaste Wärmeschutzfenster
+ Alu- Rollläden ohne Aufpreis
+ moderne Haustüren zur Auswahl
+ mineralischer Struktur Außenputz
+ Aluminium Außenfensterbänke
+ Dacheindeckung, Dachrinne und Fallrohr aus Zink
+ inklusive Architektenleistungen (Genehmigungsplanung und Bauantrag)
+ von außen fix und fertig
+ perfekt abgestimmte Ausbaupakete
+ Haustechnik von Markenherstellern
+ inklusive Be- und Entlüftungsanlage
+ moderne Treppe - verschiedene Modelle zur Auswahl
zzgl. Finish - Pakete & Baunebenkosten
- Errichtung und Fertigstellung nach Absprache - Abb. mit Sonderwünschen.
Sonstige Angaben
Ihr Ausbauhaus-Marktführer
mit über 40 Jahren Erfahrung
Du weißt schon ganz genau, wie dein Traumhaus aussehen soll?
Dann werde jetzt Bauherr und baue genau dieses Haus als Ausbauhaus mit wertvoller Eigenleistung.
Bauherren sparen mit einem Ausbauhaus bares Geld und erschaffen sich ein Eigenheim nach Maß, auf den Quadratmeter genau nach eigenen Vorstellungen!
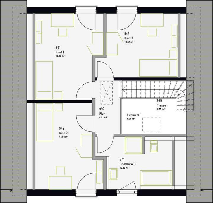
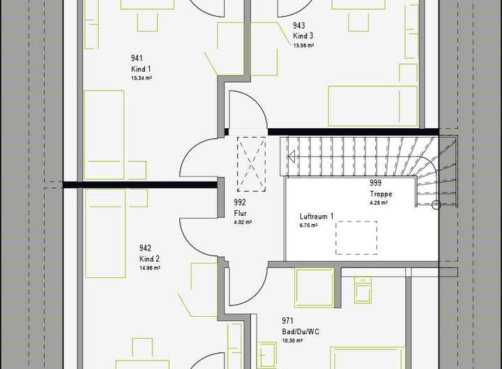
Grundriss
Erdgeschoss
>
>
Dachgeschoss
>
>
Erdgeschoss
>
>
Dachgeschoss
>
>
Adresse
55768 Großlittgen
Interessante Orte
Preis- und Lageinformationen
Preistrend für Bestandsimmobilien in Großlittgen