Entdecken Sie dieses charmante Einfamilienhaus in der idyllischen Gemeinde Reppenstedt, das auf einem 704 m² großen Pfeifenstilgrundstück zum Kauf bereitsteht. Das im Jahr 1983 in Massivbauweise errichtete Haus bietet auf ca. 141 m² Wohnfläche ausreichend Platz für die gesamte Familie. Die Immobilie verfügt über vier Zimmer, darunter drei geräumige Schlafzimmer, zwei Badezimmer, eine offene Einbauküche sowie einen Hauswirtschaftsraum.
Beheizt wird die Immobilie über eine Erdreichwärmepumpe aus dem Baujahr 1983. Die aktuelle Fußbodenheizung würde in Kombination mit einer neuen Wärmepumpe eine effiziente, gleichmäßige Wärme bei niedrigen Vorlauftemperaturen bieten. So wäre eine neue Wärmepumpe ideal für eine regenerative, kostensparende Modernisierung.
Tauchen Sie ein in das Potenzial dieser Immobilie und gestalten Sie Ihr neues Zuhause ganz nach Ihren Vorstellungen in einer ruhigen und doch gut angebundenen Lage von Reppenstedt.
EFH in ruhiger Lage in Reppenstedt
21391 Reppenstedt
Die vollständige Adresse der Immobilie erhalten Sie vom Anbieter.
Auf Karte anzeigen
Die vollständige Adresse der Immobilie erhalten Sie vom Anbieter.
Finanzierungszertifikat
In nur zwei Minuten zu Ihrem persönlichen Finanzierungszertifkat.
Infos
| Haustyp | Einfamilienhaus |
|---|---|
| Wohnfläche ca. | 141 m2 |
| Grundstücksfläche | 704 m2 |
| Bezugsfrei ab | sofort |
| Zimmer | 4 |
| Schlafzimmer | 3 |
| Badezimmer | 2 |
| Garage/Stellplatz | Außenstellplatz |
| Anzahl Garage/Stellplatz | 2 |
Kosten
| Kaufpreis |
435.000 € |
|---|---|
| Provision |
3,57 % inkl. MwSt. |
Finanzierungsrechner:
Kaufpreis:
600.000 €
Eigenkapital:
600.000 €
Monatliche Rate
0 €
Effektiver Jahreszins
0 %
Sollzinsbindung
10 Jahre
Bausubstanz & Energieausweis
| Baujahr | 1983 |
|---|---|
| Objektzustand | Renovierungsbedürftig |
| Heizungsart | Wärmepumpe |
| Wesentliche Energieträger | Strom |
| Energieausweis | liegt vor |
| Energieausweistyp | Bedarfsausweis |
| Energieverbrauchskennwert | 67,0 kWh/(m²*a) |
| Energieeffizienzklasse | B |
67,0
kWh/(m²*a)
Energieeffizienzklasse B
- A+
- A
- B
- C
- D
- E
- F
- G
- H
- 0
- 25
- 50
- 75
- 100
- 125
- 150
- 175
- 200
- 225
- >250
Beschreibung des Objekts
Ausstattung
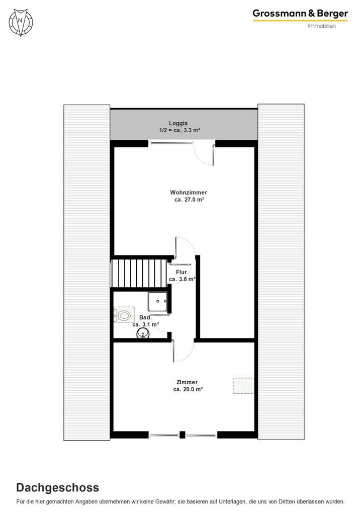
Beim Betreten des Objekts gelangen Sie über drei Stufen seitlich in den Eingangsbereich der Immobilie. Hier erwartet Sie eine offene Küche, die harmonisch in den großzügigen Wohn- und Essbereich übergeht und direkten Zugang zur einladenden Südterrasse und dem gepflegten Garten bietet. Ein Kamin sorgt im Wohnzimmer für gemütliche Abende in den kälteren Monaten. Im hinteren Bereich des Erdgeschosses befinden sich zudem ein Gäste-WC, ein hell gefliestes Duschbad, ein Schlafzimmer und ein Hauswirtschaftsraum. Das Dachgeschoss ist über eine geflieste Steintreppe erreichbar und offenbart ein geräumiges Schlafzimmer sowie ein zusätzliches Duschbad aus dem Baujahr. Besonders beeindruckend ist der große Wohn- oder Arbeitsbereich mit Zugang zu einer charmanten Loggia, der ideale Möglichkeiten für unterschiedliche Nutzungskonzepte bietet. Außerdem sind in diesem Raum bereits Anschlüsse für eine Küche vorhanden, sodass Sie nach Einbau einer Küche, die Immobilie als Zweifamilienhaus nutzen können.
Komplettiert wird das Angebot durch zwei Außenstellplätze sowie eine Garage mit elektrischem Rolltor, die zusätzlichen Komfort und Sicherheit bieten.
Lage
Reppenstedt ist eine Gemeinde mit ca. 7.700 Einwohnern im Landkreis Lüneburg. Die Gemeinde blickt auf eine über 800-jährige Geschichte zurück und liegt etwa 2,5 km westlich der Stadt Lüneburg.
Der Ort ist über verschiedene Land- und Kreisstraßen an das Verkehrsnetz angebunden. Über die Buslinie 5013 ist Reppenstedt verbunden mit der Hansestadt Lüneburg. Die Linie fährt zum Hauptbahnhof Lüneburg und von hier aus erreicht man die Hamburger Innenstadt in ca. 25 Minuten.
Die Gemeinde Reppenstedt verfügt über eine Kinderkrippe, einen Kindergarten, eine Kindertagesstätte und eine Grundschule. Weiterführende Schulen befinden sich in der nahegelegenen Hansestadt Lüneburg.
Eine Vielzahl an Freizeitangeboten bieten die Vereine in Reppenstedt. Hier ist insbesondere der TuS Reppenstedt zu nennen, der von Mitgliedern der Freiwilligen Feuerwehr Reppenstedt gegründet wurde und vielfältige Sportarten im Angebot hat.
Grundriss
Grundriss EG
>
>
Grundriss DG
>
>
Adresse
21391 Reppenstedt
Interessante Orte
Preis- und Lageinformationen
Preistrend für Bestandsimmobilien in Reppenstedt