BITTE KEINE ANFRAGEN VON MAKLERN MEHR. Dieses außergewöhnliche Stadthaus wurde von einem Architektenpaar individuell geplant und besticht durch seine offene, lichtdurchflutete Bauweise. Es ist ideal für Paare oder kleine Familien mit bis zu drei Personen, die modernes Wohnen in durchdachter Architektur schätzen. Erdgeschoss – Wohnen mit Flair Im Erdgeschoss verschmelzen Wohn- und Essbereich mit dem Wintergarten zu einer großzügigen Einheit, die direkt in die stilvolle (erst 2023 neu eingebaute) Küche übergeht. Ein Gäste-WC, eine einladende Eingangsdiele mit praktischen Einbauschränken sowie ein Technik- und Hauswirtschaftsraum komplettieren diese Ebene mit großzügigen Stauräum. Zwei Schiebetüren öffnen den Wintergarten zur Terrasse hin und führen in den geschützten Hof. Zusätzlich steht im Nachbargebäude ein separater Keller-/Vorratsraum zur Verfügung. Beide Häuser stehen auf einem Grundstück und bilden eine Gemeinschaft (WEG). Obergeschoss – Rückzugsort für die Familie Die Schlafetage bietet ein komfortables, klimatisiertes Elternschlafzimmer, ein kleines Zimmer für Kind oder Gäste sowie ein Ankleidezimmer. Die bodengleiche Dusche sowie der direkt Zugang aus dem Ankleidezimmer sorgen für hohen Komfort. Dachgeschoss – Arbeiten und Entspannen mit Aussicht Das ausgebaute, gedämmte sowie klimatisierte Dachgeschoss ist ein echtes Highlight. Großzügige Panorama-Dachflächenfenster eröffnen einen herrlichen Blick über die Dächer von Rambach und die umliegenden Wälder. Hier finden Sie den idealen Raum für ein Homeoffice, ein Atelier oder ein zweites Wohn-/Fernsehzimmer. Ein seitlicher Abstellraum und ein zusätzlicher Dachboden bieten wertvolle Staumöglichkeiten. Die Fußbodenheizung auf allen Geschossen rundet das Komfortangebot ideal ab. Renovierungen & Highlights - 2013: umfassende Innenrenovierung - 2015: Fassade frisch gestrichen - 2023: neue hochwertige Einbauküche, Eingangstür & Photovoltaikanlage mit Speicher und Wallbox für E-Auto - 2024: Einbau Klimaanlage
Provisionsfrei: Schönes Architektenhaus in Wiesbaden-Rambach
65207 Wiesbaden
Die vollständige Adresse der Immobilie erhalten Sie vom Anbieter.
Auf Karte anzeigen
Die vollständige Adresse der Immobilie erhalten Sie vom Anbieter.

Finanzierungszertifikat
In nur zwei Minuten zu Ihrem persönlichen Finanzierungszertifkat.
Infos
Haustyp | Einfamilienhaus |
---|---|
Etagenzahl | 3 |
Wohnfläche ca. | 142 m2 |
Nutzfläche | 39 m2 |
Grundstücksfläche | 160 m2 |
Bezugsfrei ab | 1.11.2025 |
Zimmer | 5 |
Schlafzimmer | 2 |
Badezimmer | 2 |
Garage/Stellplatz | Garage |
Anzahl Garage/Stellplatz | 2 |
Kosten
Kaufpreis |
690.000 € |
---|---|
Provision | Nein |
Finanzierungsrechner:
Kaufpreis:
600.000 €
Eigenkapital:
600.000 €
Monatliche Rate
0 €
Effektiver Jahreszins
0 %
Sollzinsbindung
10 Jahre
Bausubstanz & Energieausweis
Baujahr | 1985 |
---|---|
Bauphase | Haus fertig gestellt |
Objektzustand | Gepflegt |
Qualität der Austattung | Gehoben |
Heizungsart | Gas-Heizung |
Wesentliche Energieträger | Gas |
Energieausweis | liegt zur Besichtigung vor |
Beschreibung des Objekts
Lage
Wiesbaden - Rambach. Schnelle Verkerhsanbindung über die B455 nach Wiesbaden und zu den Autobahnen A3 und A66. Die Bushaltestelle ist ca. 250 m entfernt. Die über die Stadtgrenzen bekannte Gaststätte "Zum Hirschen" ist ebenfalls in nur wenigen Minuten zu Fuß erreichbar.
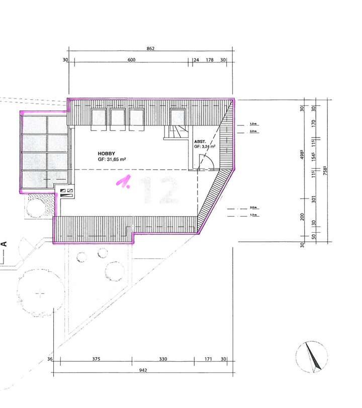
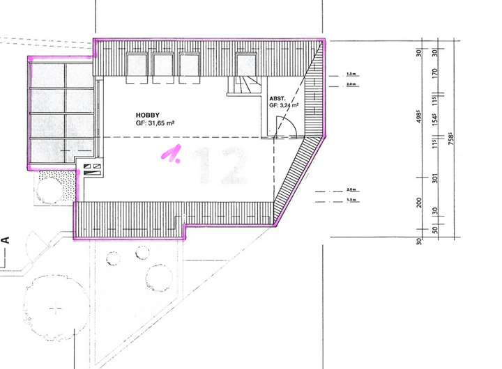
Grundriss
EG
>

OG1
>

OG2
>

Adresse
65207 Wiesbaden
Interessante Orte
Preis- und Lageinformationen
Preistrend für Bestandsimmobilien in Rambach