Objektbeschreibung
Großzügige Villa in traumhafter Hanglage mit Einliegerwohnung und großem Wintergarten. Das Gesamte Haus wird den Käufern unbewohnt übergeben.
Diese eindrucksvolle Villa befindet sich in ruhiger, naturnaher Lage auf einem weitläufigen, grün eingebetteten Grundstück und vereint großzügiges Wohnen mit flexibler Raumgestaltung. Die Architektur folgt dem natürlichen Gelände – durch die leichte Hanglage ergeben sich charmante Ebenen mit direktem Zugang zum Garten sowie eine optimale Trennung von Haupt- und Einliegerbereich.
⸻
Raumaufteilung & Nutzungsmöglichkeiten
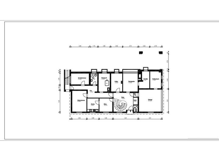
Das Haus erstreckt sich über zwei Etagen. Durch die Hanglage liegt der Hauseingang auf Erdgeschossniveau und der hintere Teil dieser Etage im Erdreich mit Kellerschachtfenstern. Alles liegt auf einer Ebene, man geht also nicht "runter in den Keller".
Im Eingangsbereich empfängt sie eine geschwungene Treppe mit repräsentativem Charakter, die offen in das Obergeschoss führt. Auf dieser unteren Ebene befinden sich außerdem:
- eine separate Einliegerwohnung mit 72 m² Wohnfläche und 3 Zimmern, Duschbad, Küche und eigenem Eingang seitlich am Gebäude
- die Eingangsdiele mit Garderobennische
- ein Gäste-WC
- ein Vorratsraum und Hauswirtschaftsraum
- der Heizungssraum
- ein Party- oder Hobbyraum
- eine Vorratsküche
- ein zusätzlicher Raum zur individuellen Nutzung (z. B. Büro, Fitness)
- die großzügige Doppelgarage mit direktem Hauszugang
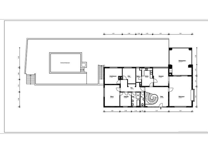
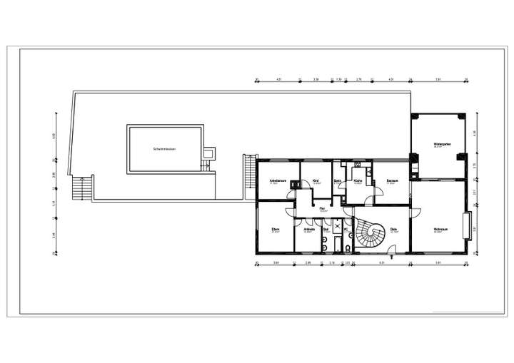
Das Obergeschoss bildet mit 229 m² Wohnfläche den Hauptwohnbereich der Villa. Hier erwarten Sie:
- drei geräumige Schlafzimmer (ca. 21 m², 18 m² und 14 m²)
- ein Ankleidezimmer (ca. 10 m²)
- ein Tageslichtbad sowie ein separates Gäste-WC
- eine Küche (ca. 13 m²) mit angrenzender Speisekammer
- ein Esszimmer (ca. 17 m²) mit Verbindung zur Küche und zum Wohnzimmer
- ein großzügiges Wohnzimmer (ca. 46 m²) mit Zugang in den Wintergarten
- ein lichtdurchfluteter Wintergarten (ca. 35 m²) mit Kamin und Zugang zur Sonnenterrasse und in den Garten
Dazu kommt noch die große Diele, das Gäste WC und die Nutzräume im Erdgeschoss mit diesen beträgt die Wohnfläche des Haupthauses (ohne Einliegerwohnung) 252 m² zuzüglich 93 Nutzfläche.
Dank der Hanglage gelangt man vom Wintergarten und der Küche ebenerdig in den Garten – ideal für entspanntes Wohnen auf einer Ebene.
⸻
Flexible Einliegerwohnung - (ab Januar 2026 ebenfalls frei)
Die separate Einliegerwohnung verfügt über einen eigenen Außenzugang sowie einen Zugang aus dem Haupthaus. Sie eignet sich ideal als Mehrgenerationenlösung, Gäste- oder Au-pair-Bereich, Homeoffice oder zur Vermietung – maximale Flexibilität für Ihre Wohn- und Lebenssituation.
⸻
Weitere Highlights:
• Doppelgarage (ca. 30 m²) mit direktem Zugang ins Haus
• Kleines Gartenhaus, vielseitig nutzbar (z. B. als Gästehaus oder Atelier)
• Ruhige, naturnahe Lage mit viel Privatsphäre
• Großzügiges, pflegeleicht angelegtes Grundstück
• Zeitlose Architektur mit hohem Gestaltungspotenzial
⸻
Diese großzügige Villa bietet eine seltene Kombination aus Rückzug, Raumvielfalt und Gestaltungsmöglichkeiten – ob für Familien, Freiberufler oder Mehrgenerationenwohnen. Das Haus überzeugt durch seine durchdachte Struktur, vielseitige Nutzungsmöglichkeiten und die gehobene Wohnlage im Grünen.
Wie auf den Fotos zu sehen ist, besteht ein Renovierungs- und Sanierungsbedarf. Das Bad im Haupthaus könnte man zum Beispiel bei der Sanierung vergrößern, indem man die Wand zu dem aktuellen WC raus nimmt, dann kommt man auf rund 12 m².
Auf dem Foto "Luftansicht" sieht man rechts neben dem Grundstück der Villa ein Bürogebäude, zu diesem unterhalb der Villa noch Parkplätze gehören. Das sind die einzigen, unmittelbaren Nachbarn und die sind in der Regel Abends und am Wochenende nicht da.
Großzügige Villa in traumhafter Hanglage mit Wintergarten und Einliegerwohnung
63768 Hösbach
Die vollständige Adresse der Immobilie erhalten Sie vom Anbieter.
Auf Karte anzeigen
Die vollständige Adresse der Immobilie erhalten Sie vom Anbieter.
Finanzierungszertifikat
In nur zwei Minuten zu Ihrem persönlichen Finanzierungszertifkat.
Infos
| Haustyp | Villa |
|---|---|
| Etagenzahl | 2 |
| Wohnfläche ca. | 325 m2 |
| Nutzfläche | 93 m2 |
| Grundstücksfläche | 5.640 m2 |
| Bezugsfrei ab | nach Vereinbarung |
| Zimmer | 8 |
| Schlafzimmer | 5 |
| Badezimmer | 2 |
| Garage/Stellplatz | Garage |
| Anzahl Garage/Stellplatz | 2 |
Kosten
| Kaufpreis |
830.000 € |
|---|---|
| Provision |
3,57 % des beurkundeten Kaufpreises inkl. MwSt. |
Finanzierungsrechner:
Kaufpreis:
600.000 €
Eigenkapital:
600.000 €
Monatliche Rate
0 €
Effektiver Jahreszins
0 %
Sollzinsbindung
10 Jahre
Bausubstanz & Energieausweis
| Baujahr | 1962 |
|---|---|
| Objektzustand | Gepflegt |
| Heizungsart | Zentralheizung |
| Wesentliche Energieträger | Gas |
| Energieausweis | liegt vor |
| Energieausweistyp | Bedarfsausweis |
| Energieverbrauchskennwert | 281,7 kWh/(m²*a) |
| Energieeffizienzklasse | H |
281,7
kWh/(m²*a)
Energieeffizienzklasse H
- A+
- A
- B
- C
- D
- E
- F
- G
- H
- 0
- 25
- 50
- 75
- 100
- 125
- 150
- 175
- 200
- 225
- >250
Beschreibung des Objekts
Ausstattung
* wunderschönes Grundstück am Waldrand
* freistehende Villa
* 35 m² großer Wintergarten
* Schlafzimmer mit Ankleideraum
* große Terrasse
* Doppelgarage mit elektrischen Toren und Zugang ins Haus
* Kamin im Wintergarten und dem Partykeller
* Pool (seit geraumer Zeit ungenutzt)
* 3 Zimmer Einliegerwohnung mit 72m² Wohnfläche und eigenem Eingang
* Kleines Gartenhaus, vielseitig nutzbar (z. B. als Gästehaus oder Atelier)
* Gas-Zentralheizung (Brennwertkessel) erneuert im Jahr 2013
* im Jahr 2013 wurden im Außenbereich die Wasser und Kanalrohre, die Gas- und Stromleitungen, Telefonleitungen und Glasfaser zum Haus erneuert, inklusive der jeweiligen Anschlüsse. Auch die Hauszufahrt wurden bereits neu gemacht.
Lage
Die Villa liegt in einem schicken Stadtteil von Hösbach bei Aschaffenburg, dort am Rande gelegen, bis auf das Bürogebäude nebenan, im Prinzip in Alleinlage am Waldrand. Der Ortsteil ist für seine ruhige und grüne Umgebung bekannt. Der Stadtteil zeichnet sich durch seine gepflegten Gärten, breiten Straßen und ansprechende Architektur aus. Hier findet man zahlreiche Einfamilienhäuser und Villen, die für gehobene Wohnansprüche stehen. Die Lage ist ideal für Familien, die nach einer ruhigen und dennoch gut angebundenen Umgebung suchen.
Öffentliche Verkehrsmittel:
- Zuglinien:
Bahnhof 1,5km
RE54 FFM-Bamberg
RE55 FFM-Würzburg
RB58 FFM Stadion-Laufach
RB79 Aschaffenburg-Gemünden
- Bus:
am Bahnhof 1,5km
42 Rabenhausen-AB Hauptbahnhof
43 voh hier-AB Hauptbahnhof
Autobahnanbindung:
A3 in 1,5km
Flughafen
- der Flughafen ist mit dem Auto außerhalb des Berufsverkehrs in ca.30 Minuten erreicht
Einkaufsmöglichkeiten:
- Penny, Norma, Edeka, Lidl, Globus ca.1,8km
- Edeka, Aldi, dm, Rewe 2,3km
- Penny, Lidl, Rossmann, Spielwarengeschäft ca. 4,4km
Schulen:
- Grund + Mittelschule 1,5km
- 2 weiterführende Schulen 2,4km
Kindergärten
- Kindergarten 850m, 1,6km
Hösbach ist eine charmanter Ort in Unterfranken, in der Nähe von Aschaffenburg, Er ist für seine historische Altstadt und malerische Landschaft bekannt. Der Ort bietet eine gute Infrastruktur mit Einkaufsmöglichkeiten, Schulen und Freizeiteinrichtungen. Durch die Nähe zur Autobahn ist man schnell in den umliegenden Städten wie Aschaffenburg oder Würzburg. Die Lage am Fuße des Spessart ermöglicht zudem vielfältige Freizeitaktivitäten in der Natur.
Die Region um Hösbach besticht durch ihre Vielseitigkeit und Schönheit. Der Spessart lädt zu ausgedehnten Wanderungen und Radtouren ein und bietet zahlreiche Ausflugsmöglichkeiten. Die umliegenden Weinberge und Schlösser verleihen der Region ein besonderes Flair. Die gute Anbindung an größere Städte wie Frankfurt und Würzburg macht Hösbach zu einem attraktiven Wohnort für Naturliebhaber und Stadtmenschen gleichermaßen.
Sonstige Angaben
Wir arbeiten mit einem qualifizierten Alleinverkaufsauftrag für die Eigentümer und stehen Ihnen gerne sowohl für Besichtigungstermine als auch für Vorabinformationen zur Verfügung!
Im weiteren Verlauf können wir Ihnen gerne, wenn gewünscht, sehr gute unabhängige Partner für die Immobilienfinanzierung empfehlen.
Die zur Verfügung gestellten 3D-Pläne mit Einrichtungs- und Ausstattungsbeispielen sind im Grundsatz bezüglich der Aufteilung stimmig, dennoch wird keine Gewähr für die Richtigkeit der Angaben übernommen.
Einige Fotos von diversen Räumen und der Terrasse wurden digital eingerichtet, diese befinden sich auch in dem Video. Sie dienen sowohl als Einrichtungs- als auch Modernisierungsvorschlag. Das Bad wurde bei dem digitalen Foto mit der daneben liegenden Gäste Toilette zusammen gelegt und entsprechend vergrößert.
HAFTUNG: Wir weisen darauf hin, dass die von uns weitergegebenen Objektinformationen, Unterlagen, Pläne usw. vom Verkäufer oder Bauträger stammen. Eine Haftung für die Richtigkeit oder Vollständigkeit der Angaben übernehmen wir aufgrund dessen nicht. Es obliegt daher unseren Kunden, die darin enthaltenen Objektinformationen und Angaben auf ihre Richtigkeit hin zu überprüfen. Alle Immobilienangebote sind freibleibend und vorbehaltlich Irrtümer, Zwischenverkauf oder sonstiger Zwischenverwertung.
Grundriss
3D-Plan Erdgeschoss
>
>
3D-Plan Obergeschoss
>
>
Grundriss EG
>
>
Grundriss OG
>
>
Adresse
63768 Hösbach
Interessante Orte
Preis- und Lageinformationen
Preistrend für Bestandsimmobilien in Hösbach