Das Grundstück hat eine Größe von 422qm und befindet sich auf der Hauptstraße.
Auf dem Grundstück befindet sich eine ehemalige Tankstelle. Der Tank wurde entfernt und
der Boden erneuert. Vorsichtshalbe wurde eine Bodenuntersuchung im Jahr 1999
erstellt.
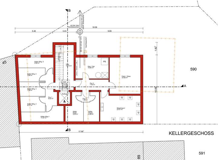
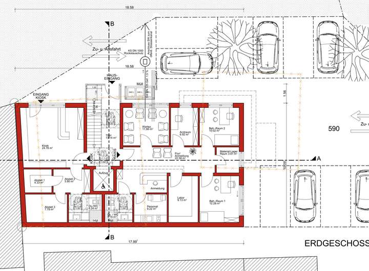
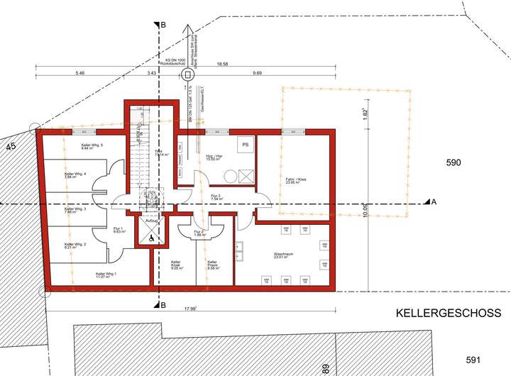
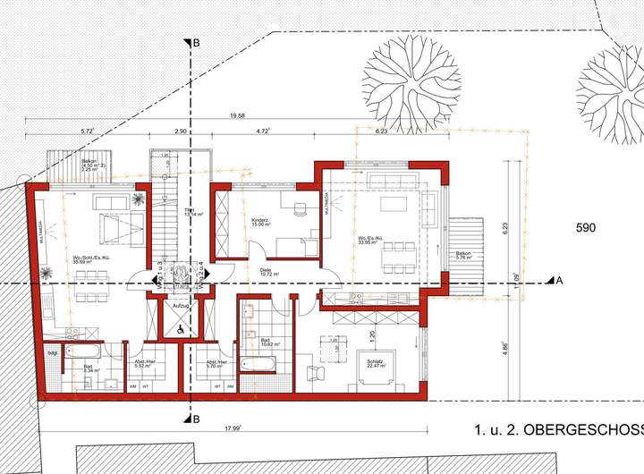
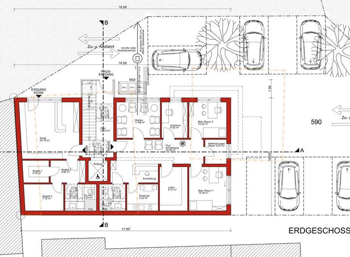
Das Grundstück bietet genug Fläche für eine Praxis, einen kleinen Einzelhandel und 5
Wohneinheiten mit Spielfläche und Stellplätze. Das Mehrfamilienhaus wird in einer
moderner und prachtvoller Bauweise bebaut und streckt sich auf 3 Etagen mit Flachdach.
Das MFH wird barrierefrei sein und Zugang für jeden anbieten.
Die Bauvoranfrage wurde an die zuständige Bauaufsicht eingereicht.
Baugrundstück für 5 WE und Praxis in Zentraler Lage von Viersen
41747 Viersen
Die vollständige Adresse der Immobilie erhalten Sie vom Anbieter.
Auf Karte anzeigen
Die vollständige Adresse der Immobilie erhalten Sie vom Anbieter.
Finanzierungszertifikat
In nur zwei Minuten zu Ihrem persönlichen Finanzierungszertifkat.
Infos
| Vermarktungsart | Kaufen |
|---|---|
| Grundstücksfläche | 422 m2 |
| Verfügbar ab | Sofort |
Kosten
| Miete pro Jahr |
460.000 € |
|---|---|
| Provision |
2,38 Beim Abschluss eines notariellen Kaufvertrags über die angebotene Immobilie fällt eine Maklerprovision in Höhe von 2% des Kaufpreises zzgl. der gesetzlichen Mehrwertsteuer an. Die Provision ist verdient und fällig mit Unterzeichnung des Kaufvertrags und zahlbar durch den Käufer gemäß den vertraglichen Vereinbarungen. |
Finanzierungsrechner:
Kaufpreis:
600.000 €
Eigenkapital:
600.000 €
Monatliche Rate
0 €
Effektiver Jahreszins
0 %
Sollzinsbindung
10 Jahre
Beschreibung des Objekts
Lage
Das Objekt befindet sich in einer zentralen Lage von Viersen, im Ortsteil Viersen Mitte. Das Objekt liegt in Nähe des Hammer Bachs mit kleiner Parkanlage. Die Umgebung zeichnet sich durch eine optimale Infrastruktur aus. Umfangreiche Kultur-, Bildungs- und Freizeitangebote, kurze Wege sowie eine gute Verkehrsinfrastruktur gestaltet das Leben in Viersen angenehm und abwechslungsreich. Viersen, landschaftlich reizvoll am Niederrhein gelegen, mit guten wohn und Arbeitsmöglichkeiten, kombiniert mit Möglichkeiten der Stadt sowie Freizeitangebote in der Natur.
Geschäfte des täglichen Bedarfs sind im Umfeld kurzzeitig erreichbar. Die Fußgängerzone der Stadt Viersen sowohl als auch M’Gladbach ist in wenigen Fahrminuten schnellst erreichbar. Viele weitere Städte wie Düsseldorf sind in kurzer Fahrzeit über die Autobahnen A44 und A52 schnell
erreichbar. Die A61 liegt in unmittelbarer Nähe und führt nach Venlo oder über anschließende Autobahnen Richtung Köln und Aachen. Es sind fast alle Schulformen vertreten. städtische Grundschulen, Hauptschulen, Realschulen, Gymnasien, eine Gesamtschule und ein Weiterbildungskolleg (Abendgymnasium), Berufskolleg, Kreismusikschule sowie eine Kreisvolkshochschule.
Im Radius von 30 bis 50 km liegen die Metropolen wie Düsseldorf, Köln, Essen und Duisburg. Der nächste internationale Flughafen (DUS) und der Duisburger Hafen ist in weniger als 30 Minuten erreichbar.
Viersen ist eine kleine Stadt und ist mit großen Entwicklungen dabei sich ein neues Bild von sich selbst zu erstellen.
Sonstige Angaben
Die Anfrage zur Erteilung der erforderlichen Baugenehmigung wurde bei der zuständigen Bauaufsichtsbehörde eingereicht und befindet sich derzeit in Prüfung. Sobald eine Rückmeldung seitens der Behörde vorliegt, werden die weiteren Schritte entsprechend veranlasst.