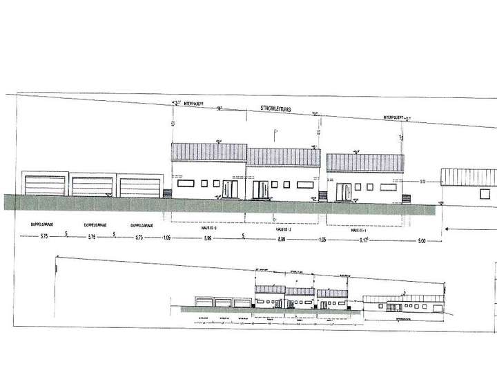
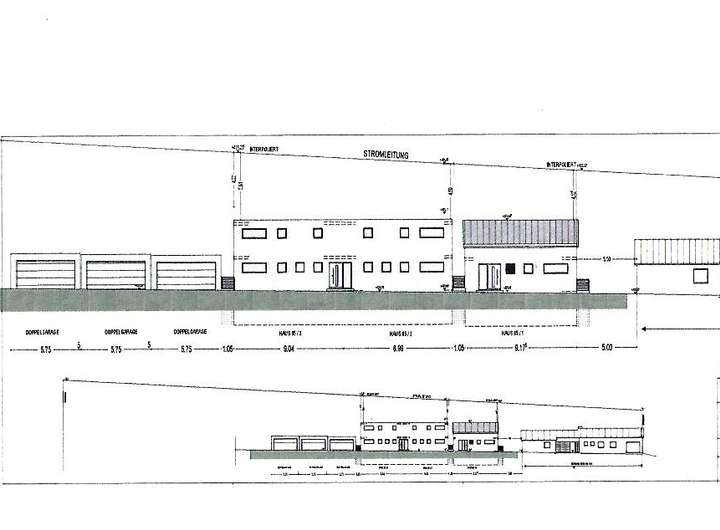
Das Grundstück befindet sich in einer ruhigen 30-iger Zone in sonniger Lage von Geislingen. (Weingärten) . Der Bauplatz, mit Zugang zum Wasser, bietet verschiedene Bebauungsmöglichkeiten die bereits vom Architekten geplant wurden. (Siehe Bilder)
Mehr unter www.neckartal.immo!
Grundstück in sonniger und ruhiger Lage von Geislingen!
73312 Geislingen an der Steige
Die vollständige Adresse der Immobilie erhalten Sie vom Anbieter.
Auf Karte anzeigen
Die vollständige Adresse der Immobilie erhalten Sie vom Anbieter.
Finanzierungszertifikat
In nur zwei Minuten zu Ihrem persönlichen Finanzierungszertifkat.
Infos
| Vermarktungsart | Kaufen |
|---|---|
| Grundstücksfläche | 661 m2 |
| Erschließung | Erschlossen |
| Bebaubar nach | Bebauungsplan |
Kosten
| Miete pro Jahr |
207.000 € |
|---|---|
| Provision |
3,57 % inkl. 19% MwSt. |
Finanzierungsrechner:
Kaufpreis:
600.000 €
Eigenkapital:
600.000 €
Monatliche Rate
0 €
Effektiver Jahreszins
0 %
Sollzinsbindung
10 Jahre
Beschreibung des Objekts
Lage
Geislingen an der Steige ist eine Stadt in Baden-Württemberg, im Südosten der Region Stuttgart etwa 15 km südöstlich von Göppingen bzw. 27 km nordwestlich von Ulm. Sie ist nach der Kreisstadt Göppingen die zweit größte Stadt des Landkreises Göppingen und bildet ein Mittelzentrum für die umliegenden Gemeinden. Das Grundstück befindet sich im Ortsteil Altenstadt, in einer sehr ruhigen 30 Zone mit Zugang zum Wasser.
Schulen, Bushaltestelle und Einkaufsmöglichkeiten wie Bäcker und Metzger sind fußläufig erreichbar.
Sonstige Angaben
Diese Immobilie wird von uns im Alleinauftrag vermakelt. Die Maklerprovision in Höhe von 3,57 % inkl. MwSt. aus dem notariell beurkundeten Kaufpreis ist fällig und zahlbar bei der notariellen Beurkundung des Kaufvertrages oder bei einem Nachweis der Immobilie durch uns. Eine Weitergabe der Daten an Dritte ist nicht gestattet. Verhandlungen und Innenbesichtigungen sind nur in unserer Anwesenheit gestattet. Sollte Ihnen das Objekt bereits anderweitig angeboten worden sein, so teilen Sie uns dies bitte innerhalb von 5 Tagen schriftlich unter Angabe der Quelle mit, ansonsten gilt der Nachweis durch die Firma Neckartal Immobilien GmbH als anerkannt. Alle Angaben beruhen auf Aussagen des Verkäufers, für die Richtigkeit und Vollständigkeit übernehmen wir keine Haftung und schließen ausdrücklich jeglichen Schadensersatz aus.
Bitte haben Sie Verständnis dafür, dass wir aufgrund der Nachweisklausel nur Anfragen mit vollständiger Adress- und Telefonangabe bearbeiten werden!