Herzlich willkommen in einem jungen Baugebiet in Bad Zwischenahn Ohrwege!
Sie sind auf der Suche nach einem neuen Familienheim? Dann sind Sie hier genau richtig.
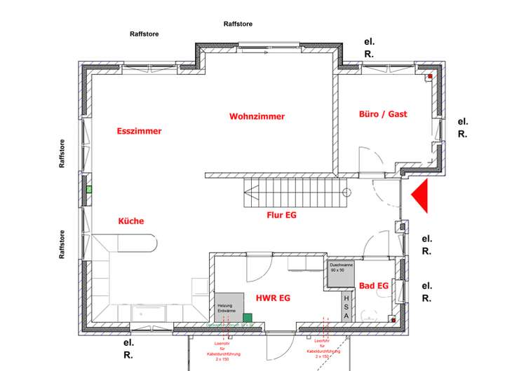
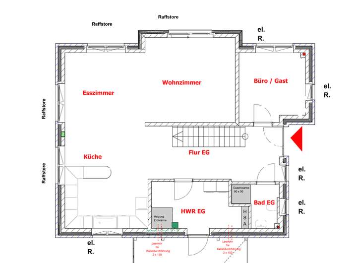
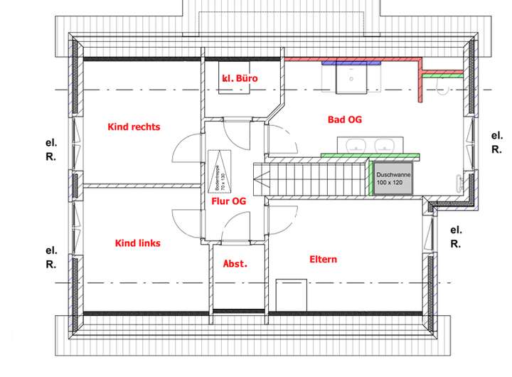
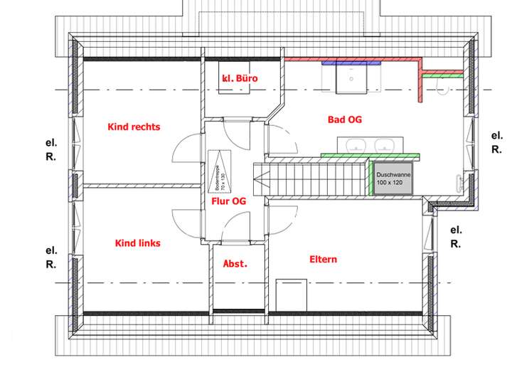
Neben den 3 Schlafräumen im Dachgeschoss bietet der gelungene Grundriss zwei weitere Räume an, die aktuell als Arbeitszimmer genutzt werden. Der Arbeitsplatz im Dachgeschoss ist recht klein und könnte auch als Hobbybereich dienen. Das Arbeitszimmer im Erdgeschoss befindet sich direkt gegenüber des Duschbads, und bietet sich daher auch als Gästezimmer an. Der Wohnbereich ist als großer offener Wohn-Ess-Küchenraum gestaltet. Ideal für eine Familie, die sich ein offenes Wohnkonzept wünscht. Der Hauswirtschaftsraum ist großzügig gehalten, hier findet die Technik ihren Platz, weiterhin sind hier die Waschmaschine und der Trockner platziert sowie weitere Abstellfläche gegeben.
Der Garten ist großzügig angelegt, es gibt zwei Terrassen sowie ein Gartenhaus. Insgesamt hat das Grundstück eine Größe von ca. 675 m². Ein großzügiger Doppel-Carport, mit angrenzendem Geräteraum bietet zwei Wallboxen, sodass Nutzer der E-Mobilität hier entspannt die Fahrzeuge laden können.
Eine 10 kWp Photovoltaikanlage sowie ein 5 kWp Batteriespeicher sorgen für Unabhängigkeit in der Stromversorgung. Die Wärmepumpe wird über Erdwärme betrieben, eine Energieeffinzienzklasse von A+ ist gegeben.
Noch zu erwähnen ist der Stauraum auf dem Spitzboden, der über eine Auszugsleiter vom Flur im Dachgeschoss erreicht wird. Hier ist auch die Be- und Entlüftungsanlage (mit Wärmerückgewinnung) untergebracht.
Herzlich willkommen in Ohrwege : )
Bad Zwischenahn-Ohrwege. Gefühlter Neubau! Sehr familienfreundliche Lage! PV-Anlage+Speicher+Wallbox
26160 Bad Zwischenahn
Die vollständige Adresse der Immobilie erhalten Sie vom Anbieter.
Auf Karte anzeigen
Die vollständige Adresse der Immobilie erhalten Sie vom Anbieter.
Finanzierungszertifikat
In nur zwei Minuten zu Ihrem persönlichen Finanzierungszertifkat.
Infos
| Haustyp | Einfamilienhaus |
|---|---|
| Wohnfläche ca. | 153 m2 |
| Nutzfläche | 41 m2 |
| Grundstücksfläche | 675 m2 |
| Zimmer | 5 |
| Schlafzimmer | 4 |
| Badezimmer | 2 |
| Garage/Stellplatz | Carport |
| Anzahl Garage/Stellplatz | 2 |
Kosten
| Kaufpreis |
649.000 € |
|---|---|
| Provision |
Käufercourtage: 3,57 % inkl. 19 % MwSt.
Verkäufercourtage: 3,57 % inkl. 19 % MwSt. |
Finanzierungsrechner:
Kaufpreis:
600.000 €
Eigenkapital:
600.000 €
Monatliche Rate
0 €
Effektiver Jahreszins
0 %
Sollzinsbindung
10 Jahre
Bausubstanz & Energieausweis
| Baujahr | 2019 |
|---|---|
| Objektzustand | Neuwertig |
| Heizungsart | Wärmepumpe |
| Wesentliche Energieträger | Erdwärme |
| Energieausweis | liegt vor |
| Energieausweistyp | Verbrauchsausweis |
| Energieverbrauchskennwert | 19,7 kWh/(m²*a) |
| Energieeffizienzklasse | A+ |
19,7
kWh/(m²*a)
Energieeffizienzklasse A+
- A+
- A
- B
- C
- D
- E
- F
- G
- H
- 0
- 25
- 50
- 75
- 100
- 125
- 150
- 175
- 200
- 225
- >250
Beschreibung des Objekts
Ausstattung
- Einbauküche inkl. elektr. Geräte
- Fußbodenheizung
- 10 kWp PV-Anlage
- 5 kWp Batteriespeicher
- 2 Wallboxen
- Be- und Entlüftungsanlage mit WRG
- Alarmsystem
- Haussteuerung mit u.A. automatischer Beschattung, Lichtsteuerung
- Aluminium Rollläden
- z.T. Raffstores (Wohn- / Essbereich)
- Doppel-Carport + Geräteraum
- Gartenhaus
Lage
- junges Baugebiet in Ohrwege
- Sackgassenlage
- sehr familienfreundlich
Adresse
26160 Bad Zwischenahn
Interessante Orte
Preis- und Lageinformationen
Preistrend für Bestandsimmobilien in Bad Zwischenahn